エスタガーデン
3LDK/90.4㎡
28万円
管理費等
20,000円
敷金/礼金/保証金
2ヶ月/1ヶ月/-



物件情報
おすすめポイント
取扱店舗
| 種目 | 分譲賃貸マンション |
| 所在地 | 東京都墨田区押上2丁目 GoogleMaps |
| 交通 | |
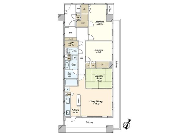
| 間取り | 3LDK |
| 専有面積 | 90.4㎡ |
| 築年月 | 2001年08月 築 |
| 階数 / 階建 | 10階 / 地上14階建 |
| 向き | 南東 |
この物件情報を共有する
おすすめポイント
立地
- 3沿線以上利用可
- 駅徒歩5分以内
- 複数路線利用可
位置
- 2階以上
- 高層階(所在10階以上)
- 南東向き
- 角部屋
セキュリティ
- オートロック
- 日勤管理
- TVモニタ付インターホン
設備(建物)
- エレベーター
- 宅配ボックス
- 駐車場
- 駐輪場
- バイク置場
- バルコニー
設備・仕様(室内)
- 専有面積25坪以上
- LDK15畳以上
- ガス給湯器
- 洗面所独立
- 床暖房
- フローリング
- 室内洗濯機置場
- シューズボックス
- BS視聴可
- CS視聴可
- ケーブルテレビ
- インターネット対応
- エアコン全室
- 洗面化粧台
キッチン
- システムキッチン
- ガスコンロ
- 食器洗浄乾燥機
- 浄水器
バス・トイレ
- 浴室
- 浴室トイレ別
- 追焚き可
- シャワー
- 浴室乾燥機
- トイレ
- 温水洗浄便座
条件
- 楽器可・相談
その他
- 分譲賃貸
- 内装リフォーム済
おすすめポイント
■南東/北東向き角部屋■2024年9月システムキッチン交換 ■半蔵門線・都営浅草線『押上駅』徒歩1分■2024年9月エアコン4台新規交換・クロス全張替・全床フロアタイル張替■喫煙禁止住戸
物件情報
| 所在地 | 東京都墨田区押上2丁目 GoogleMaps |
| 賃料 | 28万円 |
| 管理費/共益費 | 20,000円 |
| 敷金/礼金/保証金 | 2ヶ月/1ヶ月/- |
| 更新料 | 1ヶ月 |
| 償却 | - |
| 交通 | |
| 間取り | 3LDK |
| 専有面積 | 90.4㎡ |
| 築年月 | 2001年08月 築 |
| 階数 / 階建 | 10階 / 地上14階建 |
| 向き | 南東 |
| 契約形態 | 普通建物賃貸借 |
| 契約期間 | 2年0ヶ月 |
| 駐車場 | 空有 月額25,000円 |
| 建物構造 | 鉄骨鉄筋コンクリート造 |
| 現況 | 居住中 |
| 入居可能時期 | 相談 |
| 損害保険等 | 12,700円(1年間) |
| 特記事項 | ※浄水器カートリッジ交換費用借主負担 |
| 取引形態 | 仲介 |
| 更新日 | 2025年11月06日 |
| 次回更新日 | 2025年11月20日 |
その他費用・備考
■退去時清掃費用借主負担特約:119,328円(税込)■保証会社利用必須(保証料:初回賃料等の50%、賃料収納月以降1,000円/月)■インターネット別途契約、費用負担有■安心入居サポート月770円
取扱店舗
三井のリハウス 錦糸町センター
- 営業時間10:00~18:00
- 定休日毎週火曜日・水曜日
0120-926-682
この物件を見学する
この物件についてお問い合わせ
物件・住環境の詳しい情報など、ささいなことでもお気軽にお問い合わせください。三井のリハウス 錦糸町センター
- 営業時間10:00~18:00
- 定休日毎週火曜日・水曜日
0120-926-682
見学予約
お問い合わせ
0120-926-682
- 営業時間 10:00~18:00
- 定休日 毎週火曜日・水曜日