ファインコート鵠沼松が岡
4LDK/101.86㎡
30万円
管理費等
-
敷金/礼金/保証金
1ヶ月/1ヶ月/-



物件情報
おすすめポイント
取扱店舗
この物件情報を共有する
おすすめポイント
立地
- 駅徒歩5分以内
位置
- 南東向き
セキュリティ
- TVモニタ付インターホン
設備(建物)
- 駐車場
- 専用庭
- ルーフバルコニー
設備・仕様(室内)
- 専有面積30坪以上
- LDK15畳以上
- ロフト付
- ガス給湯器
- 洗面所独立
- 床暖房
- フローリング
- 室内洗濯機置場
- シューズボックス
- 床下収納
- エアコン3台
- 照明器具
- 洗面化粧台
キッチン
- システムキッチン
- ガスコンロ
- 食器洗浄乾燥機
- 浄水器
バス・トイレ
- 浴室
- 浴室トイレ別
- 追焚き可
- シャワー
- 浴室乾燥機
- トイレ
- 温水洗浄便座
条件
- ペット可・相談
- 楽器可・相談
おすすめポイント
◆駅徒歩5分◆南東向き日当たり良好◆駐車場付◆スーパーロフト ◆ミストサウナ◆照明器具6台◆エアコン3基◆床暖房◆ルーフバルコニー◆ペット飼育可(小型犬1匹・敷金増額1か月分)◆ピアノ可(電子ピアノ)
物件情報
所在地 | 神奈川県藤沢市鵠沼松が岡5丁目 GoogleMaps |
賃料 | 30万円 |
管理費/共益費 | - |
敷金/礼金/保証金 | 1ヶ月/1ヶ月/- |
更新料 | - |
償却 | - |
交通 | 小田急電鉄江ノ島線 鵠沼海岸駅 徒歩5分 |
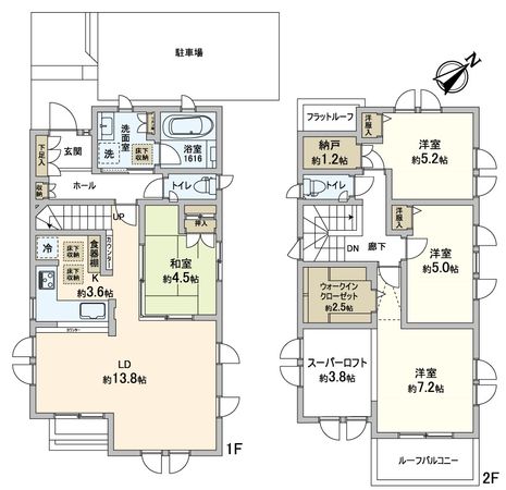
間取り | 4LDK |
建物面積 | 101.86㎡ |
築年月 | 2016年08月 築 |
階建 | 2階建 |
向き | 南東 |
契約形態 | 定期建物賃貸借 |
契約期間 | 5年0ヶ月 |
駐車場 | 駐車場付 |
建物構造 | 木造 |
現況 | 空家 |
入居可能時期 | 相談 |
損害保険等 | 12,700円(1年間) |
特記事項 | ◆安心入居サポート月額770円(税込)※禁煙 |
取引形態 | 仲介 |
更新日 | 2025年10月13日 |
次回更新日 | 2025年10月27日 |
その他費用・備考
※退去時清掃費用借主負担特約:156,864円(税込)※保証会社利用必須(保証料:初回賃料等の50%、賃料収納月以降1,000円/月)※TV視聴・インターネット利用契約費用は借主負担となります。
取扱店舗
三井のリハウス 藤沢センター
- 営業時間10:00~18:00
- 定休日毎週火曜日・水曜日
0120-983-287
この物件を見学する
この物件についてお問い合わせ
物件・住環境の詳しい情報など、ささいなことでもお気軽にお問い合わせください。三井のリハウス 藤沢センター
- 営業時間10:00~18:00
- 定休日毎週火曜日・水曜日
0120-983-287
見学予約
お問い合わせ
0120-983-287
- 営業時間 10:00~18:00
- 定休日 毎週火曜日・水曜日