ロジュマンタワー梅田
1LDK/44.69㎡
16万円
管理費等
-
敷金/礼金/保証金
1ヶ月/2ヶ月/-



物件情報
おすすめポイント
取扱店舗
| 種目 | 分譲賃貸マンション |
| 所在地 | 大阪府大阪市北区万歳町 GoogleMaps |
| 交通 | |
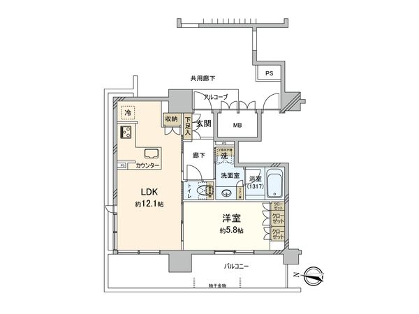
| 間取り | 1LDK |
| 専有面積 | 44.69㎡ |
| 築年月 | 2015年02月 築 |
| 階数 / 階建 | 12階 / 地上21階建 |
| 向き | 西 |
この物件情報を共有する
おすすめポイント
立地
- 3駅以上利用可
- 3沿線以上利用可
- 駅徒歩5分以内
- 複数路線利用可
位置
- 2階以上
- 高層階(所在10階以上)
- 角部屋
セキュリティ
- オートロック
- 日勤管理
- TVモニタ付インターホン
設備(建物)
- エレベーター
- 宅配ボックス
- 駐車場
- 駐輪場
- バイク置場
- バルコニー
設備・仕様(室内)
- LDK12畳以上
- 電気給湯器
- 洗面所独立
- フローリング
- 室内洗濯機置場
- シューズボックス
- インターネット対応
- エアコン
- 洗面化粧台
キッチン
- システムキッチン
- IHクッキングヒーター
- 食器洗浄乾燥機
- 浄水器
- オール電化
バス・トイレ
- 浴室
- 浴室トイレ別
- 追焚き可
- シャワー
- 浴室乾燥機
- トイレ
- 温水洗浄便座
その他
- タワーマンション(20階建以上)
- 分譲賃貸
- パノラマコンテンツあり
おすすめポイント
◆定期賃貸借契約(5年間)◆オール電化◆北西角部屋住戸 ◆エアコン1台付き(洋室)◆宅配ボックス有り◆カウンターキッチン◆IHクッキングヒーター(3口)◆食洗機有り◆浴室換気乾燥機有り
バーチャルオープンハウス
室内を内覧しているように物件を見学することができます。
物件情報
| 所在地 | 大阪府大阪市北区万歳町 GoogleMaps |
| 賃料 | 16万円 |
| 管理費/共益費 | - |
| 敷金/礼金/保証金 | 1ヶ月/2ヶ月/- |
| 更新料 | - |
| 償却 | - |
| 交通 | |
| 間取り | 1LDK |
| 専有面積 | 44.69㎡ |
| 築年月 | 2015年02月 築 |
| 階数 / 階建 | 12階 / 地上21階建 |
| 向き | 西 |
| 契約形態 | 定期建物賃貸借 |
| 契約期間 | 5年0ヶ月 |
| 駐車場 | 空有 月額25,000円 |
| 建物構造 | 鉄筋コンクリート造 |
| 現況 | 空家 |
| 入居可能時期 | 相談 |
| 損害保険等 | 13,000円(1年間) |
| 特記事項 | 法人希望 |
| 取引形態 | 仲介 |
| 更新日 | 2025年12月01日 |
| 次回更新日 | 2025年12月15日 |
その他費用・備考
◆大手法人および転勤を伴う法人の場合、普通賃貸借相談可能(更新料有り、新賃料の1ヶ月分/2年)◆保証会社利用必須(保証料:初回賃料等の50%、賃料収納月以降1,000円/月)◆ペット飼育不可◆喫煙不可
この物件のことを
AIに聞いてみませんか?
最新のAI技術を活用した相談サービスです。
お客様一人ひとりのニーズに合わせて最適な情報をご提供します。
リハウスAIチャットの詳しい説明はこちら

取扱店舗
三井のリハウス 梅田センター
- 営業時間10:00~18:00
- 定休日毎週火曜日・水曜日
0120-996-531
この物件を見学する
この物件についてお問い合わせ
物件・住環境の詳しい情報など、ささいなことでもお気軽にお問い合わせください。三井のリハウス 梅田センター
- 営業時間10:00~18:00
- 定休日毎週火曜日・水曜日
0120-996-531
見学予約
お問い合わせ
0120-996-531
- 営業時間 10:00~18:00
- 定休日 毎週火曜日・水曜日