リビオレゾン南森町
2LDK/46.25㎡
16.8万円
管理費等
12,000円
敷金/礼金/保証金
1ヶ月/2ヶ月/-



物件情報
おすすめポイント
取扱店舗
| 種目 | 分譲賃貸マンション |
| 所在地 | 大阪府大阪市北区天神橋1丁目 GoogleMaps |
| 交通 | |
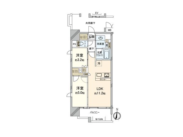
| 間取り | 2LDK |
| 専有面積 | 46.25㎡ |
| 築年月 | 2023年04月 築 |
| 階数 / 階建 | 10階 / 地上15階建 |
| 向き | 南 |
この物件情報を共有する
おすすめポイント
立地
- 2駅利用可
- 3沿線以上利用可
- 駅徒歩10分以内
- 複数路線利用可
位置
- 2階以上
- 高層階(所在10階以上)
- 南向き
セキュリティ
- オートロック
- 日勤管理
- TVモニタ付インターホン
設備(建物)
- エレベーター
- 宅配ボックス
- バルコニー
設備・仕様(室内)
- ガス給湯器
- 洗面所独立
- 床暖房
- フローリング
- 室内洗濯機置場
- シューズボックス
- BS視聴可
- CS視聴可
- ケーブルテレビ
- インターネット対応
- エアコン
- 洗面化粧台
キッチン
- システムキッチン
- ガスコンロ
- 浄水器
バス・トイレ
- 浴室
- 浴室トイレ別
- シャワー
- 浴室乾燥機
- トイレ
- 温水洗浄便座
その他
- 分譲賃貸
おすすめポイント
◆大阪メトロ谷町線・堺筋線【南森町】駅徒歩6分◆分譲賃貸 ◆南向き◆エアコン1台付き◆リビング床暖房◆システムキッチン3口ガスコンロ◆
物件情報
| 所在地 | 大阪府大阪市北区天神橋1丁目 GoogleMaps |
| 賃料 | 16.8万円 |
| 管理費/共益費 | 12,000円 |
| 敷金/礼金/保証金 | 1ヶ月/2ヶ月/- |
| 更新料 | - |
| 償却 | - |
| 交通 | |
| 間取り | 2LDK |
| 専有面積 | 46.25㎡ |
| 築年月 | 2023年04月 築 |
| 階数 / 階建 | 10階 / 地上15階建 |
| 向き | 南 |
| 契約形態 | 定期建物賃貸借 |
| 契約期間 | 5年0ヶ月 |
| 駐車場 | 空無 |
| 建物構造 | 鉄筋コンクリート造 |
| 現況 | 空家 |
| 入居可能時期 | 即時 |
| 損害保険等 | 13,000円(1年間) |
| 特記事項 | ■喫煙不可■ワックス塗布不可 |
| 取引形態 | 仲介 |
| 更新日 | 2026年03月22日 |
| 次回更新日 | 2026年04月05日 |
その他費用・備考
保証会社利用必須(保証料:初回賃料等の50%、賃料収納月以降1,000円/月)。◆ペット飼育不可◆楽器不可◆退去時清掃費用借主負担特約:55,000円(税込)
この物件のことを
AIに聞いてみませんか?
最新のAI技術を活用した相談サービスです。
お客様一人ひとりのニーズに合わせて最適な情報をご提供します。
リハウスAIチャットの詳しい説明はこちら

取扱店舗
三井のリハウス 梅田センター
- 営業時間10:00~18:00
- 定休日毎週火曜日・水曜日
0120-996-531
この物件を見学する
この物件についてお問い合わせ
物件・住環境の詳しい情報など、ささいなことでもお気軽にお問い合わせください。三井のリハウス 梅田センター
- 営業時間10:00~18:00
- 定休日毎週火曜日・水曜日
0120-996-531
見学予約
お問い合わせ
0120-996-531
- 営業時間 10:00~18:00
- 定休日 毎週火曜日・水曜日