ライオンズ東山レジデンス
3LDK/94.66㎡
16万円
管理費等
15,000円
敷金/礼金/保証金
2ヶ月/1ヶ月/-



物件情報
おすすめポイント
取扱店舗
| 種目 | 分譲賃貸マンション |
| 所在地 | 愛知県名古屋市千種区新池町3丁目 GoogleMaps |
| 交通 | 名古屋市東山線 東山公園駅 徒歩3分 |
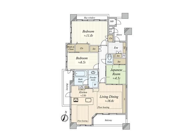
| 間取り | 3LDK |
| 専有面積 | 94.66㎡ |
| 築年月 | 2007年11月 築 |
| 階数 / 階建 | 3階 / 地上6階建 |
| 向き | 南 |
この物件情報を共有する
おすすめポイント
立地
- 駅徒歩5分以内
位置
- 2階以上
- 南向き
- 角部屋
セキュリティ
- オートロック
- 日勤管理
- TVモニタ付インターホン
設備(建物)
- エレベーター
- 宅配ボックス
- 駐車場
- 駐輪場
- バイク置場
- バルコニー
設備・仕様(室内)
- 専有面積25坪以上
- LDK20畳以上
- 電気給湯器
- 洗面所独立
- 床暖房
- フローリング
- 室内洗濯機置場
- シューズボックス
- ケーブルテレビ
- エアコン3台
- 照明器具
- 洗面化粧台
キッチン
- システムキッチン
- IHクッキングヒーター
- 食器洗浄乾燥機
- 浄水器
- オール電化
バス・トイレ
- 浴室
- 浴室トイレ別
- 追焚き可
- シャワー
- 浴室乾燥機
- トイレ
- 温水洗浄便座
条件
- 楽器可・相談
その他
- 分譲賃貸
おすすめポイント
■3LDK■南西角住戸につき採光良好■LDK約20.4帖 ■専有面積94.66平米■オール電化■地下鉄東山線「東山公園」駅徒歩約3分■法人契約の場合海外源泉業務要
物件情報
| 所在地 | 愛知県名古屋市千種区新池町3丁目 GoogleMaps |
| 賃料 | 16万円 |
| 管理費/共益費 | 15,000円 |
| 敷金/礼金/保証金 | 2ヶ月/1ヶ月/- |
| 更新料 | - |
| 償却 | - |
| 交通 | 名古屋市東山線 東山公園駅 徒歩3分 |
| 間取り | 3LDK |
| 専有面積 | 94.66㎡ |
| 築年月 | 2007年11月 築 |
| 階数 / 階建 | 3階 / 地上6階建 |
| 向き | 南 |
| 契約形態 | 普通建物賃貸借 |
| 契約期間 | 2年0ヶ月 |
| 駐車場 | 空有 月額19,000円 |
| 建物構造 | 鉄筋コンクリート造 |
| 現況 | 居住中 |
| 入居可能時期 | 2025年11月下旬以降 |
| 損害保険等 | 20,000円(2年間) |
| 特記事項 | ※禁煙※法人契約の場合海外源泉業務要 |
| 取引形態 | 仲介 |
| 更新日 | 2025年10月25日 |
| 次回更新日 | 2025年11月08日 |
その他費用・備考
■保証会社利用必須(エポス利用時保証料:初回賃料等の50%、賃料収納月以降1,000円/月)■退去時清掃費用借主負担特約:124,951円(税込)
取扱店舗
三井のリハウス 名古屋栄センター
- 営業時間10:00~18:00
- 定休日毎週火曜日・水曜日
0120-57-1531
この物件を見学する
この物件についてお問い合わせ
物件・住環境の詳しい情報など、ささいなことでもお気軽にお問い合わせください。三井のリハウス 名古屋栄センター
- 営業時間10:00~18:00
- 定休日毎週火曜日・水曜日
0120-57-1531
見学予約
お問い合わせ
0120-57-1531
- 営業時間 10:00~18:00
- 定休日 毎週火曜日・水曜日