パークタワー東雲
2LDK/61.79㎡
25万円
管理費等
15,000円
敷金/礼金/保証金
1ヶ月/1ヶ月/-



物件情報
おすすめポイント
取扱店舗
種目 | 分譲賃貸マンション |
所在地 | 東京都江東区東雲1丁目 GoogleMaps |
交通 | |
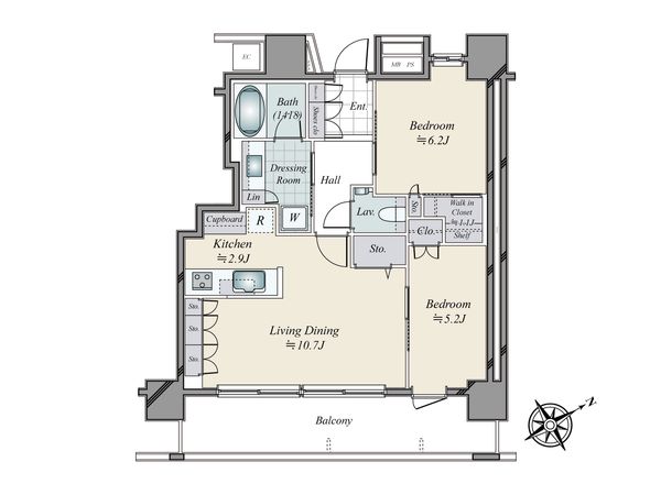
間取り | 2LDK |
専有面積 | 61.79㎡ |
築年月 | 2014年01月 築 |
階数 / 階建 | 37階 / 地上43階建 |
向き | 南東 |
この物件情報を共有する
おすすめポイント
立地
- 3駅以上利用可
- 3沿線以上利用可
- 駅徒歩10分以内
- 複数路線利用可
位置
- 2階以上
- 高層階(所在10階以上)
- 南東向き
セキュリティ
- オートロック
- 24時間有人管理
- TVモニタ付インターホン
設備(建物)
- エレベーター
- 宅配ボックス
- 駐車場
- 駐輪場
- バイク置場
- バルコニー
設備・仕様(室内)
- LDK12畳以上
- 電気給湯器
- 洗面所独立
- 床暖房
- フローリング
- 室内洗濯機置場
- シューズボックス
- BS視聴可
- CS視聴可
- インターネット対応
- エアコン2台
- 洗面化粧台
キッチン
- システムキッチン
- IHクッキングヒーター
- 食器洗浄乾燥機
- 浄水器
- オール電化
バス・トイレ
- 浴室
- 浴室トイレ別
- 追焚き可
- シャワー
- 浴室乾燥機
- トイレ
- 温水洗浄便座
条件
- ペット可・相談
- 楽器可・相談
その他
- タワーマンション(20階建以上)
- 分譲賃貸
おすすめポイント
■三井不動産レジデンシャル(株)旧分譲■37階■南東向き ■リビングから運河を望む(天候による)■ペット飼育可(小型犬1匹のみ・敷金1ヶ月積増)■ゲストルーム等共用施設あり(一部有料・要予約)
物件情報
所在地 | 東京都江東区東雲1丁目 GoogleMaps |
賃料 | 25万円 |
管理費/共益費 | 15,000円 |
敷金/礼金/保証金 | 1ヶ月/1ヶ月/- |
更新料 | 1ヶ月 |
償却 | - |
交通 | |
間取り | 2LDK |
専有面積 | 61.79㎡ |
築年月 | 2014年01月 築 |
階数 / 階建 | 37階 / 地上43階建 |
向き | 南東 |
契約形態 | 普通建物賃貸借 |
契約期間 | 2年0ヶ月 |
駐車場 | 空有 月額24,000円 |
建物構造 | 鉄筋コンクリート造 |
現況 | 居住中 |
入居可能時期 | 相談 |
損害保険等 | 12,700円(1年間) |
特記事項 | ■禁煙■安心入居サポート月770円税込■高潮ハザード該当 |
取引形態 | 仲介 |
更新日 | 2025年10月07日 |
次回更新日 | 2025年10月21日 |
その他費用・備考
■退去時清掃費用借主負担特約:81,562円(税込)■保証会社利用必須(保証料:初回賃料等の50%、賃料収納月以降1,000円/月)■ネット別途契約、鍵・浄水器カートリッジ交換借主負担
取扱店舗
三井のリハウス ららぽーと豊洲センター
- 営業時間10:00~18:00
- 定休日毎週水曜日・日曜日
0120-926-658
この物件を見学する
この物件についてお問い合わせ
物件・住環境の詳しい情報など、ささいなことでもお気軽にお問い合わせください。三井のリハウス ららぽーと豊洲センター
- 営業時間10:00~18:00
- 定休日毎週水曜日・日曜日
0120-926-658
見学予約
お問い合わせ
0120-926-658
- 営業時間 10:00~18:00
- 定休日 毎週水曜日・日曜日