アーバンドック パークシティ豊洲 タワーB棟
2SLDK/82.13㎡
39万円
管理費等
-
敷金/礼金/保証金
2ヶ月/1ヶ月/-



物件情報
おすすめポイント
取扱店舗
種目 | 分譲賃貸マンション |
所在地 | 東京都江東区豊洲2丁目 GoogleMaps |
交通 | |
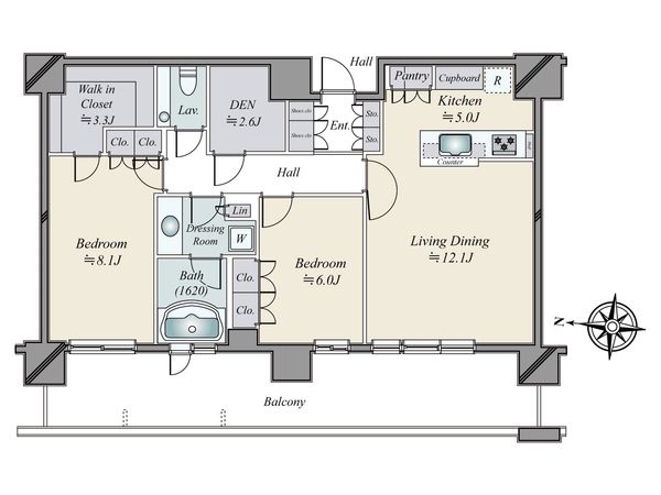
間取り | 2SLDK ※S・サービススペースは納戸です |
専有面積 | 82.13㎡ |
築年月 | 2007年11月 築 |
階数 / 階建 | 22階 / 地上32階 地下1階建 |
向き | 西 |
この物件情報を共有する
おすすめポイント
立地
- 2駅利用可
- 3沿線以上利用可
- 駅徒歩10分以内
- 複数路線利用可
位置
- 2階以上
- 高層階(所在10階以上)
セキュリティ
- オートロック
- 24時間有人管理
- TVモニタ付インターホン
設備(建物)
- エレベーター
- 宅配ボックス
- 駐車場
- 駐輪場
- バイク置場
- バルコニー
設備・仕様(室内)
- LDK15畳以上
- ガス給湯器
- 洗面所独立
- 床暖房
- フローリング
- 室内洗濯機置場
- シューズボックス
- BS視聴可
- CS視聴可
- インターネット対応
- エアコン
- 洗面化粧台
キッチン
- システムキッチン
- ガスコンロ
- 食器洗浄乾燥機
- 浄水器
バス・トイレ
- 浴室
- 浴室トイレ別
- 追焚き可
- シャワー
- 浴室乾燥機
- トイレ
- 温水洗浄便座
条件
- 楽器可・相談
その他
- タワーマンション(20階建以上)
- 分譲賃貸
おすすめポイント
■B棟22階・西向きの2LDK■内廊下仕様■定期借家3年 ■ららぽーと豊洲直結■共用施設有り(スカイラウンジ、キッズルーム、パーティルーム等、一部有料、要予約)■2025年11月中旬より内覧可能予定
物件情報
所在地 | 東京都江東区豊洲2丁目 GoogleMaps |
賃料 | 39万円 |
管理費/共益費 | - |
敷金/礼金/保証金 | 2ヶ月/1ヶ月/- |
更新料 | - |
償却 | - |
交通 | |
間取り | 2SLDK ※S・サービススペースは納戸です |
専有面積 | 82.13㎡ |
築年月 | 2007年11月 築 |
階数 / 階建 | 22階 / 地上32階 地下1階建 |
向き | 西 |
契約形態 | 定期建物賃貸借 |
契約期間 | 3年0ヶ月 |
駐車場 | 空有 月額29,200円 |
建物構造 | 鉄筋コンクリート造 |
現況 | 居住中 |
入居可能時期 | 相談 |
損害保険等 | 12,700円(1年間) |
特記事項 | ■禁煙■安心入居サポート月770円税込■高潮ハザード該当 |
取引形態 | 仲介 |
更新日 | 2025年10月18日 |
次回更新日 | 2025年11月01日 |
その他費用・備考
■退去時清掃費用借主負担特約:108,411円(税込)■保証会社利用必須(保証料:初回賃料等の50%、賃料収納月以降1,000円/月)■ネット契約、鍵・浄水器カートリッジ交換借主負担
取扱店舗
三井のリハウス ららぽーと豊洲センター
- 営業時間10:00~18:00
- 定休日毎週水曜日・日曜日
0120-926-658
この物件を見学する
この物件についてお問い合わせ
物件・住環境の詳しい情報など、ささいなことでもお気軽にお問い合わせください。三井のリハウス ららぽーと豊洲センター
- 営業時間10:00~18:00
- 定休日毎週水曜日・日曜日
0120-926-658
見学予約
お問い合わせ
0120-926-658
- 営業時間 10:00~18:00
- 定休日 毎週水曜日・日曜日