ライオンズマンション横浜駅西第3
3LDK/61.83㎡
15万円
管理費等
15,000円
敷金/礼金/保証金
1.5ヶ月/1ヶ月/-



物件情報
おすすめポイント
取扱店舗
種目 | 分譲賃貸マンション |
所在地 | 神奈川県横浜市西区浅間町2丁目 GoogleMaps |
交通 | |
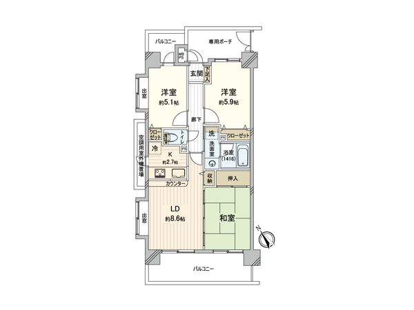
間取り | 3LDK |
専有面積 | 61.83㎡ |
築年月 | 1997年02月 築 |
階数 / 階建 | 2階 / 地上11階 地下1階建 |
向き | 南西 |
この物件情報を共有する
おすすめポイント
立地
- 3沿線以上利用可
- 複数路線利用可
位置
- 2階以上
- 南西向き
- 角部屋
セキュリティ
- オートロック
- 日勤管理
- TVモニタ付インターホン
設備(建物)
- エレベーター
- 宅配ボックス
- 駐輪場
- バイク置場
- バルコニー
設備・仕様(室内)
- ガス給湯器
- 洗面所独立
- フローリング
- 室内洗濯機置場
- シューズボックス
- ケーブルテレビ
- インターネット対応
- 洗面化粧台
キッチン
- システムキッチン
- ガスコンロ
バス・トイレ
- 浴室
- 浴室トイレ別
- 追焚き可
- シャワー
- トイレ
その他
- 分譲賃貸
おすすめポイント
■南西向きにつき日当り良好■角部屋 ■3口ガスコンロ付システムキッチン■TVモニタ付インターホン■宅配ボックス■追い焚き機能付バス■オートロック
物件情報
所在地 | 神奈川県横浜市西区浅間町2丁目 GoogleMaps |
賃料 | 15万円 |
管理費/共益費 | 15,000円 |
敷金/礼金/保証金 | 1.5ヶ月/1ヶ月/- |
更新料 | - |
償却 | - |
交通 | |
間取り | 3LDK |
専有面積 | 61.83㎡ |
築年月 | 1997年02月 築 |
階数 / 階建 | 2階 / 地上11階 地下1階建 |
向き | 南西 |
契約形態 | 定期建物賃貸借 |
契約期間 | 5年0ヶ月 |
駐車場 | 空無 月額20,000円 |
建物構造 | 鉄骨鉄筋コンクリート造 |
現況 | 空家 |
入居可能時期 | 2025年10月下旬以降 |
損害保険等 | 12,700円(1年間) |
特記事項 | ◆禁煙住戸◆安心入居サポート月額770円 |
取引形態 | 仲介 |
更新日 | 2025年10月20日 |
次回更新日 | 2025年11月03日 |
その他費用・備考
■退去時清掃費用借主負担特約:81,615円(税込)■保証会社利用必須(保証料:初回賃料等の50%、賃料収納月以降1,000円/月)■インターネット契約、借主費用負担有
取扱店舗
三井のリハウス みなとみらいセンター
- 営業時間10:00~18:00
- 定休日毎週火曜日・水曜日
0120-985-268
この物件を見学する
この物件についてお問い合わせ
物件・住環境の詳しい情報など、ささいなことでもお気軽にお問い合わせください。三井のリハウス みなとみらいセンター
- 営業時間10:00~18:00
- 定休日毎週火曜日・水曜日
0120-985-268
見学予約
お問い合わせ
0120-985-268
- 営業時間 10:00~18:00
- 定休日 毎週火曜日・水曜日