駒形2丁目戸建
1SLDK/78.09㎡
33万円
管理費等
-
敷金/礼金/保証金
2ヶ月/1ヶ月/-



物件情報
おすすめポイント
取扱店舗
| 種目 | 賃貸一戸建て |
| 所在地 | 東京都台東区駒形2丁目 GoogleMaps |
| 交通 | |
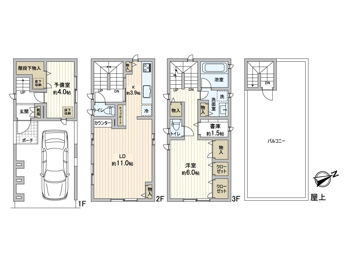
| 間取り | 1SLDK ※S・サービススペースは納戸です |
| 建物面積 | 78.09㎡ |
| 築年月 | 2012年09月 築 |
| 階建 | 3階建 |
| 向き | 南東 |
この物件情報を共有する
おすすめポイント
立地
- 2駅利用可
- 3沿線以上利用可
- 駅徒歩5分以内
- 複数路線利用可
位置
- 南東向き
セキュリティ
- TVモニタ付インターホン
設備(建物)
- 駐車場
設備・仕様(室内)
- LDK12畳以上
- ガス給湯器
- 洗面所独立
- フローリング
- 室内洗濯機置場
- シューズボックス
- 床下収納
- エアコン
- 洗面化粧台
キッチン
- システムキッチン
- ガスコンロ
- 浄水器
バス・トイレ
- 浴室
- 浴室トイレ別
- 追焚き可
- シャワー
- 浴室乾燥機
- トイレ
- 温水洗浄便座
条件
- 事務所可・相談
その他
- パノラマコンテンツあり
おすすめポイント
■トイレ2箇所(2F・3F)・浴室(3F)■全居室窓有り ■インターネット利用・TV視聴は別途契約、費用負担有■駐車場1台付き。*サイズは必ず現地にてお確かめください。■事務所利用相談
バーチャルオープンハウス
室内を内覧しているように物件を見学することができます。
物件情報
| 所在地 | 東京都台東区駒形2丁目 GoogleMaps |
| 賃料 | 33万円 |
| 管理費/共益費 | - |
| 敷金/礼金/保証金 | 2ヶ月/1ヶ月/- |
| 更新料 | - |
| 償却 | - |
| 交通 | |
| 間取り | 1SLDK ※S・サービススペースは納戸です |
| 建物面積 | 78.09㎡ |
| 築年月 | 2012年09月 築 |
| 階建 | 3階建 |
| 向き | 南東 |
| 契約形態 | 定期建物賃貸借 |
| 契約期間 | 4年0ヶ月 |
| 駐車場 | 駐車場付 |
| 建物構造 | 軽量鉄骨造 |
| 現況 | 空家 |
| 入居可能時期 | 相談 |
| 損害保険等 | 13,000円(1年間) |
| 特記事項 | - |
| 取引形態 | 仲介 |
| 更新日 | 2026年04月26日 |
| 次回更新日 | 2026年05月10日 |
その他費用・備考
■退去時清掃費用借主負担特約:220,000円(税込)■保証会社利用必須(保証料:初回賃料等の50%、賃料収納月以降1,000円/月■安心入居サポート月770円■室内・バルコニー・建物敷地内すべて禁煙
この物件のことを
AIに聞いてみませんか?
最新のAI技術を活用した相談サービスです。
お客様一人ひとりのニーズに合わせて最適な情報をご提供します。
リハウスAIチャットの詳しい説明はこちら

取扱店舗
三井のリハウス 上野センター
- 営業時間10:00~18:00
- 定休日毎週火曜日・水曜日※5/1(金)~5/6(水)GW休業期間
0120-977-656
この物件を見学する
この物件についてお問い合わせ
物件・住環境の詳しい情報など、ささいなことでもお気軽にお問い合わせください。三井のリハウス 上野センター
- 営業時間10:00~18:00
- 定休日毎週火曜日・水曜日※5/1(金)~5/6(水)GW休業期間
0120-977-656
見学予約
お問い合わせ
0120-977-656
- 営業時間 10:00~18:00
- 定休日 毎週火曜日・水曜日※5/1(金)~5/6(水)GW休業期間