杉並区本天沼2丁目
中央本線 荻窪駅 徒歩15分
1SLDK
建物面積:61.34㎡
土地面積:53.26㎡
2026年09月築(予定)
7,980万円



| 物件種別 | 中古戸建 |
| 所在地 | GoogleMaps |
| 交通 | |
| 間取り | 2LDK |
| 建物面積 | 76.57㎡(約23.16坪) |
| 土地面積 | 80.33㎡(約24.29坪) |
| 築年月 | 2018年11月築 |
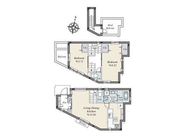
1階に広がる開放的なリビングは、家族が自然と集まる心地よい空間。 外への動線もスムーズで、日常の過ごしやすさを高めてくれます。 ▼立地 ・JR中央線、中央・総武緩行線、東京メトロ丸ノ内線 「荻窪」駅 徒歩15分の利便性 ・3路線利用可能で通勤、通学に便利 ▼建物の特徴 ・2018年11月築の2LDK ※3LDKへ変更可(別途費用がかかります) ・前面道路(公道)は幅員約5.4m ・LDK/約15.9帖 ・主寝室/約8.2帖 ・カウンターキッチン ・屋上バルコニー(照明・水栓あり) ・各階にトイレ ・ハイルーフ車駐車可 ▼周辺環境 ・スーパー徒歩圏内で日常買物便利 ・閑静な住宅街で落ち着いた住環境 【杉並区・中野区へのお住みかえをご検討中のお客様】 ご自宅の『売却』も三井のリハウスにお任せください。 『無料査定のお申込みは』 フリーコール 0120-133-304
| 所在地 | GoogleMaps |
| 価格 | 7,980万円 |
| 交通 | |
| その他費用 | - |
| 間取り | 2LDK |
| 建物面積 | 76.57㎡(約23.16坪) |
| 土地面積 | 80.33㎡(約24.29坪) |
| 築年月 | 2018年11月築 |
| 建物構造 | 木造2階建 |
| 現況 | 居住中 |
| 駐車場 | 有 |
| 土地権利 | 所有権 |
| 地目 | 宅地 |
| 接道状況 | 西側: 約 5.4m (公道) |
| 建ぺい率 | 50% |
| 容積率 | 100% |
| 用途地域 | 第一種低層住居専用地域 |
| 都市計画 | 市街化区域 |
| 備考 | - |
| 引渡時期 | 相談 |
| 取引態様 | 仲介 |
| 更新日 | 2026年04月17日 |
| 次回更新予定 | 2026年05月01日 |
| 物件番号 | F23BCA07 |
最新のAI技術を活用した相談サービスです。
お客様一人ひとりのニーズに合わせて最適な情報をご提供します。
リハウスAIチャットの詳しい説明はこちら
GoogleMaps
| スーパー | サミットストア本天沼店 約600m(徒歩8分) |
| スーパー | スーパー文化堂阿佐ヶ谷店 約600m(徒歩8分) |
| 公園 | 本天沼南公園 約200m(徒歩3分) |
| 病院 | 根岸医院 約500m(徒歩7分) |
| 小学校 | 杉並区立天沼小学校 約640m(徒歩8分) |
| 中学校 | 杉並区立天沼中学校 約860m(徒歩11分) |
| その他利便施設1 | セブンイレブン杉並日大二高店 約110m(徒歩2分) |
| その他利便施設2 | 杉並区立阿佐谷図書館 約860m(徒歩11分) |
0120-133-304
0120-133-304
物件の売却をご検討の方は、 はやめの査定依頼がおすすめです!
買い替えをご検討の方はこちら0120-133-304

