さいたま市緑区宮本1丁目
武蔵野線 東浦和駅 バス19分 朝日坂上 停歩2分
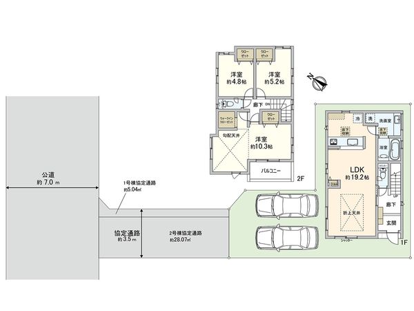
3LDK
建物面積:110.15㎡
土地面積:123.78㎡
2026年07月築(予定)
4,198万円



| 物件種別 | 新築戸建 |
| 所在地 | GoogleMaps |
| 交通 | 武蔵野線 東浦和駅 バス19分 朝日坂上 停歩2分 |
| 間取り | 3LDK |
| 建物面積 | 96.25㎡(約29.11坪) |
| 土地面積 | 141.56㎡(約42.82坪) |
| 築年月 | 2026年07月築(予定) |
-物件のおすすめポイント- ▼立地 ・JR武蔵野線「東浦和」駅バス19分「朝日坂上」停歩2分 ▼物件の特徴 ・2階建3LDKの新築戸建 ・カースペース2台分あり(車種による) ・前面道路幅員約7.0mにつき開放感あり ▼お部屋の特徴 ・リビングが見渡せる対面式キッチン ・折り上げ天井を採用したLDKは約19.2帖 ・勾配天井の開放的な洋室約10.3帖 ・掃除がしやすい全居室フローリング仕様 ▼設備 ・家事の負担を軽減できる食器洗浄機付システムキッチン ・雨の日の洗濯にも便利な浴室換気乾燥機付 ・トイレには快適な温水洗浄便座付 ・ウォークインクローゼット・床下収納などもあり、収納豊富 ・窓付の明るい浴室 ・24時間換気システム ・室内物干 ・全居室収納 ▼周辺環境 ・ミニストップさいたま宮本店まで徒歩4分(約270m) ・宮本第二公園まで徒歩7分(約530m) ■ ご希望の住まい探しをお手伝いします ━━━━━・・・ 物件の詳細・ご相談はお気軽にお問い合わせください。
| 所在地 | GoogleMaps |
| 価格 | 4,198万円 |
| 交通 | 武蔵野線 東浦和駅 バス19分 朝日坂上 停歩2分 |
| その他費用 | - |
| 間取り | 3LDK |
| 建物面積 | 96.25㎡(約29.11坪) |
| 土地面積 | 141.56㎡(約42.82坪) |
| 築年月 | 2026年07月築(予定) |
| 建物構造 | 木造2階建 |
| 現況 | 未完成 |
| 駐車場 | 有 |
| 土地権利 | 所有権 |
| 地目 | 宅地 |
| 接道状況 | 北西側: 約 7m (公道) |
| 建ぺい率 | 60%・60% |
| 容積率 | 100%・200% |
| 用途地域 | 第一種低層住居専用地域/第一種住居地域 |
| 都市計画 | 市街化区域 |
| 建築確認番号 | 第26UDI1W建00165号 |
| 備考 | 土地面積に協定通路部分約28.07平米含む(通行地役権設置要) 22条区域、埋蔵文化財包蔵地、絶対高さ制限(10m)、景観地区 |
| 引渡時期 | 2026年08月下旬以降 |
| 取引態様 | 仲介 |
| 更新日 | 2026年04月27日 |
| 次回更新予定 | 2026年05月11日 |
| 物件番号 | F49BDA0F |
最新のAI技術を活用した相談サービスです。
お客様一人ひとりのニーズに合わせて最適な情報をご提供します。
リハウスAIチャットの詳しい説明はこちら
GoogleMaps
| スーパー | ヨークマート三室店 約840m(徒歩11分) |
| スーパー | ジェーソン浦和三室店 約700m(徒歩9分) |
| 公園 | 宮本第二公園 約530m(徒歩7分) |
| 病院 | ハーモニークリニック 約770m(徒歩10分) |
| 小学校 | さいたま市立芝原小学校 約990m(徒歩13分) |
| 中学校 | さいたま市立三室中学校 約790m(徒歩10分) |
| その他利便施設1 | ミニストップさいたま宮本店 約270m(徒歩4分) |
| その他利便施設2 | セブンイレブンさいたま松木2丁目店 約750m(徒歩10分) |
| その他利便施設3 | ドラッグセイムス浦和三室店 約720m(徒歩9分) |
三井不動産リアルティ株式会社
国土交通大臣(15)第777号
0120-377-231
0120-377-231
物件の売却をご検討の方は、 はやめの査定依頼がおすすめです!
買い替えをご検討の方はこちら0120-377-231

