MINEX浅間町
店舗×1戸、1R×20戸/444.51㎡(約134.46坪)
15,000万円



物件情報
おすすめポイント
周辺情報
取扱店舗
| 物件種別 | 一棟マンション |
| 所在地 | GoogleMaps |
| 交通 | |
| 間取り | 店舗×1戸、1R×20戸 |
| 建物面積 | 444.51㎡(約134.46坪) |
| 土地面積 | 142.61㎡(約43.13坪) |
| 築年月 | 1988年03月築 |
| 想定賃料 (年間) | 9,456,000円(満室時想定) |
| 想定利回り | 6.3% |
| 現行賃料 (年間) | 7,320,000円 |
| 現行利回り | 4.8% |
| 賃貸状況 | 総戸数21戸、稼働戸数16戸 ※総戸数には住戸数以外の店舗等の戸数も含まれています。 |
| 備考 | ※利回りは、販売価格に対する年間の賃料収入(共益費等を含む)の割合で、公租公課その他当該物件を維持するために必要な費用の控除前のものです。なお、想定賃料・想定利回りは、賃料相場をもとに空室部分の賃料を加え満室時を想定して算出したものです。 ※賃料収入は、将来にわたって確実に得られることを保証するものではありません。 (調査日: 2026年04月05日現在) |
この物件情報を共有する
おすすめポイント
特徴
- 前面道路幅員6m以上
■北東角地 ○ 現行利回り :約4.88%[現行賃料:年間:7,320,000円] ○ 満室想定利回り:約6.30%[想定賃料:年間:9,456,000円] 総戸数21戸/稼働数16戸(調査日:2026年4月5日現在) ※利回りは、販売価格に対する年間現行・想定賃料収入(賃料の12か月分。共益費等を含む。)の割合で、 公租公課その他当該物件を維持するために必要な費用の控除前のものです。また、空室部分の想定賃料を保証するものではありません。
物件情報
| 所在地 | GoogleMaps |
| 価格 | 15,000万円 |
| 交通 | |
| その他費用 | - |
| 間取り | 店舗×1戸、1R×20戸 |
| 建物面積 | 444.51㎡(約134.46坪) |
| 土地面積 | 142.61㎡(約43.13坪) |
| 建物内の住戸数 | 20戸 |
| 各住戸の専有面積 | 17.42㎡〜20㎡ |
| 築年月 | 1988年03月築 |
| 建物構造 | 鉄筋コンクリート造5階建 |
| 現況 | 賃貸中 |
| 駐車場 | - |
| 土地権利 | 所有権 |
| 地目 | 宅地 |
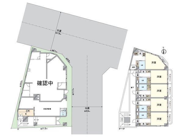
| 接道状況 | 北側: 約 7.9m (公道)、東側: 約 5.9m (公道) |
| 建ぺい率 | 80% |
| 容積率 | 400% |
| 用途地域 | 近隣商業地域 |
| 都市計画 | 市街化区域 |
| 備考 | ※賃貸中(賃貸借契約引継要) ※間取は賃貸中で室内確認が出来ないため、現況と相違する可能性がございます。オーナーチェンジ物件のため内覧は出来かねます。ご了承ください。 |
| 引渡時期 | 相談 |
| 取引態様 | 仲介 |
| 更新日 | 2026年04月15日 |
| 次回更新予定 | 2026年04月29日 |
| 物件番号 | F4FARA06 |
周辺情報
GoogleMaps
| スーパー | フィール花の木店 約580m(徒歩8分) |
| 病院 | 松久医院 約170m(徒歩3分) |
| 小学校 | 名古屋市立なごや小学校 約540m(徒歩7分) |
| 中学校 | 名古屋市立菊井中学校 約160m(徒歩2分) |
| その他利便施設1 | ファミリーマート浅間町駅前店 約420m(徒歩6分) |
| その他利便施設2 | ドラッグユタカ押切店 約390m(徒歩5分) |
| その他利便施設3 | 名古屋押切郵便局 約360m(徒歩5分) |
| その他利便施設4 | 浅間町駅(名古屋市交通局 鶴舞線) 約300m(徒歩4分) |
| その他利便施設5 | 名古屋城 約1029m(徒歩13分) |
| その他利便施設6 | 約0m(徒歩0分) |
取扱店舗
名古屋支店 リテール資産営業部 営業グループ
- 営業時間
- 10:00~18:00
- 定休日
- 毎週火曜日・水曜日
- 住所
- 愛知県名古屋市中村区名駅南1-24-30 名古屋三井ビルディング本館11階
三井不動産リアルティ株式会社
国土交通大臣(15)第777号
名古屋支店 リテール資産営業部 営業グループ
- 営業時間10:00~18:00
- 定休日毎週火曜日・水曜日
0120-944-531
名古屋市西区の物件情報
この物件のリノベーションに関する問い合わせはこちらから。
リノベーション工事の可能範囲については、本物件の管理組合規約等により一定の制限が加わる場合がございます。詳細については、工事内容の確定後に判明する部分もありますので、この点については事前にお含みおきください。
リノベーションに関するお問い合わせこの物件を見学してみませんか?
この物件についてお問い合わせ
物件・住環境の詳しい情報、購入・ローン相談など、ささいなことでもお気軽にお問い合わせください。名古屋支店 リテール資産営業部 営業グループ
- 営業時間10:00~18:00
- 定休日毎週火曜日・水曜日
0120-944-531

物件の売却をご検討の方は、 はやめの査定依頼がおすすめです!
買い替えをご検討の方はこちら見学予約
お問い合わせ
0120-944-531
- 営業時間 10:00~18:00
- 定休日 毎週火曜日・水曜日

