さいたま市緑区東浦和6丁目
武蔵野線 東浦和駅 徒歩17分
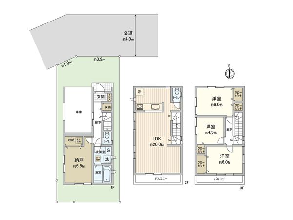
3SLDK
建物面積:99.36㎡
土地面積:77.6㎡
2015年11月築
3,280万円



| 物件種別 | 中古戸建 |
| 所在地 | GoogleMaps |
| 交通 | |
| 間取り | 3SLDK ※S・サービススペースは納戸です |
| 建物面積 | 100.44㎡(約30.38坪) |
| 土地面積 | 77.18㎡(約23.34坪) |
| 築年月 | 2015年06月築 |
■ おすすめポイント ━━━━━━━━━━━━━━━・・・・・ ○ 武蔵野線「東浦和」駅徒歩17分 ○ 建物面積100.44平米の3SLDK ○ 車庫あり(車種による) ○ リビングが見渡せる対面システムキッチン ○ 全居室収納 ○ 床下収納(1F納戸収納、洗面室) ○ 一坪タイプのユニットバス(浴室乾燥機付) ○ TVモニター付きインターホン ○ 南面バルコニーにつき陽当たり良好 ○ 徒歩10分圏内にコンビニ・ドラッグストア・病院があり住環境良好 〇駐車スペース2台有(車種による) ■ リフォーム内容(2026年4月末完了予定) ━━━━━━━━━━━━━━━・・・・・ ○ クロス全室交換 ○ 温水洗浄便座交換 ○ 外壁排水管シーリング ○ ハウスクリーニング
| 所在地 | GoogleMaps |
| 価格 | 3,280万円 |
| 交通 | |
| その他費用 | - |
| 間取り | 3SLDK ※S・サービススペースは納戸です |
| 建物面積 | 100.44㎡(約30.38坪) |
| 土地面積 | 77.18㎡(約23.34坪) |
| 築年月 | 2015年06月築 |
| 建物構造 | 木造3階建 |
| 現況 | 空家 |
| 駐車場 | 有 |
| 土地権利 | 所有権 |
| 地目 | 宅地 |
| 接道状況 | 北側: 約 4m (公道) |
| 建ぺい率 | 60% |
| 容積率 | 200%(但し、前面道路幅員により160%に制限されます。) |
| 用途地域 | 第一種住居地域 |
| 都市計画 | 市街化区域 |
| 備考 | ※高度地区(15m地区) |
| 引渡時期 | 相談 |
| 取引態様 | 仲介 |
| 更新日 | 2026年03月30日 |
| 次回更新予定 | 2026年04月13日 |
| 物件番号 | F50BCA2B |
最新のAI技術を活用した相談サービスです。
お客様一人ひとりのニーズに合わせて最適な情報をご提供します。
リハウスAIチャットの詳しい説明はこちら
GoogleMaps
| スーパー | マックスバリュエクスプレス大牧店 約1200m(徒歩15分) |
| 公園 | 梅所第一公園 約370m(徒歩5分) |
| 病院 | 東和病院 約750m(徒歩10分) |
| 小学校 | さいたま市立大牧小学校 約410m(徒歩6分) |
| 中学校 | さいたま市立尾間木中学校 約1000m(徒歩13分) |
| その他利便施設1 | セブンイレブンさいたま大牧店 約300m(徒歩4分) |
| その他利便施設2 | ドラッグストアセキ東浦和店 約350m(徒歩5分) |
| その他利便施設3 | 浦和大間木郵便局 約850m(徒歩11分) |
0120-031-631
0120-031-631
物件の売却をご検討の方は、 はやめの査定依頼がおすすめです!
買い替えをご検討の方はこちら0120-031-631

