さいたま市見沼区大字御蔵
京浜東北・根岸線 大宮駅 バス25分 庚申塚 停歩9分
4LDK
建物面積:92.73㎡
土地面積:101.48㎡
2007年02月築
2,980万円



| 物件種別 | 中古戸建 |
| 所在地 | GoogleMaps |
| 交通 | 京浜東北・根岸線 大宮駅 バス21分 日大前 停歩2分 |
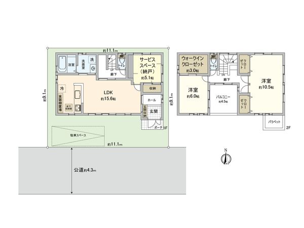
| 間取り | 2SLDK ※S・サービススペースは納戸です |
| 建物面積 | 97.7㎡(約29.55坪) |
| 土地面積 | 101.13㎡(約30.59坪) |
| 築年月 | 2008年04月築 |
■ おすすめポイント ━━━━━━━━━━━━━━━・・・・・ ○ 2008年4月築 ○ オール電化 ○ 家族との会話が弾む対面式キッチン ○ キッチンに床下収納あり ○ 洋室約6.0帖にウォークインクローゼットあり ○ 南面バルコニーにつき陽当たり良好 ○ 分譲時、3SLDKのプランを2SLDKへ変更しています ○ 駐車スペース1台有(車種制限有) ■ リフォーム内容━━━━━━━━━━━━━━━・・・・・ 【2021年2月完了】 ○ ベランダ手すり交換 ○ 外壁屋根塗装 ○ 玄関ドア交換 【2019年4月完了】 ○ キッチン交換 ○ 1F・2Fトイレ交換 ○ 浴室交換・洗面台交換工事 ○ リビング網戸張替 ○ LDK・玄関・洋室(6.0帖)クロス張替 ○ LDK・洋室(6.0帖)フローリング張替
| 所在地 | GoogleMaps |
| 価格 | 2,980万円 |
| 交通 | 京浜東北・根岸線 大宮駅 バス21分 日大前 停歩2分 |
| その他費用 | - |
| 間取り | 2SLDK ※S・サービススペースは納戸です |
| 建物面積 | 97.7㎡(約29.55坪) |
| 土地面積 | 101.13㎡(約30.59坪) |
| 築年月 | 2008年04月築 |
| 建物構造 | 木造2階建 |
| 現況 | 居住中 |
| 駐車場 | 有 |
| 土地権利 | 所有権 |
| 地目 | 宅地 |
| 接道状況 | 南側: 約 4.3m (公道) |
| 建ぺい率 | 60% |
| 容積率 | 200%(但し、前面道路幅員により172%に制限されます) |
| 用途地域 | 第一種住居地域 |
| 都市計画 | 市街化区域 |
| 備考 | ※ゴミ置き場面積/4.11平米(持ち分1/20) ※高度地区(15m) |
| 引渡時期 | 相談 |
| 取引態様 | 仲介 |
| 更新日 | 2026年05月24日 |
| 次回更新予定 | 2026年06月07日 |
| 物件番号 | F50BDA0C |
最新のAI技術を活用した相談サービスです。
お客様一人ひとりのニーズに合わせて最適な情報をご提供します。
リハウスAIチャットの詳しい説明はこちら
GoogleMaps
| スーパー | ヨークマート大宮南中野店 約280m(徒歩4分) |
| 公園 | 山中公園 約360m(徒歩5分) |
| 病院 | けいあいファミリークリニック 約390m(徒歩5分) |
| 小学校 | さいたま市立海老沼小学校 約400m(徒歩5分) |
| 中学校 | さいたま市立片柳中学校 約1250m(徒歩16分) |
| その他利便施設1 | セブンイレブンさいたま南中野店 約270m(徒歩4分) |
| その他利便施設2 | ウエルシアさいたま南中野店 約190m(徒歩3分) |
0120-031-631
0120-031-631
物件の売却をご検討の方は、 はやめの査定依頼がおすすめです!
買い替えをご検討の方はこちら0120-031-631

