さいたま市見沼区大字中川
京浜東北・根岸線 大宮駅 バス18分 西中野 停歩3分
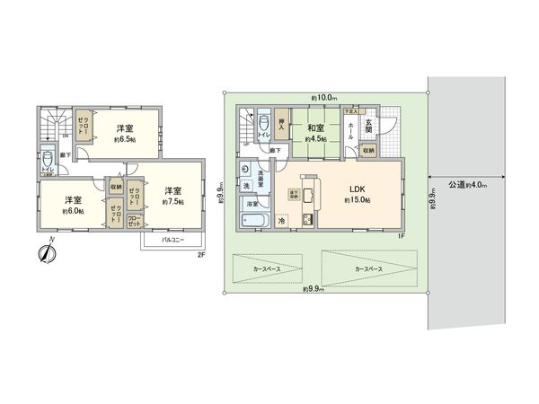
4LDK
建物面積:89.64㎡
土地面積:100.86㎡
2001年05月築
2,580万円



| 物件種別 | 中古戸建 |
| 所在地 | GoogleMaps |
| 交通 | |
| 間取り | 4LDK |
| 建物面積 | 98.01㎡(約29.64坪) |
| 土地面積 | 100.07㎡(約30.27坪) |
| 築年月 | 2011年07月築 |
■ おすすめポイント ━━━━━━━━━━━━━━━・・・・・ ○ 平成23年7月築の4LDK ○ 車2台駐車可能(車種による) ○ 整形地 ○ 室内きれいにお使いです ○ 都市ガス・本下水 ○ 空室につき即入居可(残代金精算後)
| 所在地 | GoogleMaps |
| 価格 | 2,580万円 |
| 交通 | |
| その他費用 | - |
| 間取り | 4LDK |
| 建物面積 | 98.01㎡(約29.64坪) |
| 土地面積 | 100.07㎡(約30.27坪) |
| 築年月 | 2011年07月築 |
| 建物構造 | 木造2階建 |
| 現況 | 空家 |
| 駐車場 | 有 |
| 土地権利 | 所有権 |
| 地目 | 宅地 |
| 接道状況 | 北東側: 約 4m (公道) |
| 建ぺい率 | 60% |
| 容積率 | 200%(前面道路幅員により160%に制限されます。) |
| 用途地域 | 第一種中高層住居専用地域 |
| 都市計画 | 市街化区域 |
| 備考 | - |
| 引渡時期 | 相談 |
| 取引態様 | 仲介 |
| 更新日 | 2026年04月27日 |
| 次回更新予定 | 2026年05月11日 |
| 物件番号 | F50BDA27 |
最新のAI技術を活用した相談サービスです。
お客様一人ひとりのニーズに合わせて最適な情報をご提供します。
リハウスAIチャットの詳しい説明はこちら
GoogleMaps
| スーパー | マルエツ東門前店 約530m(徒歩7分) |
| スーパー | Big-Aさいたま七里店 約850m(徒歩11分) |
| 公園 | 大谷松原公園 約260m(徒歩4分) |
| 病院 | 医療法人若葉会さいたま記念病院 約820m(徒歩11分) |
| 小学校 | さいたま市立大谷小学校 約850m(徒歩11分) |
| 中学校 | さいたま市立大谷中学校 約520m(徒歩7分) |
| その他利便施設1 | セブンイレブンさいたま大谷店 約440m(徒歩6分) |
| その他利便施設2 | ドラッグセイムス見沼新堤店 約430m(徒歩6分) |
| その他利便施設3 | ドラッグストアセキ東宮下店 約840m(徒歩11分) |
0120-031-631
0120-031-631
物件の売却をご検討の方は、 はやめの査定依頼がおすすめです!
買い替えをご検討の方はこちら0120-031-631

