練馬区田柄2丁目
東京メトロ有楽町線 地下鉄赤塚駅 徒歩6分
3SLDK
建物面積:97.6㎡
土地面積:101.45㎡
2017年09月築
9,700万円



| 物件種別 | 中古戸建 |
| 所在地 | GoogleMaps |
| 交通 | |
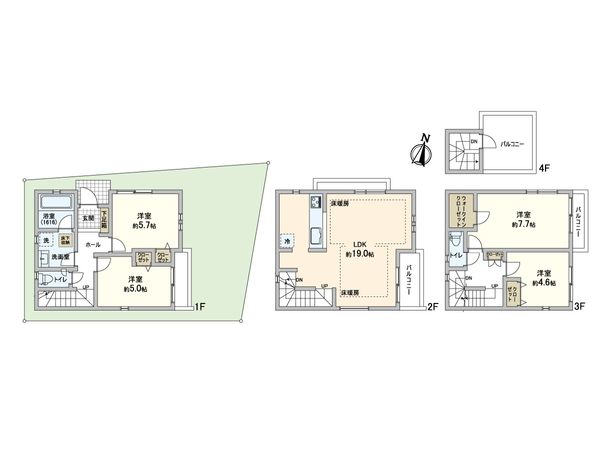
| 間取り | 4LDK |
| 建物面積 | 106.54㎡(約32.22坪) |
| 土地面積 | 80.17㎡(約24.25坪) |
| 築年月 | 2023年11月築 |
-物件のおすすめポイント- ▼立地 ・東武東上線「上板橋」駅 徒歩14分 ・東京メトロ有楽町線・副都心線「氷川台」駅 徒歩16分 ・3路線2駅利用可能 ▼特徴 ・プライバシーを保ちやすい2階リビング設計 ・LD部分床暖房有 ・3口コンロ ・1616サイズの広々とした浴室 ・全居室二面採光の明るい部屋 ・ウォークインクローゼット等豊富な収納スペース ・トイレ二か所(1F、3F) ・約19帖のゆったりとしたLDK ・カースペースあり(車種による) ・周辺に買い物施設多く、生活利便性良好 ▼周辺環境 ・オーケー上板橋店 約550m(徒歩7分) ・練馬区立仲町小学校 約290m(徒歩4分) ■ ご希望の住まい探しをお手伝いします ━━━━━・・・ 物件の詳細・ご相談はお気軽にお問い合わせください。
| 所在地 | GoogleMaps |
| 価格 | 9,700万円 |
| 交通 | |
| その他費用 | - |
| 間取り | 4LDK |
| 建物面積 | 106.54㎡(約32.22坪) |
| 土地面積 | 80.17㎡(約24.25坪) |
| 築年月 | 2023年11月築 |
| 建物構造 | 木造3階建 |
| 現況 | 空家 |
| 駐車場 | 有 |
| 土地権利 | 所有権 |
| 地目 | 宅地 |
| 接道状況 | 北側: 約 6.5m (公道)、東側: 約 4m (公道) |
| 建ぺい率 | 60% |
| 容積率 | 200% |
| 用途地域 | 第一種低層住居専用地域 |
| 都市計画 | 市街化区域 |
| 備考 | - |
| 引渡時期 | 相談 |
| 取引態様 | 仲介 |
| 更新日 | 2026年04月16日 |
| 次回更新予定 | 2026年04月30日 |
| 物件番号 | F56BTA01 |
最新のAI技術を活用した相談サービスです。
お客様一人ひとりのニーズに合わせて最適な情報をご提供します。
リハウスAIチャットの詳しい説明はこちら
GoogleMaps
| スーパー | オーケー上板橋店 約550m(徒歩7分) |
| 公園 | 城北中央公園 約220m(徒歩3分) |
| 病院 | 麦島内科クリニック 約160m(徒歩2分) |
| 小学校 | 練馬区立仲町小学校 約290m(徒歩4分) |
| 中学校 | 練馬区立開進第四中学校 約970m(徒歩13分) |
| その他利便施設1 | セブンイレブン練馬城北中央公園前店 約240m(徒歩3分) |
| その他利便施設2 | ファミリーマート桜川三丁目店 約370m(徒歩5分) |
| その他利便施設3 | トモズ上板橋南口店 約630m(徒歩8分) |
| その他利便施設4 | 上板橋郵便局 約740m(徒歩10分) |
三井不動産リアルティ株式会社
国土交通大臣(15)第777号
0120-929-231
0120-929-231
物件の売却をご検討の方は、 はやめの査定依頼がおすすめです!
買い替えをご検討の方はこちら0120-929-231

