墨田区八広1丁目
京成電鉄押上線 京成曳舟駅 徒歩7分
2DK
建物面積:305.64㎡
土地面積:158.67㎡
1982年06月築
11,980万円



| 物件種別 | 中古戸建 |
| 所在地 | GoogleMaps |
| 交通 | |
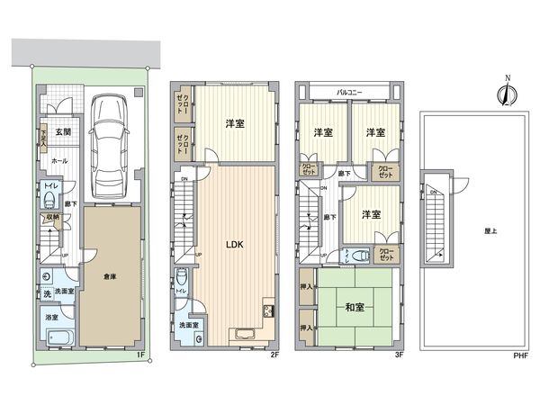
| 間取り | 5LDK |
| 建物面積 | 148.96㎡(約45.06坪) |
| 土地面積 | 70.87㎡(約21.43坪) |
| 築年月 | 1995年01月築 |
■ おすすめポイント ───・・・ 〇 3駅4路線利用可能 ・ 都営浅草線「本所吾妻橋」駅 徒歩6分 ・ 東京メトロ銀座線、都営浅草線、東武伊勢崎線「浅草」駅 徒歩14分 ・ 都営大江戸線「蔵前」駅 徒歩13分 〇 建物面積148.96平米/土地面積70.87平米 〇 3階建/5LDK+屋上+倉庫+車庫(車種制限有) 〇 屋上から東京スカイツリー、隅田川花火大会が望めます(※天候による) 〇 トイレ3カ所有(1階・2階・3階) 〇 洗面室2カ所有(1階・2階) 〇 閑静な住宅街
| 所在地 | GoogleMaps |
| 価格 | 11,980万円 |
| 交通 | |
| その他費用 | - |
| 間取り | 5LDK |
| 建物面積 | 148.96㎡(約45.06坪) |
| 土地面積 | 70.87㎡(約21.43坪) |
| 築年月 | 1995年01月築 |
| 建物構造 | 鉄骨造3階建 |
| 現況 | 居住中 |
| 駐車場 | 有 |
| 土地権利 | 所有権 |
| 地目 | 宅地 |
| 接道状況 | 北側: 約 4m (公道) |
| 建ぺい率 | 80% |
| 容積率 | 300%(前面道路幅員により240%へ制限されます。) |
| 用途地域 | 近隣商業地域 |
| 都市計画 | 市街化区域 |
| 備考 | - |
| 引渡時期 | 相談 |
| 取引態様 | 仲介 |
| 更新日 | 2026年04月27日 |
| 次回更新予定 | 2026年05月11日 |
| 物件番号 | F71BDA1C |
最新のAI技術を活用した相談サービスです。
お客様一人ひとりのニーズに合わせて最適な情報をご提供します。
リハウスAIチャットの詳しい説明はこちら
GoogleMaps
| スーパー | まいばすけっと 本所3丁目店 約240m(徒歩3分) |
| スーパー | サミット両国石原店 約700m(徒歩9分) |
| スーパー | Santoku 石原店 約500m(徒歩7分) |
| 公園 | 墨田区立 若宮公園 約350m(徒歩5分) |
| 病院 | 医療法人財団正明会 山田記念病院 約600m(徒歩8分) |
| 小学校 | 墨田区立 外手小学校 約450m(徒歩6分) |
| 中学校 | 墨田区立 本所中学校 約60m(徒歩1分) |
| その他利便施設1 | セブンイレブン 墨田本所3丁目店 約350m(徒歩5分) |
| その他利便施設2 | どらっぐぱぱす 東駒形店 約240m(徒歩3分) |
| その他利便施設3 | 墨田石原郵便局 約450m(徒歩6分) |
三井不動産リアルティ株式会社
国土交通大臣(15)第777号
0120-431-631
リノベーション工事の可能範囲については、本物件の管理組合規約等により一定の制限が加わる場合がございます。詳細については、工事内容の確定後に判明する部分もありますので、この点については事前にお含みおきください。
リノベーションに関するお問い合わせ0120-431-631
物件の売却をご検討の方は、 はやめの査定依頼がおすすめです!
買い替えをご検討の方はこちら0120-431-631

