松戸市大金平5丁目 戸建
3,049万円



| 物件種別 | 中古戸建 |
| 所在地 | GoogleMaps |
| 交通 | |
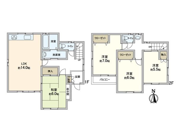
| 間取り | 4LDK |
| 建物面積 | 96.05㎡(約29.05坪) |
| 土地面積 | 115.9㎡(約35.05坪) ※別途私道約101㎡有 (共有持分 1/6) |
| 築年月 | 1985年01月築 |
この物件情報を共有する
おすすめポイント
■おすすめポイント ━━━━━━━━━━━━━━━・・・・・ 〇 千代田・常磐緩行線 「北小金」駅 徒歩22分 〇 流鉄流山線「小金城趾」駅 徒歩13分 〇 土地面積:115.90平米(約35.05坪) 〇 建物面積:96.05平米(約29.05坪)の4LDK 〇 第一種低層住居専用地域の閑静な住宅街 〇 南側道路につき日当り良好 〇 KEIHOKUスーパー鰭ケ崎店まで徒歩9分(約710m) ■リフォーム内容(令和8年5月完成予定)━━━━━━━━━━━━━━━・・・・・ 〇キッチン交換 〇ユニットバス交換 〇洗面化粧台交換 〇トイレ交換 〇給湯器交換 〇床フローリング重ね張り 〇クロス張替 〇外壁塗装 他 ■ライフインフォメーション ━━━━━━━━━━━━━━━・・・・・ 〇 KEIHOKUスーパー鰭ケ崎店 約710m 〇 ファミリーマート松戸大金平店 約450m 〇 クリエイトS・D松戸大金平店 約320m 〇 佐藤医院 約880m 〇 浅間公園 約150m 〇 松戸市立小金北小学校 約820m 〇 松戸市立小金北中学校 約1160m
リノベーション&リフォーム情報(予定含む)
台所(キッチン)交換 | バスルーム交換 |
トイレ交換 | 洗面化粧台交換 |
給湯器交換 |
水回り(キッチン、浴室、トイレ、洗面所、給湯器)(2026年5月)
内装(壁)(2026年5月)
外装(外壁)(2026年5月)
物件情報
| 所在地 | GoogleMaps |
| 価格 | 3,049万円 |
| 交通 | |
| その他費用 | - |
| 間取り | 4LDK |
| 建物面積 | 96.05㎡(約29.05坪) |
| 土地面積 | 115.9㎡(約35.05坪) ※別途私道約101㎡有 (共有持分 1/6) |
| 築年月 | 1985年01月築 |
| 建物構造 | 木造2階建 |
| 現況 | 空家 |
| 駐車場 | 有 |
| 土地権利 | 所有権 |
| 地目 | 宅地 |
| 接道状況 | 南側: 約 5m (私道) |
| 建ぺい率 | 50% |
| 容積率 | 100% |
| 用途地域 | 第一種低層住居専用地域 |
| 都市計画 | 市街化区域 |
| 備考 | 小学校・中学校までの距離は通学路ではございません。 |
| 引渡時期 | 相談 |
| 取引態様 | 仲介 |
| 更新日 | 2026年04月13日 |
| 次回更新予定 | 2026年04月27日 |
| 物件番号 | F77BGA23 |
この物件のことを
AIに聞いてみませんか?
最新のAI技術を活用した相談サービスです。
お客様一人ひとりのニーズに合わせて最適な情報をご提供します。
リハウスAIチャットの詳しい説明はこちら

周辺情報
GoogleMaps
| スーパー | KEIHOKUスーパー鰭ヶ崎店 約710m(徒歩9分) |
| 公園 | 浅間公園 約150m(徒歩2分) |
| 病院 | 佐藤医院 約880m(徒歩11分) |
| 小学校 | 松戸市立小金北小学校 約820m(徒歩11分) |
| 中学校 | 松戸市立小金北中学校 約1160m(徒歩15分) |
| その他利便施設1 | ファミリーマート松戸大金平店 約450m(徒歩6分) |
| その他利便施設2 | クリエイトS・D松戸大金平店 約320m(徒歩4分) |
取扱店舗
三井のリハウス 新松戸センター
- 営業時間10:00~18:00
- 定休日毎週火曜日・水曜日
0120-984-331
あなたへのおすすめ
松戸市の物件情報
この物件のリノベーションに関する問い合わせはこちらから。
リノベーション工事の可能範囲については、本物件の管理組合規約等により一定の制限が加わる場合がございます。詳細については、工事内容の確定後に判明する部分もありますので、この点については事前にお含みおきください。
リノベーションに関するお問い合わせこの物件を見学してみませんか?
この物件についてお問い合わせ
物件・住環境の詳しい情報、購入・ローン相談など、ささいなことでもお気軽にお問い合わせください。三井のリハウス 新松戸センター
- 営業時間10:00~18:00
- 定休日毎週火曜日・水曜日
0120-984-331

物件の売却をご検討の方は、 はやめの査定依頼がおすすめです!
買い替えをご検討の方はこちら見学予約
お問い合わせ
0120-984-331
- 営業時間 10:00~18:00
- 定休日 毎週火曜日・水曜日









