阿久和東2丁目 戸建
2,180万円



| 物件種別 | 中古戸建 |
| 所在地 | GoogleMaps |
| 交通 | |
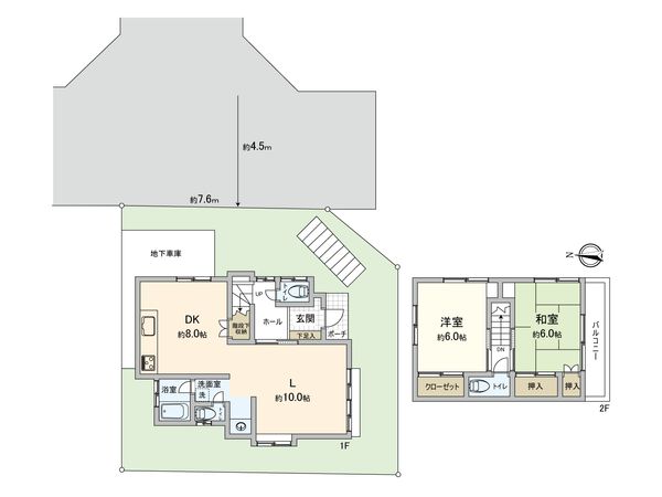
| 間取り | 2LDK |
| 建物面積 | 71.17㎡(約21.52坪) |
| 土地面積 | 100.8㎡(約30.49坪) ※別途私道約249.6㎡有 (共有持分 1/7) |
| 築年月 | 1985年05月築 |
この物件情報を共有する
予約制内覧会を開催します!
| 開催日 | 5月23日(土)11:00 ~ 17:00 5月24日(日)11:00 ~ 17:00 5月30日(土)11:00 ~ 17:00 5月31日(日)11:00 ~ 17:00 6月6日(土)11:00 ~ 17:00 |
|---|
おすすめポイント
設備
- 食器洗乾燥機
■ おすすめポイント━━━━━━━━━━━━━・・・・・ ○ 相鉄本線「希望ケ丘」駅 徒歩15分 ○ 第一種低層住居専用地域の閑静な住宅街 ○ 全居室6帖以上 ○ 全室2面採光につき、室内に明るい日差しが差し込みます ■ 設備・仕様 ━━━━━━━━━━━━━━━・・・・・ ○ 全居室に豊富な収納スペース ○ 雨風から大切な愛車を守るビルトインガレージ ■ 相鉄線~都心直通プロジェクト ・JR直通線(令和元年11月30日開通) 武蔵小杉、目黒、大崎、渋谷、新宿等にアクセス ・ 東急直通線(令和5年3月18日開通) 新横浜、新綱島、日吉等にアクセス 都心へのアクセスがしやすくなりました ■ 担当者からひとこと━━━━━━━━━━━━・・・・・ 阿久和東2丁目の戸建てのご紹介です。 周辺は公園が点在して緑が多く落ち着いた雰囲気です。 物件の詳細資料を取り揃えておりますので、 ご希望の方はメールフォームまたはフリーコールにて 三井のリハウス二俣川センターまでご連絡ください。 皆様からのお問い合わせを心よりお待ちしております。
物件情報
| 所在地 | GoogleMaps |
| 価格 | 2,180万円 |
| 交通 | |
| その他費用 | - |
| 間取り | 2LDK |
| 建物面積 | 71.17㎡(約21.52坪) |
| 土地面積 | 100.8㎡(約30.49坪) ※別途私道約249.6㎡有 (共有持分 1/7) |
| 築年月 | 1985年05月築 |
| 建物構造 | 木造2階建 |
| 現況 | 空家 |
| 駐車場 | - |
| 土地権利 | 所有権 |
| 地目 | 宅地 |
| 接道状況 | 北東側: 約 4.5m (私道) |
| 建ぺい率 | 50% |
| 容積率 | 80% |
| 用途地域 | 第一種低層住居専用地域 |
| 都市計画 | 市街化区域 |
| 備考 | 建物面積の他、車庫面積別途あり。 |
| 引渡時期 | 即時 |
| 取引態様 | 仲介 |
| 更新日 | 2026年05月11日 |
| 次回更新予定 | 2026年05月25日 |
| 物件番号 | F82BGA27 |
この物件のことを
AIに聞いてみませんか?
最新のAI技術を活用した相談サービスです。
お客様一人ひとりのニーズに合わせて最適な情報をご提供します。
リハウスAIチャットの詳しい説明はこちら

周辺情報
GoogleMaps
| スーパー | ライフ希望が丘店 約880m(徒歩11分) |
| 公園 | 阿久和小金第三公園 約80m(徒歩1分) |
| 病院 | 飛田医院 約550m(徒歩7分) |
| 小学校 | 横浜市立原小学校 約1170m(徒歩15分) |
| 中学校 | 横浜市立原中学校 約1060m(徒歩14分) |
| その他利便施設1 | 希望ケ丘駅(相鉄本線) 約1150m(徒歩15分) |
| その他利便施設2 | セブンイレブン横浜阿久和東1丁目店 約600m(徒歩8分) |
| その他利便施設3 | ハックドラッグ希望が丘SC店 約830m(徒歩11分) |
| その他利便施設4 | 横浜南希望が丘郵便局 約990m(徒歩13分) |
取扱店舗
- 営業時間
- 10:00~18:00
- 定休日
- 毎週火曜日・水曜日
- 住所
- 神奈川県横浜市旭区二俣川2-50-14 コプレ二俣川3F
三井不動産リアルティ株式会社
国土交通大臣(15)第777号
三井のリハウス 二俣川センター
- 営業時間10:00~18:00
- 定休日毎週火曜日・水曜日
0120-993-831
横浜市瀬谷区の物件情報
この物件のリノベーションに関する問い合わせはこちらから。
リノベーション工事の可能範囲については、本物件の管理組合規約等により一定の制限が加わる場合がございます。詳細については、工事内容の確定後に判明する部分もありますので、この点については事前にお含みおきください。
リノベーションに関するお問い合わせこの物件を見学してみませんか?
この物件についてお問い合わせ
物件・住環境の詳しい情報、購入・ローン相談など、ささいなことでもお気軽にお問い合わせください。三井のリハウス 二俣川センター
- 営業時間10:00~18:00
- 定休日毎週火曜日・水曜日
0120-993-831

物件の売却をご検討の方は、 はやめの査定依頼がおすすめです!
買い替えをご検討の方はこちら見学予約
お問い合わせ
0120-993-831
- 営業時間 10:00~18:00
- 定休日 毎週火曜日・水曜日

