川崎市宮前区菅生2丁目
東急田園都市線 宮前平駅 バス23分 長沢 停歩4分
4LDK
建物面積:118.41㎡
土地面積:71.86㎡
新築
4,480万円



| 物件種別 | 中古戸建 |
| 所在地 | GoogleMaps |
| 交通 | |
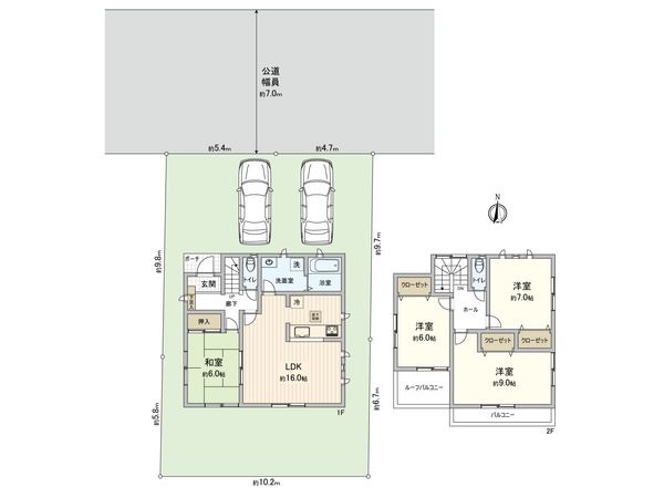
| 間取り | 4LDK |
| 建物面積 | 104.33㎡(約31.55坪) |
| 土地面積 | 160.67㎡(約48.6坪) |
| 築年月 | 2015年01月築 |
■アクセス ━━━━━━━━━━━━━━━・・・・・ 〇 バス停「稗原小学校前」停歩4分 2路線5駅バス利用可能 ・東急田園都市線「溝の口」駅 バス29分 「宮前平」駅 バス22分 ・小田急線「新百合ヶ丘」駅バス27分 「生田」駅バス24分 「登戸」駅バス32分 ■おすすめポイント━━━━━━━━━━━━━・・・・・ 〇 2015年築1月築 〇 4LDKの間取り 〇 閑静な住宅街に立地 〇 160.67平米の敷地 〇 カースペース2台分(車種による制限有) 〇 約16帖のLDK 〇 対面式キッチンはカップボードを置いてもゆとりあるスペース 〇 各居室6帖以上の広さ 〇 1階和室はLDKと一体となって利用可能 〇 2階主寝室は約9.0帖 〇 南側のお庭で家庭菜園など楽しめます 〇 外壁塗装・屋根塗装(2023年12月完了) ■生活を彩る設備・仕様━━━━━━━━━━━━━・・・・・ 〇 太陽光パネル(2019年2月) 〇 浴室換気乾燥機 〇 床暖房(リビング部分) 〇 床下収納 〇 給湯器交換(2025年8月)
| 所在地 | GoogleMaps |
| 価格 | 4,480万円 |
| 交通 | |
| その他費用 | - |
| 間取り | 4LDK |
| 建物面積 | 104.33㎡(約31.55坪) |
| 土地面積 | 160.67㎡(約48.6坪) |
| 築年月 | 2015年01月築 |
| 建物構造 | 木造2階建 |
| 現況 | 居住中 |
| 駐車場 | 有 |
| 土地権利 | 所有権 |
| 地目 | 宅地 |
| 接道状況 | 北側: 約 7m (公道) |
| 建ぺい率 | 50% |
| 容積率 | 80% |
| 用途地域 | 第一種低層住居専用地域 |
| 都市計画 | 市街化区域 |
| 備考 | - |
| 引渡時期 | 相談 |
| 取引態様 | 仲介 |
| 更新日 | 2026年04月30日 |
| 次回更新予定 | 2026年05月14日 |
| 物件番号 | F87ASA0B |
最新のAI技術を活用した相談サービスです。
お客様一人ひとりのニーズに合わせて最適な情報をご提供します。
リハウスAIチャットの詳しい説明はこちら
GoogleMaps
| 公園 | 鷲ヶ峰公園 約350m(徒歩5分) |
| 公園 | 菅生第4公園 約350m(徒歩5分) |
| 小学校 | 川崎市立稗原小学校 約160m(徒歩2分) |
| 中学校 | 川崎市立菅生中学校 約1000m(徒歩13分) |
| その他利便施設1 | ドラッグストア マツモトキヨシ 川崎水沢店 約550m(徒歩7分) |
| その他利便施設2 | ローソン LTF川崎北部市場店 約750m(徒歩10分) |
| その他利便施設3 | ファミリーマート 水沢三丁目店 約800m(徒歩10分) |
| その他利便施設4 | ノジマ 川崎水沢店 約450m(徒歩6分) |
三井不動産リアルティ株式会社
国土交通大臣(15)第777号
0120-313-730
0120-313-730
物件の売却をご検討の方は、 はやめの査定依頼がおすすめです!
買い替えをご検討の方はこちら0120-313-730

