藤沢市大鋸3丁目 戸建
3,790万円



| 物件種別 | 中古戸建 |
| 所在地 | GoogleMaps |
| 交通 | |
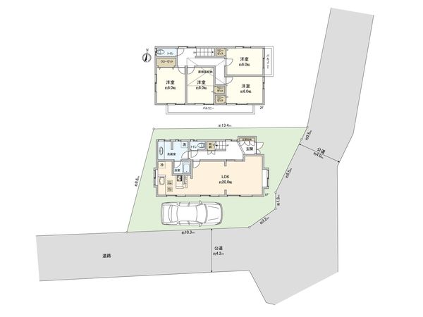
| 間取り | 4LDK |
| 建物面積 | 107.93㎡(約32.64坪) |
| 土地面積 | 114.85㎡(約34.74坪) |
| 築年月 | 1994年06月築 |
この物件情報を共有する
毎月のお支払い目安
返済計画を入力すると毎月のお支払い目安を表示できます
- ローン106,986円
- 管理費+修繕積立金0円
- その他費用0円
おすすめポイント
設備
- 浴室乾燥機
- TVモニタ付インターホン
- 食器洗乾燥機
特徴
- LDK20畳以上
-物件のおすすめポイント- ▼立地 ・JR東海道本線「藤沢」駅 徒歩15分 小田急江ノ島線「藤沢」駅 徒歩16分 または バス10分「山王神社前」 停歩3分 ▼建物の特徴 ・南東角地につき開放感あり ・高台立地のため東向きバルコニーからの眺望良好 ・カースペース1台分あり(車種による) ▼お部屋の特徴 ・3面採光の明るいLDK約20帖 ・全居室6帖以上 ▼設備 ・食器洗浄乾燥機 ・浄水器内蔵ハンドシャワー水栓 ・浴室換気乾燥機 ・シャンプードレッサー ・1・2階トイレ ・全居室収納/バルコニーに面す ・屋根裏収納 ・2面バルコニー ▼リフォーム内容(2025年10月) 【新規交換】キッチン、UB、洗面化粧台、トイレ、建具 等 【張替】フローリング、フロアタイル、クロス 【その他】外壁・屋根塗装、バルコニー防水 ▼周辺環境 ・交通量の少ない閑静な住宅街 ・スーパー、コンビニ、公園などが徒歩10分圏内 ■ ご希望の住まい探しをお手伝いします ━━━━・・・ 物件の詳細・ご相談はお気軽にお問い合わせください。
リノベーション&リフォーム情報
台所(キッチン)交換 | バスルーム交換 |
トイレ交換 | 洗面化粧台交換 |
床貼り替え | 給湯器交換 |
扉交換 |
水回り(キッチン、浴室、トイレ、洗面所、給湯器)(2025年10月)
内装(床、壁、建具、照明器具、スイッチコンセント)(2025年10月)
外装(外壁、屋根)(2025年10月)
インターホン交換、バルコニー防水(2025年10月)
物件情報
| 所在地 | GoogleMaps |
| 価格 | 3,790万円 |
| 交通 | |
| その他費用 | - |
| 間取り | 4LDK |
| 建物面積 | 107.93㎡(約32.64坪) |
| 土地面積 | 114.85㎡(約34.74坪) |
| 築年月 | 1994年06月築 |
| 建物構造 | 木造2階建 |
| 現況 | 空家 |
| 駐車場 | 有 |
| 土地権利 | 所有権 |
| 地目 | 宅地 |
| 接道状況 | 南側: 約 4.2m (公道)、東側: 約 4m (公道) |
| 建ぺい率 | 50% |
| 容積率 | 80% |
| 用途地域 | 第一種低層住居専用地域 |
| 都市計画 | 市街化区域 |
| 備考 | 法22条区域/宅地造成工事規制区域/埋蔵文化財包蔵地 ※本物件は規定の容積率をオーバーしており、再建築にあたり同規模の建築物は建築できません。 |
| 引渡時期 | 即時 |
| 取引態様 | 仲介 |
| 更新日 | 2026年01月05日 |
| 次回更新予定 | 2026年01月19日 |
| 物件番号 | F90AGB75 |
この物件のことを
AIに聞いてみませんか?
最新のAI技術を活用した相談サービスです。
お客様一人ひとりのニーズに合わせて最適な情報をご提供します。
リハウスAIチャットの詳しい説明はこちら

周辺情報
GoogleMaps
| スーパー | ユーコープ 藤が岡店 約410m(徒歩6分) |
| スーパー | スーパー三和 藤沢橋店 約730m(徒歩10分) |
| 公園 | 大鋸天神山公園 約250m(徒歩4分) |
| 病院 | ふじさわ駅前ファミリークリニック 約670m(徒歩9分) |
| 小学校 | 藤沢市立大鋸小学校 約880m(徒歩11分) |
| 中学校 | 藤沢市立藤ヶ岡中学校 約870m(徒歩11分) |
| その他利便施設1 | ファミリーマート 藤沢藤が岡店 約430m(徒歩6分) |
| その他利便施設2 | セブン-イレブン 藤沢大鋸店 約670m(徒歩9分) |
| その他利便施設3 | スギドラッグ 三和藤沢橋店 約730m(徒歩10分) |
| その他利便施設4 | 藤沢藤ヶ岡郵便局 約560m(徒歩7分) |
取扱店舗
三井のリハウス 藤沢センター
- 営業時間10:00~18:00
- 定休日毎週火曜日・水曜日
0120-399-031
あなたへのおすすめ
藤沢市の物件情報
この物件を見学してみませんか?
この物件についてお問い合わせ
物件・住環境の詳しい情報、購入・ローン相談など、ささいなことでもお気軽にお問い合わせください。三井のリハウス 藤沢センター
- 営業時間10:00~18:00
- 定休日毎週火曜日・水曜日
0120-399-031

物件の売却をご検討の方は、 はやめの査定依頼がおすすめです!
買い替えをご検討の方はこちら見学予約
お問い合わせ
0120-399-031
- 営業時間 10:00~18:00
- 定休日 毎週火曜日・水曜日









