名古屋市緑区東神の倉2丁目 戸建
3,480万円



| 物件種別 | 中古戸建 |
| 所在地 | GoogleMaps |
| 交通 | 名古屋市桜通線 徳重駅 バス16分 東神の倉2丁目 停歩3分 |
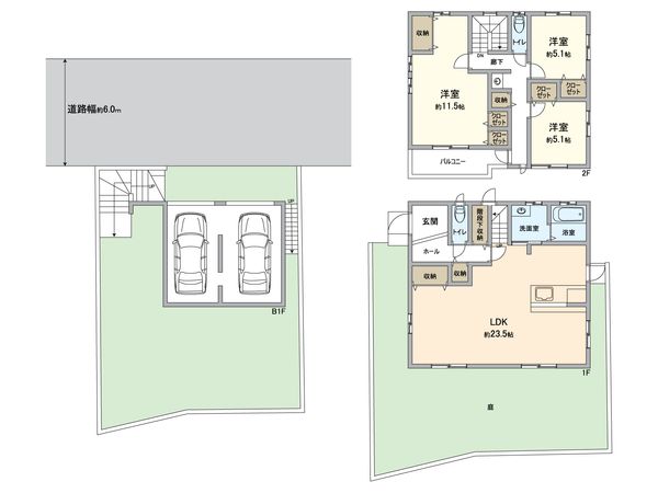
| 間取り | 3LDK |
| 建物面積 | 138.28㎡(約41.82坪) |
| 土地面積 | 124.05㎡(約37.52坪) |
| 築年月 | 2005年05月築 |
この物件情報を共有する
おすすめポイント
特徴
- LDK20畳以上
-物件のおすすめポイント- ▼立地 ・神の倉小学校徒歩約10分、神の倉中学校徒歩約11分 ▼建物の特徴 ・木・鉄筋コンクリート造の3階建 ・北側約6m幅の公道に接面 ・インナーガレージ2台駐車可能(車種による) ・広い庭付きで趣味やBBQも楽しめます ▼設備 ・20帖以上の広々としたLDK ・全居室収納付きで収納力充実 ・窓付きの明るい浴室 ▼リフォーム内容(令和8年4月完了) ・外壁塗装 ・水回り新品交換(キッチン・浴室・トイレ・洗面台・洗濯パン) ・全室クロス張替え ・全居室フロアタイル上張り ・2・3階洗面所・トイレ・クッションフロア張替え ・LDK拡張・クローゼット新設 ・防水・防蟻工事 ・玄関扉交換 ・玄関・階段タイル張替え ・外構リフレッシュ ・クリーニング 等 ▼周辺環境 ・閑静な住宅街で子育てにも適した環境です ■ ご希望の住まい探しをお手伝いします ━━━━━・・・ 物件の詳細・ご相談はお気軽にお問い合わせください。
リノベーション&リフォーム情報
台所(キッチン)交換 | バスルーム交換 |
トイレ交換 | 洗面化粧台交換 |
床貼り替え |
水回り(キッチン、浴室、トイレ、洗面所)(2026年4月)
内装(床、壁)(2026年4月)
外装(外壁)(2026年4月)
物件情報
| 所在地 | GoogleMaps |
| 価格 | 3,480万円 |
| 交通 | 名古屋市桜通線 徳重駅 バス16分 東神の倉2丁目 停歩3分 |
| その他費用 | - |
| 間取り | 3LDK |
| 建物面積 | 138.28㎡(約41.82坪) |
| 土地面積 | 124.05㎡(約37.52坪) |
| 築年月 | 2005年05月築 |
| 建物構造 | 木造3階建 |
| 現況 | 空家 |
| 駐車場 | - |
| 土地権利 | 所有権 |
| 地目 | 宅地 |
| 接道状況 | - |
| 建ぺい率 | 40% |
| 容積率 | 80% |
| 用途地域 | 第一種低層住居専用地域 |
| 都市計画 | 市街化区域 |
| 備考 | 上記建物面積のうち1F車庫面積23.18㎡含む |
| 引渡時期 | 即時 |
| 取引態様 | 仲介 |
| 更新日 | 2026年04月23日 |
| 次回更新予定 | 2026年05月07日 |
| 物件番号 | FA5BGA1B |
この物件のことを
AIに聞いてみませんか?
最新のAI技術を活用した相談サービスです。
お客様一人ひとりのニーズに合わせて最適な情報をご提供します。
リハウスAIチャットの詳しい説明はこちら

周辺情報
GoogleMaps
| スーパー | 業務スーパー赤池モチロ店 約700m(徒歩9分) |
| スーパー | Felna赤池店 約680m(徒歩9分) |
| スーパー | ヤマナカ 白土フランテ館 約850m(徒歩11分) |
| 小学校 | 神の倉小学校 約730m(徒歩10分) |
| 中学校 | 神の倉中学校 約880m(徒歩11分) |
| その他利便施設1 | ローソン緑区神ノ倉店 約250m(徒歩4分) |
| その他利便施設2 | ローソン東郷西白土店 約550m(徒歩7分) |
| その他利便施設3 | V・drug赤池店 約650m(徒歩9分) |
| その他利便施設4 | スギ薬局白土店 約800m(徒歩10分) |
取扱店舗
三井のリハウス 徳重センター
- 営業時間10:00~18:00
- 定休日毎週火曜日・水曜日
0120-16-0031
あなたへのおすすめ
名古屋市緑区の物件情報
この物件を見学してみませんか?
この物件についてお問い合わせ
物件・住環境の詳しい情報、購入・ローン相談など、ささいなことでもお気軽にお問い合わせください。三井のリハウス 徳重センター
- 営業時間10:00~18:00
- 定休日毎週火曜日・水曜日
0120-16-0031

物件の売却をご検討の方は、 はやめの査定依頼がおすすめです!
買い替えをご検討の方はこちら見学予約
お問い合わせ
0120-16-0031
- 営業時間 10:00~18:00
- 定休日 毎週火曜日・水曜日









