春日井市大留町8丁目
中央本線 神領駅 徒歩18分
4LDK
建物面積:119㎡
土地面積:258.8㎡
2008年04月築
6,080万円



| 物件種別 | 中古戸建 |
| 所在地 | GoogleMaps |
| 交通 | |
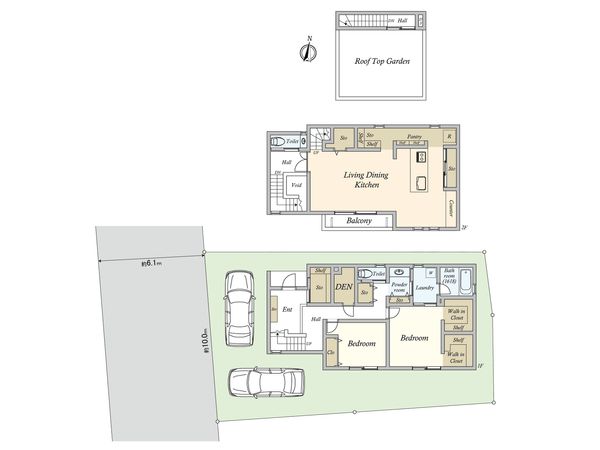
| 間取り | 2SLDK ※S・サービススペースは納戸です |
| 建物面積 | 115.72㎡(約35坪) |
| 土地面積 | 156.89㎡(約47.45坪) |
| 築年月 | 2022年10月築 |
-物件のおすすめポイント- ▼立地 ・2路線利用可能 ▼建物の特徴 ・西側道路幅員約6.1mに10m接道 ・駐車スペース2台分有(車種による) ・屋上付きの2SLDK ・室内こだわりの邸宅です ・認定長期優良住宅 ▼お部屋の特徴 ・2階部分がLDKとなっておりプライバシー確保されています ・納戸やウォークインクローゼットがあり収納充実 ・浴室サイズ1618 ・窓があり換気しやすい浴室 ■ご希望の住まい探しをお手伝いします ━━━━━ ・・・ 物件の詳細・ご相談はお気軽にお問い合わせください。
室内を内覧しているように物件を見学することができます。
| 所在地 | GoogleMaps |
| 価格 | 6,080万円 |
| 交通 | |
| その他費用 | - |
| 間取り | 2SLDK ※S・サービススペースは納戸です |
| 建物面積 | 115.72㎡(約35坪) |
| 土地面積 | 156.89㎡(約47.45坪) |
| 築年月 | 2022年10月築 |
| 建物構造 | 木造2階建 |
| 現況 | 居住中 |
| 駐車場 | 有 |
| 土地権利 | 所有権 |
| 地目 | 宅地 |
| 接道状況 | 西側: 約 6.1m (公道) |
| 建ぺい率 | 80% |
| 容積率 | 200% |
| 用途地域 | 近隣商業地域 |
| 都市計画 | 市街化区域 |
| 備考 | - |
| 引渡時期 | 相談 |
| 取引態様 | 仲介 |
| 更新日 | 2026年04月12日 |
| 次回更新予定 | 2026年04月26日 |
| 物件番号 | FA7ASA01 |
最新のAI技術を活用した相談サービスです。
お客様一人ひとりのニーズに合わせて最適な情報をご提供します。
リハウスAIチャットの詳しい説明はこちら
GoogleMaps
| スーパー | ヤマナカ追進店 約800m(徒歩10分) |
| スーパー | バロー勝川店 約1830m(徒歩23分) |
| 公園 | 西浦公園 約240m(徒歩3分) |
| 病院 | 横井内科クリニック 約450m(徒歩6分) |
| 小学校 | 山王小学校 約1180m(徒歩15分) |
| 中学校 | 知多中学校 約1450m(徒歩19分) |
| その他利便施設1 | ファミリーマート春日井追進町店 約620m(徒歩8分) |
| その他利便施設2 | サンドラッグ勝川店 約1780m(徒歩23分) |
0120-56-1531
0120-56-1531
物件の売却をご検討の方は、 はやめの査定依頼がおすすめです!
買い替えをご検討の方はこちら0120-56-1531

