札幌市中央区南十六条西12丁目
札幌市営南北線 幌平橋駅 徒歩16分
3LDK
建物面積:154.92㎡
土地面積:171.23㎡
1996年04月築
4,680万円



| 物件種別 | 中古戸建 |
| 所在地 | GoogleMaps |
| 交通 | |
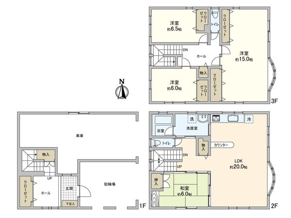
| 間取り | 4LDK |
| 建物面積 | 200.42㎡(約60.62坪) |
| 土地面積 | 118.69㎡(約35.9坪) |
| 築年月 | 2005年06月築 |
-物件のおすすめポイント- ▼立地 ○ 地下鉄南北線「幌平橋」駅 徒歩13分 ○ 札幌市電「静修学園前」駅 徒歩7分 ○ 近隣にスーパーやコンビニなどの商業施設が多数あります。 ○ 山鼻小学校(約370m)や山鼻公園(約220m)が徒歩5分圏内にあり子育てにも良い環境です。 ▼物件の特徴 ○ 平成17年6月築、木・鉄筋コンクリート造3階建て ○ LDK約20.0帖の4LDK ○ 和室有り ○ 玄関、全居室に収納有り ○ 全室6.0帖以上のゆとりある間取 ○ 主寝室は広々約15.0帖 ○ シャッター付き車庫に1台、建物前面に2台駐車可能(車種による制限有り) ○ 前面道路都市ガス配管有り(別途引き込み費用がかかります) ■ ご希望の住まい探しをお手伝いします ━━━━━・・・ 物件の詳細・ご相談はお気軽にお問い合わせください。
| 所在地 | GoogleMaps |
| 価格 | 4,680万円 |
| 交通 | |
| その他費用 | - |
| 間取り | 4LDK |
| 建物面積 | 200.42㎡(約60.62坪) |
| 土地面積 | 118.69㎡(約35.9坪) |
| 築年月 | 2005年06月築 |
| 建物構造 | その他3階建 |
| 現況 | 居住中 |
| 駐車場 | 有 |
| 土地権利 | 所有権 |
| 地目 | 宅地 |
| 接道状況 | 東側: 約 10.9m (公道) |
| 建ぺい率 | 60% |
| 容積率 | 200% |
| 用途地域 | 第一種住居地域 |
| 都市計画 | 市街化区域 |
| 備考 | 建物面積に車庫面積(31.36平米)と駐輪場面積(16.56平米)を含みます。 |
| 引渡時期 | 相談 |
| 取引態様 | 仲介 |
| 更新日 | 2026年05月21日 |
| 次回更新予定 | 2026年06月04日 |
| 物件番号 | FC1AUA0E |
最新のAI技術を活用した相談サービスです。
お客様一人ひとりのニーズに合わせて最適な情報をご提供します。
リハウスAIチャットの詳しい説明はこちら
GoogleMaps
| スーパー | ラルズマート16条店 約350m(徒歩5分) |
| 公園 | 山鼻公園 約220m(徒歩3分) |
| 病院 | くれないクリニック内科リハビリテーション科 約280m(徒歩4分) |
| 小学校 | 山鼻小学校 約370m(徒歩5分) |
| 中学校 | 柏中学校 約1340m(徒歩17分) |
| その他利便施設1 | ツルハドラッグ南16条店 約270m(徒歩4分) |
| その他利便施設2 | ローソン札幌南17条西店 約300m(徒歩4分) |
| その他利便施設3 | 山鼻東屯田通郵便局 約450m(徒歩6分) |
三井不動産リアルティ札幌株式会社
北海道知事石狩(8)第5813号
0120-312-440
0120-312-440
物件の売却をご検討の方は、 はやめの査定依頼がおすすめです!
買い替えをご検討の方はこちら0120-312-440

