札幌市白石区平和通6丁目南
函館本線 白石駅 徒歩12分
4SLDK
建物面積:235.9㎡
土地面積:262.29㎡
1987年06月築
3,680万円



| 物件種別 | 中古戸建 |
| 所在地 | GoogleMaps |
| 交通 | 札幌市営東西線 菊水駅 バス11分 JR北海道バス 菊水元町2条2丁目 停歩3分 |
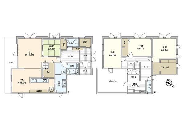
| 間取り | 4LDK |
| 建物面積 | 145.73㎡(約44.08坪) |
| 土地面積 | 244.24㎡(約73.88坪) |
| 築年月 | 2012年11月築 |
-物件のおすすめポイント- ▼立地 ・地下鉄東西線「菊水」駅 バス乗車11分 JR北海道バス「菊水元町2条2丁目」停 徒歩3分 ▼建物の特徴 ・平成24年11月築 ・土地:約244.24平米(約73.8坪) ・建物面積:約145.73平米(約44.0坪) ・北西側 公道幅員約12.0m、約10.5m接道 南西側 公道幅員約10.0m、約17.2m接道 ・ホーム企画センター旧施工の注文住宅 ・南西側、北東側の角地のため日当たり良好 ・南側にガーデニングスペース有 ・タイル仕上げのテラス有 ・2階には約10帖大のバルコニー付 ・2台分の駐車スペース有(車種による) ▼お部屋の特徴 ・4LDK ・広々約24.2帖のLDK ・1階部分天井高約2,600mm ・主寝室にウォークインクローゼット ・対面式システムキッチン ・造付食器棚有 ・ガスコンロ ・上下階にトイレ有 ・和室 ・書斎スペース ・玄関横に納戸
| 所在地 | GoogleMaps |
| 価格 | 3,680万円 |
| 交通 | 札幌市営東西線 菊水駅 バス11分 JR北海道バス 菊水元町2条2丁目 停歩3分 |
| その他費用 | - |
| 間取り | 4LDK |
| 建物面積 | 145.73㎡(約44.08坪) |
| 土地面積 | 244.24㎡(約73.88坪) |
| 築年月 | 2012年11月築 |
| 建物構造 | 木造2階建 |
| 現況 | 居住中 |
| 駐車場 | 有 |
| 土地権利 | 所有権 |
| 地目 | 宅地 |
| 接道状況 | 北西側: 約 12m (公道)、南西側: 約 10m (公道) |
| 建ぺい率 | 60% |
| 容積率 | 200% |
| 用途地域 | 第二種中高層住居専用地域 |
| 都市計画 | 市街化区域 |
| 備考 | 33m高度地区、建築基準法第22条区域、日影規制区域、景観計画区域、居住系市街地 |
| 引渡時期 | 相談 |
| 取引態様 | 仲介 |
| 更新日 | 2026年04月05日 |
| 次回更新予定 | 2026年04月19日 |
| 物件番号 | FC2ASA06 |
最新のAI技術を活用した相談サービスです。
お客様一人ひとりのニーズに合わせて最適な情報をご提供します。
リハウスAIチャットの詳しい説明はこちら
GoogleMaps
| スーパー | ラッキー菊水元町店 約370m(徒歩5分) |
| 公園 | 菊水元町しらかば公園 約130m(徒歩2分) |
| 病院 | 野村内科医院 約480m(徒歩6分) |
| 小学校 | 菊水小学校 約30m(徒歩1分) |
| 中学校 | 米里中学校 約1620m(徒歩21分) |
| その他利便施設1 | サンドラッグ菊水元町店 約190m(徒歩3分) |
| その他利便施設2 | ツルハドラッグ菊水元町店 約220m(徒歩3分) |
| その他利便施設3 | セブンイレブン札幌菊水元町2条店 約140m(徒歩2分) |
| その他利便施設4 | ファミリーマート札幌菊水元町2条店 約270m(徒歩4分) |
三井不動産リアルティ札幌株式会社
北海道知事石狩(8)第5813号
0120-074-131
0120-074-131
物件の売却をご検討の方は、 はやめの査定依頼がおすすめです!
買い替えをご検討の方はこちら0120-074-131

