札幌市白石区菊水元町五条2丁目
札幌市営東西線 菊水駅 バス15分 JR北海道バス 菊水元町5条 停歩3分
4LDK
建物面積:128.71㎡
土地面積:193.69㎡
2010年03月築
4,150万円



| 物件種別 | 中古戸建 |
| 所在地 | GoogleMaps |
| 交通 | 函館本線 白石駅 徒歩6分 |
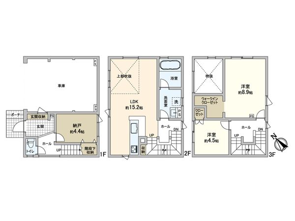
| 間取り | 2SLDK ※S・サービススペースは納戸です |
| 建物面積 | 113.01㎡(約34.18坪) |
| 土地面積 | 143.31㎡(約43.35坪) |
| 築年月 | 2018年07月築 |
返済計画を入力すると毎月のお支払い目安を表示できます
-物件のおすすめポイント- ▼立地 ・JR函館本線「白石」駅 徒歩6分 ▼建物の特徴 ・平成30年7月築 ・地上3階建て ・土地面積:143.31平米(約43.35坪) ・建物面積:113.01平米(約34.18坪) ・角地 ・北東側 公道幅員約15.0m、約10.8m接道 北西側 公道幅員約8.0m、約9.0m接道 ・屋外駐車スペース3台+車庫1台可能 ※車種によります ▼お部屋の特徴 ・2SLDK ・リビング上部吹抜有り ・屋上テラス有り ・車庫有り ・主寝室にウォークインクローゼット有り ・約4.4帖の納戸有り ・システムキッチン ・IHクッキングヒーター
| 所在地 | GoogleMaps |
| 価格 | 4,150万円 |
| 交通 | 函館本線 白石駅 徒歩6分 |
| その他費用 | - |
| 間取り | 2SLDK ※S・サービススペースは納戸です |
| 建物面積 | 113.01㎡(約34.18坪) |
| 土地面積 | 143.31㎡(約43.35坪) |
| 築年月 | 2018年07月築 |
| 建物構造 | 木造3階建 |
| 現況 | 居住中 |
| 駐車場 | - |
| 土地権利 | 所有権 |
| 地目 | 宅地 |
| 接道状況 | 北東側: 約 15m (公道)、北西側: 約 8m (公道) |
| 建ぺい率 | 60% |
| 容積率 | 200% |
| 用途地域 | 第一種住居地域 |
| 都市計画 | 市街化区域 |
| 備考 | 33m高度地区、建築基準法第22条区域、自動車ふくそう地区、日影規制、宅地造成等工事規制区域、景観計画区域、居住系市街地 |
| 引渡時期 | 相談 |
| 取引態様 | 仲介 |
| 更新日 | 2026年03月02日 |
| 次回更新予定 | 2026年03月16日 |
| 物件番号 | FC2ASA0D |
最新のAI技術を活用した相談サービスです。
お客様一人ひとりのニーズに合わせて最適な情報をご提供します。
リハウスAIチャットの詳しい説明はこちら
GoogleMaps
| スーパー | スーパーアークス白石店 約130m(徒歩2分) |
| 公園 | 白中公園 約150m(徒歩2分) |
| 病院 | いろは診療所 約240m(徒歩3分) |
| 小学校 | 白石小学校 約390m(徒歩5分) |
| 中学校 | 柏丘中学校 約1040m(徒歩13分) |
| その他利便施設1 | 白石駅(JR北海道 函館本線) 約420m(徒歩6分) |
| その他利便施設2 | ツルハドラッグ平和通店 約120m(徒歩2分) |
| その他利便施設3 | ファミリーマート札幌平和通4丁目店 約380m(徒歩5分) |
| その他利便施設4 | セブンイレブン札幌本通2丁目北店 約380m(徒歩5分) |
| その他利便施設5 | 白石本通北郵便局 約660m(徒歩9分) |
三井不動産リアルティ札幌株式会社
北海道知事石狩(8)第5813号
0120-074-131
0120-074-131
物件の売却をご検討の方は、 はやめの査定依頼がおすすめです!
買い替えをご検討の方はこちら0120-074-131

