西東京市栄町2丁目
西武池袋・豊島線 ひばりヶ丘駅 徒歩12分
3LDK
建物面積:86.53㎡
土地面積:107.83㎡
新築
6,480万円



| 物件種別 | 中古戸建 |
| 所在地 | GoogleMaps |
| 交通 | |
| 間取り | 4LDK |
| 建物面積 | 91.44㎡(約27.66坪) |
| 土地面積 | 118.65㎡(約35.89坪) |
| 築年月 | 2010年12月築 |
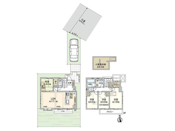
▼三井不動産旧分譲ファインコートシリーズ ・全59戸の邸宅が織りなす、美しい街並みの中に佇む邸宅です ・旧分譲地内ならではの調和のとれた住宅地内は、車どおりの少ない静かな環境です ・耐性にすぐれた2×4工法 ▼交通・アクセス ・西武池袋線「ひばりケ丘」駅徒歩14分 ・西武池袋線「保谷」駅徒歩18分 ※ 有楽町線、副都心線、東急東横線、みなとみらい線との直通電車あり ▼お部屋のおすすめポイント ・LDKは約17.1帖あり、ゆったりとした空間 ・オープンカウンターで南向きの明るいキッチン ・2部屋から出入りできるワイドバルコニーは陽当たり良好です ・ウォークインクローゼット、小屋裏収納、床下収納、畳下収納等収納豊富です ・床暖房(LD)、食器洗浄機、浴室乾燥機等、生活を豊かにする設備があります ・玄関に手洗い器が設置されているため感染症対策に役立ちます ・しっとりと落ち着いた雰囲気の和室を備えています ・南側のお庭は日光浴やガーデニングを楽しむのにおすすめです ・2023年12月塗装工事履歴あり(屋根・外壁・鉄部・木部・雨どい) ▼周辺環境 ・周辺は落ち着いた住宅街で静かな環境です ・南東側は西東京市健康広場のため陽当たり良好
| 所在地 | GoogleMaps |
| 価格 | 6,480万円 |
| 交通 | |
| その他費用 | - |
| 間取り | 4LDK |
| 建物面積 | 91.44㎡(約27.66坪) |
| 土地面積 | 118.65㎡(約35.89坪) |
| 築年月 | 2010年12月築 |
| 建物構造 | 木造2階建 |
| 現況 | 空家 |
| 駐車場 | 有 |
| 土地権利 | 所有権 |
| 地目 | 宅地 |
| 接道状況 | 北側: 約 6m (公道) |
| 建ぺい率 | 40% |
| 容積率 | 80% |
| 用途地域 | 第一種低層住居専用地域 |
| 都市計画 | 市街化区域 |
| 備考 | ※別途ゴミ置き場部分4.12平米のうち持分200分の10あり。 |
| 引渡時期 | 即時 |
| 取引態様 | 仲介 |
| 更新日 | 2026年04月16日 |
| 次回更新予定 | 2026年04月30日 |
| 物件番号 | FEPAUA09 |
最新のAI技術を活用した相談サービスです。
お客様一人ひとりのニーズに合わせて最適な情報をご提供します。
リハウスAIチャットの詳しい説明はこちら
GoogleMaps
| スーパー | マルエツ保谷住吉店 約950m(徒歩12分) |
| スーパー | ライフ新座店 約950m(徒歩12分) |
| 公園 | 中島公園 約80m(徒歩1分) |
| 病院 | 保谷厚生病院 約400m(徒歩5分) |
| 小学校 | 西東京市立栄小学校 約350m(徒歩5分) |
| 中学校 | 西東京市立青嵐中学校 約1000m(徒歩13分) |
| その他利便施設1 | ローソン西東京下保谷二丁目店 約450m(徒歩6分) |
| その他利便施設2 | ドラッグセイムス下保谷店 約600m(徒歩8分) |
| その他利便施設3 | クリエイトエス・ディー西東京住吉町店 約1000m(徒歩13分) |
三井不動産リアルティ株式会社
国土交通大臣(15)第777号
0120-40-6831
0120-40-6831
物件の売却をご検討の方は、 はやめの査定依頼がおすすめです!
買い替えをご検討の方はこちら0120-40-6831

