清瀬市中里3丁目
西武池袋・豊島線 清瀬駅 徒歩21分
4LDK
建物面積:93.98㎡
土地面積:119.91㎡
新築
4,680万円



| 物件種別 | 中古戸建 |
| 所在地 | GoogleMaps |
| 交通 | 西武池袋・豊島線 清瀬駅 徒歩10分 |
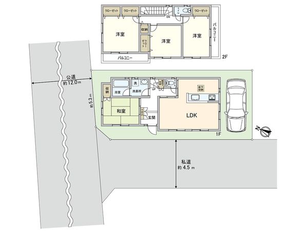
| 間取り | 4LDK |
| 建物面積 | 102.05㎡(約30.87坪) |
| 土地面積 | 100.03㎡(約30.25坪) |
| 築年月 | 2007年02月築 |
おすすめポイント━━━━━━━━━━━━━・・・・・ ▼街道沿いで、車での外出や通勤もスムーズな立地 ▼清瀬駅まで徒歩10分。買物をしながら帰れる便利な動線 ▼約30坪の角地がもたらす、明るさと広がり ▼私道の先は行き止まり。人や車の往来が少なく、プライベート感のある環境 ▼建物面積102.05平米、家族それぞれの居場所を確保できる4LDK ▼容積率200%を活かした、ゆとりある間取り設計 帰る場所、暮らす場所 「清瀬」エリア ━━━━━━━━━━━━━・・・・・ 清瀬駅周辺にはスーパーや飲食店が点在しており、仕事帰りや休日のお買い物・外食に便利な環境です。 コンビニも近く、急な買い物にも対応できます。 駅周辺には商業施設や商店街が広がり、少し足を延ばすと緑豊かな住宅街が広がる、暮らしやすいエリアです。
| 所在地 | GoogleMaps |
| 価格 | 4,680万円 |
| 交通 | 西武池袋・豊島線 清瀬駅 徒歩10分 |
| その他費用 | - |
| 間取り | 4LDK |
| 建物面積 | 102.05㎡(約30.87坪) |
| 土地面積 | 100.03㎡(約30.25坪) |
| 築年月 | 2007年02月築 |
| 建物構造 | 木造2階建 |
| 現況 | 居住中 |
| 駐車場 | 有 |
| 土地権利 | 所有権 |
| 地目 | 宅地 |
| 接道状況 | 北西側: 約 12m (公道)、南西側: 約 4.5m (私道) |
| 建ぺい率 | 60% |
| 容積率 | 200% |
| 用途地域 | 第二種中高層住居専用地域 |
| 都市計画 | 市街化区域 |
| 備考 | - |
| 引渡時期 | 相談 |
| 取引態様 | 仲介 |
| 更新日 | 2026年04月30日 |
| 次回更新予定 | 2026年05月14日 |
| 物件番号 | FEPBDA0D |
最新のAI技術を活用した相談サービスです。
お客様一人ひとりのニーズに合わせて最適な情報をご提供します。
リハウスAIチャットの詳しい説明はこちら
GoogleMaps
| スーパー | サカガミ清瀬店 約650m(徒歩9分) |
| スーパー | 西友清瀬店 約700m(徒歩9分) |
| 小学校 | 清瀬市立清瀬第十小学校 約650m(徒歩9分) |
| 中学校 | 清瀬市立清瀬第五中学校 約1300m(徒歩17分) |
| その他利便施設1 | ファミリーマート清瀬上清戸店 約180m(徒歩3分) |
| その他利便施設2 | セブンイレブン清瀬元町2丁目店 約450m(徒歩6分) |
| その他利便施設3 | ダイソー清瀬店 約550m(徒歩7分) |
三井不動産リアルティ株式会社
国土交通大臣(15)第777号
0120-40-6831
0120-40-6831
物件の売却をご検討の方は、 はやめの査定依頼がおすすめです!
買い替えをご検討の方はこちら0120-40-6831

