西野川3丁目 戸建
4,199万円



| 物件種別 | 中古戸建 |
| 所在地 | GoogleMaps |
| 交通 | |
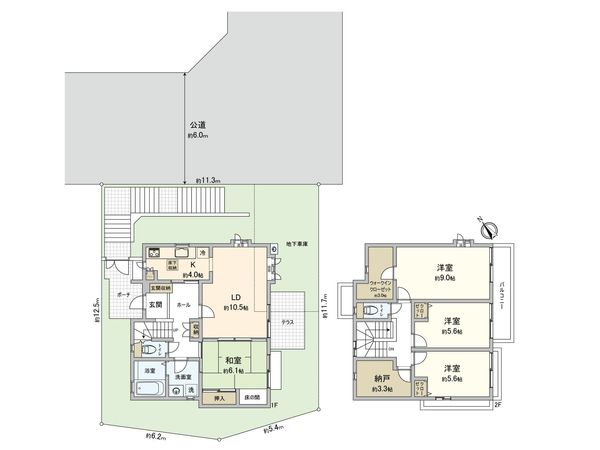
| 間取り | 4SLDK ※S・サービススペースは納戸です |
| 建物面積 | 112.58㎡(約34.05坪) |
| 土地面積 | 145㎡(約43.86坪) |
| 築年月 | 1998年08月築 |
この物件情報を共有する
予約制内覧会を開催します!
| 開催日 | 1月31日(土)11:00 ~ 16:00 2月1日(日)11:00 ~ 16:00 2月7日(土)11:00 ~ 16:00 2月8日(日)11:00 ~ 16:00 2月14日(土)11:00 ~ 16:00 |
|---|
毎月のお支払い目安
返済計画を入力すると毎月のお支払い目安を表示できます
- ローン118,532円
- 管理費+修繕積立金0円
- その他費用0円
おすすめポイント
設備
- TVモニタ付インターホン
特徴
- 前面道路幅員6m以上
■ アクセス ━━━━━━━━━━━━━━━・・・・・ ○ 東急田園都市線『鷺沼』駅 バス22分 「和田八幡宮下」停 歩7分 ○ 東急田園都市線『梶ヶ谷』駅 バス16分 「山下」停 歩17分 ○ 横浜市営ブルーライン『センター北』駅 バス14分 「美里橋前」停 歩11分 ■ 【西野川3丁目 戸建】━━━━━━━━━━━━━━━・・・・・ ○ 平成10年(1998年)8月築 ○ 軽量鉄骨造2階建て ○ 積水ハウスによる設計施工 ○ 第一種低層居住専用地域の落ち着いた住環境 ○ 土地面積:145平米 ○ 建物面積:112.58平米 ○ 4SLDK(S=納戸) ■ おすすめポイント ━━━━━━━━━━━━━━━・・・・・ ○ 地下車庫付きで雨に濡れる心配なし ※奥行:約5,600mm、幅:約3,200mm、高さ:1,860mm ※詳細は現地にてご確認ください。 ○ 各居室に収納スペース付き ○ キッチンには床下収納有り ○ 独立型キッチンは2WAY、家事・生活動線に配慮 ○ 敷地南東側にテラス+庭があり、明るいLDK ○ テラスではBBQなどお楽しみいただけます ○ 1階・2階にトイレ設置 ○ 眺望良好 ○ 窓があり、換気しやすく明るい浴室・洗面所 ○ ミストサウナ付きのユニットバス ○ 約9帖の洋室には約3帖のウォークインクローゼット ○ 来客時に便利なTVモニター付インターホン ○ 高速道路へのアクセスも良く利便性に優れます ・第三京浜道路 都筑インター 5.22km ・第三京浜道路 京浜川崎インター 5.20km ・東名自動車道 東名川崎インター 5.67km ■ リフォーム実施(令和7年9月完了)━━━━━━━━━━━━━━━・・・・・ 〇 ハウスクリーニング 〇 白蟻点検
リノベーション&リフォーム情報(予定含む)
全室クロス/壁紙貼り替え | 台所(キッチン)交換 |
バスルーム交換 | トイレ交換 |
洗面化粧台交換 | 床貼り替え |
給湯器交換 |
水回り(キッチン、浴室、トイレ、洗面所、給湯器)(2026年2月)
内装(全室クロス、床、畳表張替/障子張替/襖張替/網戸張替/ク)(2026年2月)
外装(玄関ドア)(2026年2月)
物件情報
| 所在地 | GoogleMaps |
| 価格 | 4,199万円 |
| 交通 | |
| その他費用 | - |
| 間取り | 4SLDK ※S・サービススペースは納戸です |
| 建物面積 | 112.58㎡(約34.05坪) |
| 土地面積 | 145㎡(約43.86坪) |
| 築年月 | 1998年08月築 |
| 建物構造 | 軽量鉄骨造2階建 |
| 現況 | 空家 |
| 駐車場 | - |
| 土地権利 | 所有権 |
| 地目 | 宅地 |
| 接道状況 | 南西側: 約 6.8m (公道)、北東側: 約 6m (公道) |
| 建ぺい率 | 40% |
| 容積率 | 80% |
| 用途地域 | 第一種低層住居専用地域 |
| 都市計画 | 市街化区域 |
| 備考 | - |
| 引渡時期 | 即時 |
| 取引態様 | 仲介 |
| 更新日 | 2026年01月22日 |
| 次回更新予定 | 2026年02月05日 |
| 物件番号 | FH3ASA0A |
この物件のことを
AIに聞いてみませんか?
最新のAI技術を活用した相談サービスです。
お客様一人ひとりのニーズに合わせて最適な情報をご提供します。
リハウスAIチャットの詳しい説明はこちら

周辺情報
GoogleMaps
| スーパー | ヨークマート川崎野川店 約880m(徒歩11分) |
| 公園 | 野川児童公園 約320m(徒歩4分) |
| 病院 | 風の道クリニック 約570m(徒歩8分) |
| 小学校 | 川崎市立野川小学校 約620m(徒歩8分) |
| 中学校 | 川崎市立野川中学校 約460m(徒歩6分) |
| その他利便施設1 | セブンイレブン川崎野川台店 約430m(徒歩6分) |
| その他利便施設2 | クリエイトエス・ディー川崎南野川店 約830m(徒歩11分) |
取扱店舗
- 営業時間
- 10:00~18:00
- 定休日
- 毎週火曜日・水曜日
- 住所
- 神奈川県川崎市宮前区鷺沼1-11-17STR73 1F・2F
三井不動産リアルティ株式会社
国土交通大臣(15)第777号
三井のリハウス 鷺沼センター
- 営業時間10:00~18:00
- 定休日毎週火曜日・水曜日
0120-313-780
あなたへのおすすめ
川崎市宮前区の物件情報
この物件を見学してみませんか?
この物件についてお問い合わせ
物件・住環境の詳しい情報、購入・ローン相談など、ささいなことでもお気軽にお問い合わせください。三井のリハウス 鷺沼センター
- 営業時間10:00~18:00
- 定休日毎週火曜日・水曜日
0120-313-780

物件の売却をご検討の方は、 はやめの査定依頼がおすすめです!
買い替えをご検討の方はこちら見学予約
お問い合わせ
0120-313-780
- 営業時間 10:00~18:00
- 定休日 毎週火曜日・水曜日









