相模原市中央区由野台1丁目
横浜線 淵野辺駅 徒歩15分
3LDK
建物面積:87.76㎡
土地面積:88.05㎡
2026年09月築(予定)
5,220万円



| 物件種別 | 中古戸建 |
| 所在地 | GoogleMaps |
| 交通 | 相模線 上溝駅 徒歩7分 |
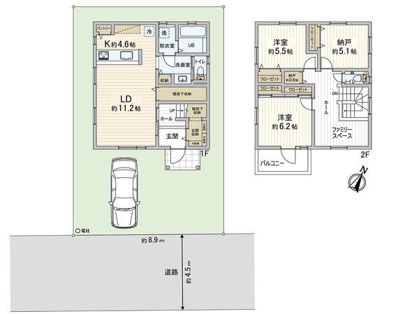
| 間取り | 2SLDK ※S・サービススペースは納戸です |
| 建物面積 | 98.38㎡(約29.75坪) |
| 土地面積 | 120.05㎡(約36.31坪) |
| 築年月 | 2022年06月築 |
■ 交通アクセス ━━━━━━━━━━━━━━━・・・・・ ○ 相模線「上溝」駅 徒歩7分 ■ おすすめポイント ━━━━━━━━━━━━━━・・・・・ 〇 スウェーデンハウス施工の注文住宅(令和4年6月築) 〇 高気密・高断熱住宅、木製サッシ3層ガラス窓を標準装備 ○ 多目的に使用できるファミリースペースあり ○ パントリーも備えた対面式システムキッチン 〇 玄関収納、階段下収納、クローゼット3か所と収納豊富 〇 24時間熱交換型換気システム 〇 優れた耐震性能 〇 火災に強い防火性能 〇 南東側約4.5m公道のため陽当り良好 〇 駐車スペースあり(車種による) ○ 2026年2月ハウスクリーニング実施
| 所在地 | GoogleMaps |
| 価格 | 5,220万円 |
| 交通 | 相模線 上溝駅 徒歩7分 |
| その他費用 | - |
| 間取り | 2SLDK ※S・サービススペースは納戸です |
| 建物面積 | 98.38㎡(約29.75坪) |
| 土地面積 | 120.05㎡(約36.31坪) |
| 築年月 | 2022年06月築 |
| 建物構造 | 木造2階建 |
| 現況 | 空家 |
| 駐車場 | - |
| 土地権利 | 所有権 |
| 地目 | 宅地 |
| 接道状況 | 南東側: 約 4.5m (公道) |
| 建ぺい率 | 60% |
| 容積率 | 200% |
| 用途地域 | 第一種住居地域 |
| 都市計画 | 市街化区域 |
| 備考 | - |
| 引渡時期 | 相談 |
| 取引態様 | 仲介 |
| 更新日 | 2026年05月02日 |
| 次回更新予定 | 2026年05月16日 |
| 物件番号 | FK5BBA04 |
最新のAI技術を活用した相談サービスです。
お客様一人ひとりのニーズに合わせて最適な情報をご提供します。
リハウスAIチャットの詳しい説明はこちら
GoogleMaps
| スーパー | ダイエー上溝店 約400m(徒歩5分) |
| 小学校 | 相模原市立上溝小学校 約650m(徒歩9分) |
| 中学校 | 相模原市立上溝中学校 約700m(徒歩9分) |
| その他利便施設1 | 上溝駅(JR東日本 相模線) 約560m(徒歩7分) |
| その他利便施設2 | クリエイトエス・ディー相模原上溝店 約650m(徒歩9分) |
| その他利便施設3 | セブンイレブン相模原上溝6丁目店 約550m(徒歩7分) |
| その他利便施設4 | 上溝郵便局 約300m(徒歩4分) |
三井不動産リアルティ株式会社
国土交通大臣(15)第777号
0120-77-4131
0120-77-4131
物件の売却をご検討の方は、 はやめの査定依頼がおすすめです!
買い替えをご検討の方はこちら0120-77-4131

