世田谷区弦巻3丁目
東急田園都市線 桜新町駅 徒歩12分
3SLDK
建物面積:175.72㎡
土地面積:96.32㎡
2026年06月築(予定)
23,500万円



| 物件種別 | 中古戸建 |
| 所在地 | GoogleMaps |
| 交通 | |
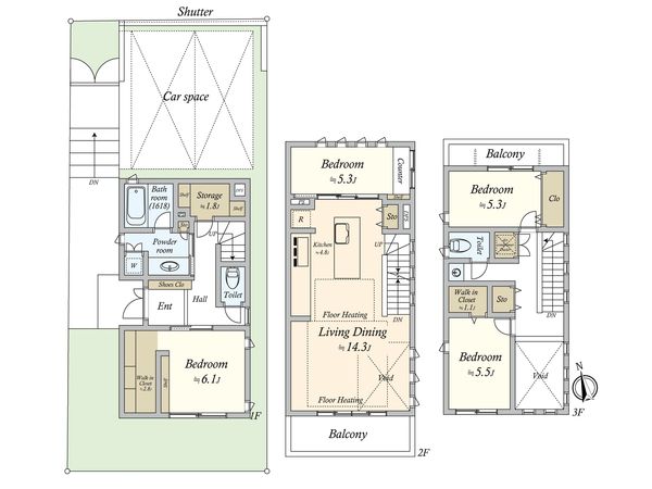
| 間取り | 4SLDK ※S・サービススペースは納戸です |
| 建物面積 | 119.41㎡(約36.12坪) |
| 土地面積 | 119.9㎡(約36.26坪) |
| 築年月 | 2019年05月築 |
返済計画を入力すると毎月のお支払い目安を表示できます
■アクセス 〇 東急田園都市線・東急大井町線「二子玉川」駅 徒歩12分 〇 東急大井町線「上野毛」駅 徒歩11分 〇 2路線・2駅利用可能 ■おすすめポイント 〇 世田谷・瀬田1丁目、高台の閑静な邸宅街 〇 建物面積119.41平米(約36.12坪)、4SLDK 〇 令和元年5月築 〇 パナソニックホームズ(株)施工の注文邸宅 〇 外壁には光触媒タイル「キラテック」を採用 〇 機能性とデザイン性を兼ね備えたアイランドキッチン 〇 吹き抜けのある明るいリビングダイニング 〇 床暖房あり(LD・K部分) 〇 浴室換気乾燥機付きバスルーム(1618タイプ) 〇 家庭用燃料電池「エネファーム」を採用 〇 全居室二面採光 〇 全室快適・全館空調システム「エアロハス」を採用 〇 ウォークインクローゼット2箇所、約1.8帖の納戸、 階段下収納等、豊富な収納スペース 〇 トイレは2箇所にございます 〇 南向きバルコニー 〇 カースペースは並列で2台駐車可能(車種制限あり)
| 所在地 | GoogleMaps |
| 価格 | 23,500万円 |
| 交通 | |
| その他費用 | - |
| 間取り | 4SLDK ※S・サービススペースは納戸です |
| 建物面積 | 119.41㎡(約36.12坪) |
| 土地面積 | 119.9㎡(約36.26坪) |
| 築年月 | 2019年05月築 |
| 建物構造 | 軽量鉄骨造3階建 |
| 現況 | 居住中 |
| 駐車場 | 有 |
| 土地権利 | 所有権 |
| 地目 | 宅地 |
| 接道状況 | 北側: 約 6m (公道) |
| 建ぺい率 | 50% |
| 容積率 | 100% |
| 用途地域 | 第一種低層住居専用地域 |
| 都市計画 | 市街化区域 |
| 備考 | ※第二種風致地区、風景づくり重点地区(水と緑の風景軸)、埋蔵文化財包蔵地(瀬田遺跡・瀬田城遺跡) |
| 引渡時期 | 2026年03月下旬以降 |
| 取引態様 | 仲介 |
| 更新日 | 2025年12月01日 |
| 次回更新予定 | 2025年12月15日 |
| 物件番号 | FLAAUA09 |
最新のAI技術を活用した相談サービスです。
お客様一人ひとりのニーズに合わせて最適な情報をご提供します。
リハウスAIチャットの詳しい説明はこちら
GoogleMaps
| スーパー | まいばすけっと瀬田2丁目店 約600m(徒歩8分) |
| 公園 | 瀬田2丁目公園 約170m(徒歩3分) |
| 病院 | 幡野内科クリニック 約410m(徒歩6分) |
| 小学校 | 世田谷区立瀬田小学校 約330m(徒歩5分) |
| 中学校 | 世田谷区立瀬田中学校 約220m(徒歩3分) |
| その他利便施設1 | ローソン瀬田店 約400m(徒歩5分) |
| その他利便施設2 | 世田谷上野毛郵便局 約530m(徒歩7分) |
| その他利便施設3 | 玉川高島屋 約900m(徒歩12分) |
三井不動産リアルティ株式会社
国土交通大臣(15)第777号
0120-959-231
0120-959-231
物件の売却をご検討の方は、 はやめの査定依頼がおすすめです!
買い替えをご検討の方はこちら0120-959-231

