川口市大字伊刈
京浜東北・根岸線 蕨駅 バス8分 宮根 停歩9分
4LDK
建物面積:97.7㎡
土地面積:120.04㎡
2013年09月築
3,380万円



| 物件種別 | 中古戸建 |
| 所在地 | GoogleMaps |
| 交通 | |
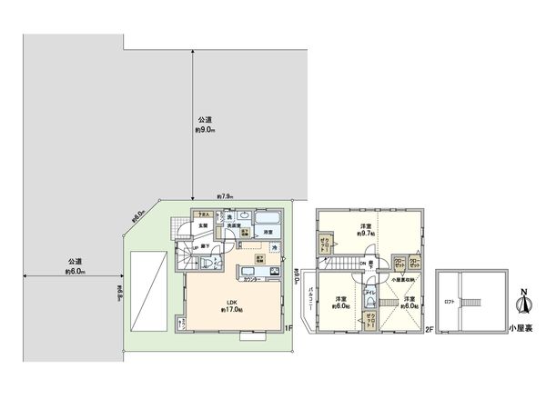
| 間取り | 3LDK |
| 建物面積 | 89.84㎡(約27.17坪) |
| 土地面積 | 88.39㎡(約26.73坪) |
| 築年月 | 2019年07月築 |
-物件のおすすめポイント- ▼建物の特徴 ・令和元年7月築 ・車1台駐車可能(車種制限有) ・北、西角地につき通風良好 ▼お部屋の特徴 ・ゆとりあるリビング約17帖 ・1か所に水まわりを集中させ、生活に配慮した間取り ・収納に便利な小屋裏収納付 ▼設備 ・家族との会話が弾む対面式キッチン ・浄水器・食洗機付のシステムキッチン ・追い焚き機能が付いたユニットバス ・雨の日の洗濯にも便利な浴室換気乾燥機付 ・トイレには快適な温水洗浄便座付 ・床下収納庫あり ・来客時に便利なTVモニター付インターホン ■ ご希望の住まい探しをお手伝いします ━━━━━・・・ 物件の詳細・ご相談はお気軽にお問い合わせください。
| 所在地 | GoogleMaps |
| 価格 | 3,380万円 |
| 交通 | |
| その他費用 | - |
| 間取り | 3LDK |
| 建物面積 | 89.84㎡(約27.17坪) |
| 土地面積 | 88.39㎡(約26.73坪) |
| 築年月 | 2019年07月築 |
| 建物構造 | 木造2階建 |
| 現況 | 居住中 |
| 駐車場 | 有 |
| 土地権利 | 所有権 |
| 地目 | 宅地 |
| 接道状況 | 北側: 約 9m (公道)、西側: 約 6m (公道) |
| 建ぺい率 | 60% |
| 容積率 | 200% |
| 用途地域 | 第二種住居地域 |
| 都市計画 | 市街化区域 |
| 備考 | ※芝東第4土地区画整理事業 |
| 引渡時期 | 相談 |
| 取引態様 | 仲介 |
| 更新日 | 2026年05月15日 |
| 次回更新予定 | 2026年05月29日 |
| 物件番号 | FLEASA02 |
最新のAI技術を活用した相談サービスです。
お客様一人ひとりのニーズに合わせて最適な情報をご提供します。
リハウスAIチャットの詳しい説明はこちら
GoogleMaps
| スーパー | Big-A川口伊刈店 約680m(徒歩9分) |
| スーパー | スーパーバリュー川口伊刈店 約500m(徒歩7分) |
| 公園 | 野島児童公園 約160m(徒歩2分) |
| 小学校 | 芝中央小学校 約1030m(徒歩13分) |
| 中学校 | 芝東中学校 約920m(徒歩12分) |
| その他利便施設1 | 川口北郵便局 約130m(徒歩2分) |
| その他利便施設2 | セブンイレブン川口伊刈店 約410m(徒歩6分) |
| その他利便施設3 | デイリーケアセイジョー浦和円正寺店 約620m(徒歩8分) |
| その他利便施設4 | ファミリーマート川口柳崎店 約670m(徒歩9分) |
| その他利便施設5 | 島忠ホームズ川口店 約900m(徒歩12分) |
0120-959-531
0120-959-531
物件の売却をご検討の方は、 はやめの査定依頼がおすすめです!
買い替えをご検討の方はこちら0120-959-531

