川口市前川3丁目
京浜東北・根岸線 西川口駅 バス15分 前川通り 停歩2分
6LDK
建物面積:165.25㎡
土地面積:95.19㎡
1997年07月築
2,780万円



| 物件種別 | 中古戸建 |
| 所在地 | GoogleMaps |
| 交通 | 京浜東北・根岸線 南浦和駅 徒歩21分 |
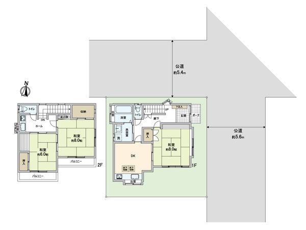
| 間取り | 3DK |
| 建物面積 | 89.77㎡(約27.15坪) |
| 土地面積 | 83.02㎡(約25.11坪) |
| 築年月 | 1995年08月築 |
返済計画を入力すると毎月のお支払い目安を表示できます
-物件のおすすめポイント- ▼立地 ・JR京浜東北・根岸線 南浦和駅 徒歩21分 ・東・北の角地につき陽当り・通風良好 ▼お部屋の特徴 ・平成7年築の2階建て3DK ・LDKと一体利用可能な和室 ・全居室6帖以上 ▼設備 ・雨の日でも洗濯物が乾く浴室換気乾燥機 ・来客時に便利なTVモニター付インターホン ・追い焚き機能付きユニットバス ■ ご希望の住まい探しをお手伝いします ━━━━━・・・ 物件の詳細・ご相談はお気軽にお問い合わせください。
| 所在地 | GoogleMaps |
| 価格 | 2,780万円 |
| 交通 | 京浜東北・根岸線 南浦和駅 徒歩21分 |
| その他費用 | - |
| 間取り | 3DK |
| 建物面積 | 89.77㎡(約27.15坪) |
| 土地面積 | 83.02㎡(約25.11坪) |
| 築年月 | 1995年08月築 |
| 建物構造 | 木造2階建 |
| 現況 | 空家 |
| 駐車場 | 有 |
| 土地権利 | 所有権 |
| 地目 | 宅地 |
| 接道状況 | 東側: 約 5.6m (公道)、北側: 約 5.4m (公道) |
| 建ぺい率 | 60% |
| 容積率 | 200% |
| 用途地域 | 第一種住居地域 |
| 都市計画 | 市街化区域 |
| 備考 | ※川口都市計画事業芝東第3土地区画整理事業地内 ※前面東側道路に本下水管が入っています。接続する際には別途工事費用等がかかります。 |
| 引渡時期 | 即時 |
| 取引態様 | 仲介 |
| 更新日 | 2026年02月26日 |
| 次回更新予定 | 2026年03月12日 |
| 物件番号 | FLEBBA0A |
最新のAI技術を活用した相談サービスです。
お客様一人ひとりのニーズに合わせて最適な情報をご提供します。
リハウスAIチャットの詳しい説明はこちら
GoogleMaps
| スーパー | マルエツ芝塚原店 約775m(徒歩10分) |
| 公園 | 芝後谷第2公園 約345m(徒歩5分) |
| 公園 | 小谷場公園 約440m(徒歩6分) |
| 小学校 | 芝西小学校 約540m(徒歩7分) |
| 中学校 | 小谷場中学校 約650m(徒歩9分) |
| その他利便施設1 | 川口小谷場郵便局 約345m(徒歩5分) |
| その他利便施設2 | セブンイレブン川口芝小谷場店 約485m(徒歩7分) |
| その他利便施設3 | 島忠ホームズ川口店 約545m(徒歩7分) |
| その他利便施設4 | セイジョー芝塚原店 約730m(徒歩10分) |
0120-959-531
0120-959-531
物件の売却をご検討の方は、 はやめの査定依頼がおすすめです!
買い替えをご検討の方はこちら0120-959-531

