横浜市鶴見区矢向3丁目
南武線 矢向駅 徒歩4分
2SLDK
建物面積:104.33㎡
土地面積:82.43㎡
2014年08月築
4,980万円



| 物件種別 | 中古戸建 |
| 所在地 | GoogleMaps |
| 交通 | |
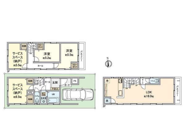
| 間取り | 2SLDK ※S・サービススペースは納戸です |
| 建物面積 | 97.69㎡(約29.55坪) |
| 土地面積 | 60.1㎡(約18.18坪) |
| 築年月 | 2012年03月築 |
■ アクセス━━━━━━・・・・・ ○ JR南武線「矢向」駅 徒歩6分 ○ JR横須賀線・湘南新宿ライン「新川崎」駅 徒歩20分 ○ JR南武線「鹿島田」駅 徒歩21分 ○ 3駅3路線利用可能 ■ おすすめポイント━━━━━━・・・・・ ○ 南側が空地のため日当たり良好 ○ 建物面積97.69平米 土地面積60.10平米 ○ 3階建て 2LDK+2S(4LDK同等の利用が可能) ○ 駐車スペース有(車種による) ○ 広々としたリビング約18帖 ○ 家族との会話が弾む対面式キッチン ○ 各居室の収納をはじめ豊富な収納スペース ○ トイレ2箇所設置 ○ 窓付の明るい浴室 ○ 前面道路は通り抜けができないため、交通量も少なく安心です ○ 新築分譲時に多棟分譲のため、綺麗な景観です
| 所在地 | GoogleMaps |
| 価格 | 4,980万円 |
| 交通 | |
| その他費用 | - |
| 間取り | 2SLDK ※S・サービススペースは納戸です |
| 建物面積 | 97.69㎡(約29.55坪) |
| 土地面積 | 60.1㎡(約18.18坪) |
| 築年月 | 2012年03月築 |
| 建物構造 | 木造3階建 |
| 現況 | 居住中 |
| 駐車場 | 有 |
| 土地権利 | 所有権 |
| 地目 | 宅地 |
| 接道状況 | 東側: 約 4m (公道) |
| 建ぺい率 | 60% |
| 容積率 | 200% |
| 用途地域 | 工業地域 |
| 都市計画 | 市街化区域 |
| 備考 | - |
| 引渡時期 | 2026年07月上旬以降 |
| 取引態様 | 仲介 |
| 更新日 | 2026年04月18日 |
| 次回更新予定 | 2026年05月02日 |
| 物件番号 | FR3BAA09 |
最新のAI技術を活用した相談サービスです。
お客様一人ひとりのニーズに合わせて最適な情報をご提供します。
リハウスAIチャットの詳しい説明はこちら
GoogleMaps
| スーパー | 食品館あおば矢向駅前店 約500m(徒歩7分) |
| スーパー | まいばすけっと矢向駅西店 約280m(徒歩4分) |
| スーパー | サミットストア新川崎店 約650m(徒歩9分) |
| 小学校 | 横浜市立矢向小学校 約750m(徒歩10分) |
| 中学校 | 横浜市立矢向中学校 約1400m(徒歩18分) |
| その他利便施設1 | セブンイレブン横浜矢向6丁目店 約250m(徒歩4分) |
| その他利便施設2 | 横浜矢向郵便局 約300m(徒歩4分) |
| その他利便施設3 | 島忠ホームズ新川崎店 約650m(徒歩9分) |
0120-313-770
0120-313-770
物件の売却をご検討の方は、 はやめの査定依頼がおすすめです!
買い替えをご検討の方はこちら0120-313-770

