札幌市中央区宮の森四条3丁目
札幌市営東西線 西28丁目駅 徒歩12分
4LDK
建物面積:145.16㎡
土地面積:187.86㎡
2018年02月築
12,000万円



| 物件種別 | 中古戸建 |
| 所在地 | GoogleMaps |
| 交通 | 札幌市営東西線 円山公園駅 バス15分 JR北海道バス 円山西町3丁目 停歩2分 |
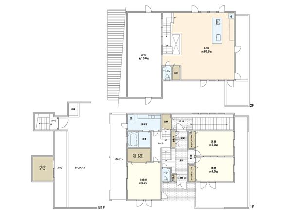
| 間取り | 3LDK |
| 建物面積 | 155.08㎡(約46.91坪) |
| 土地面積 | 603.16㎡(約182.45坪) |
| 築年月 | 2019年03月築 |
■ 大型犬と快適に暮らせる特別設計の住まい・・・ 〇 愛犬専用通路付き、ペットファーストな住まい ○ 地下鉄東西線「円山公園」駅 バス乗車15分 JR北海道バス「円山西町3丁目」停 徒歩2分 ○ 2019年3月築の木鉄筋コンクリート造地下1階付2階建 ○ 土地面積 603.16平米(約182.45坪) ○ 建物面積 1階89.83平米/2階54.63平米/地下1階10.62平米 計155.08平米(約46.91坪) 〇 閑静な住宅街に佇む邸宅 ○ 3LDK ○ 大きな窓からたっぷりと自然光が差し込む、明るいリビングダイニング ○ 光が降り注ぐ、心地よい吹き抜け ○ リビングダイニングに階段あり ○ 開放感のある対面式キッチン ○ IHクッキングヒーター ○ 食器洗浄乾燥機あり ○ 使い方自由、空間が広がるロフトあり ○ 浴室に窓あり ○ 風と緑に癒される、心地よいテラスあり ○ 趣味に合わせて利用可能な家庭菜園スペース有 ○ 出入り自由な犬専用通路有のためペットとの暮らしを実現 ○ 駐車3台可能(車種による)
| 所在地 | GoogleMaps |
| 価格 | 12,000万円 |
| 交通 | 札幌市営東西線 円山公園駅 バス15分 JR北海道バス 円山西町3丁目 停歩2分 |
| その他費用 | 町内会費 200円 / 月 |
| 間取り | 3LDK |
| 建物面積 | 155.08㎡(約46.91坪) |
| 土地面積 | 603.16㎡(約182.45坪) |
| 築年月 | 2019年03月築 |
| 建物構造 | 木造2階 地下1階建 |
| 現況 | 居住中 |
| 駐車場 | 有 |
| 土地権利 | 所有権 |
| 地目 | 宅地 |
| 接道状況 | 東側: 約 8m (公道) |
| 建ぺい率 | 40% |
| 容積率 | 80% |
| 用途地域 | 第一種低層住居専用地域 |
| 都市計画 | 市街化区域 |
| 備考 | 北側斜線高度地区、建築基準法第22条区域、戸建住環境保全地区、第二種北海道神宮風致地区 |
| 引渡時期 | 相談 |
| 取引態様 | 仲介 |
| 更新日 | 2026年05月28日 |
| 次回更新予定 | 2026年06月11日 |
| 物件番号 | FSCASA05 |
最新のAI技術を活用した相談サービスです。
お客様一人ひとりのニーズに合わせて最適な情報をご提供します。
リハウスAIチャットの詳しい説明はこちら
GoogleMaps
| スーパー | イオン札幌旭ヶ丘店 約1830m(徒歩23分) |
| 公園 | 西円山どんぐり公園 約140m(徒歩2分) |
| 病院 | 医療法人渓仁会札幌西円山病院 約650m(徒歩9分) |
| 小学校 | 札幌市立大倉山小学校 約1580m(徒歩20分) |
| 中学校 | 札幌市立宮の森中学校 約1470m(徒歩19分) |
| その他利便施設1 | ツルハドラッグ旭ヶ丘8条店 約1910m(徒歩24分) |
| その他利便施設2 | セイコーマート円山西町店 約630m(徒歩8分) |
| その他利便施設3 | 円山西町簡易郵便局 約290m(徒歩4分) |
| その他利便施設4 | 北洋銀行旭ケ丘支店 約1980m(徒歩25分) |
三井不動産リアルティ札幌株式会社
北海道知事石狩(8)第5813号
0120-321-886
0120-321-886
物件の売却をご検討の方は、 はやめの査定依頼がおすすめです!
買い替えをご検討の方はこちら0120-321-886

