横浜市磯子区洋光台2丁目
京浜東北・根岸線 洋光台駅 徒歩12分
4LDK
建物面積:114.52㎡
土地面積:169.61㎡
2026年05月築(予定)
9,980万円



| 物件種別 | 中古戸建 |
| 所在地 | GoogleMaps |
| 交通 | 京浜東北・根岸線 磯子駅 徒歩19分 |
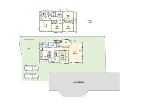
| 間取り | 5SLDK ※S・サービススペースは納戸です |
| 建物面積 | 158.35㎡(約47.9坪) |
| 土地面積 | 330.63㎡(約100.01坪) |
| 築年月 | 2012年03月築 |
予約制内覧会を開催します!
| 開催日 | 4月25日(土)11:00 ~ 16:00 4月26日(日)11:00 ~ 16:00 5月2日(土)11:00 ~ 16:00 5月3日(日)11:00 ~ 16:00 5月9日(土)11:00 ~ 16:00 |
|---|
■ おすすめポイント ━━━━━━━━━━━━━━━・・・・・ ○ JR根岸線「磯子」駅徒歩9分 ○ ゆとりのある土地面積約330.63平米(約100坪) ○ 建物面積約158.35平米の5SLDK ○ 敷地と前面道路との高低差がほぼないフラットな平坦地 ○ 大型ガレージ付(ガレージ面積1階:23.18平米/2階部分:11.59平米)、別途駐車スペース2台分あり(車種による) ○ 約21帖の広々としたLDK ○ LDKから望める緑が美しいお庭 ○ LDKに隣接して約8帖の和室あり ○ 全居室6帖以上の使い勝手のよい間取り ○ ロフトや納戸、各所に収納充実 ○ 徒歩10分圏内にスーパー・コンビニ・病院など生活に便利な施設が揃い利便性良好 ■ 担当者より ━━━━━━━━━━━━━━━・・・・・ 周辺環境や施設のご案内はもちろん、周辺物件も併せてご紹介できます。 また、購入に際しての諸費用、住宅ローン(月々の返済例)等、 資金計画のご相談も承っておりますので、ご興味がございましたら下方にございます、 「お問合せ」又は「見学予約」よりお問合せ下さい。 お電話でのご相談も受付けておりますので、 フリーコール「0120-854-254」までお気軽にお問合せ下さいませ。 プライバシーに配慮した個室の接客スペース、 キッズコーナー・おむつ替えスペースもご用意しております。 小さなお子様をお連れしてのご来店も歓迎です。 お車でお越しの際はミオカの駐車場をご利用ください。 駐車場サービス券をお渡ししております。 ご来店お待ちしております。
| 所在地 | GoogleMaps |
| 価格 | 9,980万円 |
| 交通 | 京浜東北・根岸線 磯子駅 徒歩19分 |
| その他費用 | - |
| 間取り | 5SLDK ※S・サービススペースは納戸です |
| 建物面積 | 158.35㎡(約47.9坪) |
| 土地面積 | 330.63㎡(約100.01坪) |
| 築年月 | 2012年03月築 |
| 建物構造 | 木造2階建 |
| 現況 | 空家 |
| 駐車場 | - |
| 土地権利 | 所有権 |
| 地目 | 宅地 |
| 接道状況 | - |
| 建ぺい率 | 60% |
| 容積率 | 200% |
| 用途地域 | 第一種住居地域 |
| 都市計画 | 市街化区域 |
| 備考 | - |
| 引渡時期 | 相談 |
| 取引態様 | 仲介 |
| 更新日 | 2026年04月18日 |
| 次回更新予定 | 2026年05月02日 |
| 物件番号 | FSPBGAA8 |
最新のAI技術を活用した相談サービスです。
お客様一人ひとりのニーズに合わせて最適な情報をご提供します。
リハウスAIチャットの詳しい説明はこちら
GoogleMaps
| スーパー | まいばすけっと磯子2丁目店 約500m(徒歩7分) |
| スーパー | そうてつローゼン磯子店 約800m(徒歩10分) |
| 公園 | 芦名橋公園 約280m(徒歩4分) |
| 病院 | 磯子中央病院 約550m(徒歩7分) |
| 小学校 | 横浜市立磯子小学校 約550m(徒歩7分) |
| 中学校 | 横浜市立岡村中学校 約1100m(徒歩14分) |
| その他利便施設1 | ローソン磯子2丁目店 約280m(徒歩4分) |
| その他利便施設2 | 浜マーケット 約300m(徒歩4分) |
| その他利便施設3 | ローソン磯子久木町店 約400m(徒歩5分) |
| その他利便施設4 | マリコム磯子 約700m(徒歩9分) |
0120-854-254
0120-854-254
物件の売却をご検討の方は、 はやめの査定依頼がおすすめです!
買い替えをご検討の方はこちら0120-854-254

