世田谷区太子堂2丁目
東急田園都市線 三軒茶屋駅 徒歩5分
2LDK
建物面積:93.06㎡
土地面積:41.9㎡
1963年10月築
12,980万円



| 物件種別 | 中古戸建 |
| 所在地 | GoogleMaps |
| 交通 | |
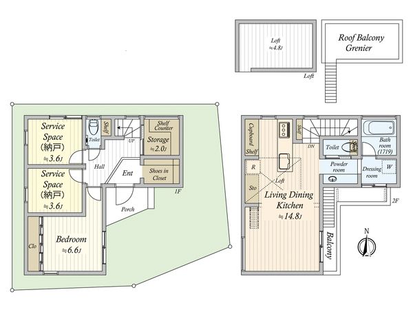
| 間取り | 1SLDK ※S・サービススペースは納戸です |
| 建物面積 | 74.64㎡(約22.57坪) |
| 土地面積 | 80.19㎡(約24.25坪) ※セットバック約3.3㎡を含む |
| 築年月 | 2018年06月築 |
■ 交通・アクセス ――――――――――・・・ ○ 東急田園都市線『桜新町』駅 徒歩12分 『駒沢大学』駅 徒歩12分も利用可 ■ おすすめポイント ―――――――――・・・ ○ 『フリーダムアーキテクツデザイン』の注文住宅 ○ 平成30年(2018年)築 ○ 東道路幅員4mに接道の整形地 ○ ルーフバルコニー ○ シューズインクローゼット ○ 約4.8帖のロフト ○ 1階に居室とサービスルーム×3 ○ リビング最大天井高3550mm ■ 充実の仕様・設備 ―――――――――・・・ ○ カウンタータイプのシステムキッチン ○ 食器洗い乾燥機 ○ 浄水器一体型水栓.タッチレス ○ 収納豊富なカップボード ○ 3面鏡収納付洗面化粧台 ○ タンクレスタイプのシャワー機能付きトイレ ○ 1717サイズのユニットバス 暖房乾燥機能付き ○ ミニバンも駐車できるカースペース(車種による) ○ 敷地東側には駐輪スペースがございます ■ 周辺環境 ―――――――――・・・ ○ 世田谷区深沢小学校・・・・・・・・・・約380m(徒歩5分) ○ 世田谷区深沢中学校・・・・・・・・・・約650m(徒歩9分) ○ まいばすけっと駒沢4丁目店・・・・・・約150m(徒歩2分) ○ 西友駒沢店・・・・・・・・・・・・・・約370m(徒歩5分) ○ セブンイレブン世田谷駒沢4丁目店・・・約250m(徒歩4分) ○ ココカラファイン駒沢店・・・・・・・・約450m(徒歩6分) ○ 世田谷駒沢郵便局・・・・・・・・・・・約270m(徒歩4分) ○ 駒沢オリンピック公園・・・・・・・・・約600m(徒歩8分)
| 所在地 | GoogleMaps |
| 価格 | 12,980万円 |
| 交通 | |
| その他費用 | - |
| 間取り | 1SLDK ※S・サービススペースは納戸です |
| 建物面積 | 74.64㎡(約22.57坪) |
| 土地面積 | 80.19㎡(約24.25坪) ※セットバック約3.3㎡を含む |
| 築年月 | 2018年06月築 |
| 建物構造 | 木造2階建 |
| 現況 | 居住中 |
| 駐車場 | - |
| 土地権利 | 所有権 |
| 地目 | 宅地 |
| 接道状況 | 東側: 約 4m (公道) |
| 建ぺい率 | 50% |
| 容積率 | 100% |
| 用途地域 | 第一種低層住居専用地域 |
| 都市計画 | 市街化区域 |
| 備考 | - |
| 引渡時期 | 2027年03月下旬以降 |
| 取引態様 | 仲介 |
| 更新日 | 2026年05月08日 |
| 次回更新予定 | 2026年05月22日 |
| 物件番号 | FT6BDA01 |
最新のAI技術を活用した相談サービスです。
お客様一人ひとりのニーズに合わせて最適な情報をご提供します。
リハウスAIチャットの詳しい説明はこちら
GoogleMaps
| スーパー | まいばすけっと駒沢4丁目店 約150m(徒歩2分) |
| スーパー | 西友駒沢店 約370m(徒歩5分) |
| 公園 | 駒沢オリンピック公園 約600m(徒歩8分) |
| 小学校 | 世田谷区立深沢小学校 約380m(徒歩5分) |
| 中学校 | 世田谷区立深沢中学校 約650m(徒歩9分) |
| その他利便施設1 | セブンイレブン世田谷駒沢4丁目店 約250m(徒歩4分) |
| その他利便施設2 | ココカラファイン駒沢店 約450m(徒歩6分) |
| その他利便施設3 | 世田谷駒沢郵便局 約270m(徒歩4分) |
0120-78-4131
0120-78-4131
物件の売却をご検討の方は、 はやめの査定依頼がおすすめです!
買い替えをご検討の方はこちら0120-78-4131

