尼崎市上ノ島町1丁目
阪急神戸線 武庫之荘駅 徒歩13分
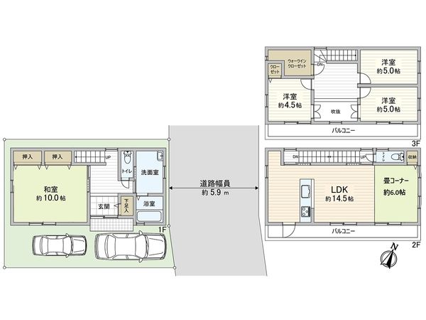
4DK
建物面積:92.74㎡
土地面積:76.25㎡
1992年11月築
3,499万円



| 物件種別 | 中古戸建 |
| 所在地 | GoogleMaps |
| 交通 | 阪急神戸線 園田駅 徒歩13分 |
| 間取り | 4LDK |
| 建物面積 | 116.63㎡(約35.28坪) |
| 土地面積 | 76.66㎡(約23.18坪) |
| 築年月 | 2006年10月築 |
-物件のおすすめポイント- ▼立地 ・阪急園田駅 徒歩13分 ・北東側公道 幅員5.9mに接面 ▼建物の特徴 ・木造スレートぶき3階建ての4LDK ・駐車2台可能(車種による) ・オール電化住宅で快適な暮らし ▼お部屋の特徴 ・約14.5畳の南東向きLDKは明るく広々 ・約10畳和室は押入れ2つで収納充実 ・広々バルコニーは洗濯物干しに便利 ▼設備 ・キッチンカウンター付きで家事動線良好 ・浴室には窓あり 換気に便利 ■ ご希望の住まい探しをお手伝いします ━━━━━・・・ 物件の詳細・ご相談はお気軽にお問い合わせください。
| 所在地 | GoogleMaps |
| 価格 | 3,499万円 |
| 交通 | 阪急神戸線 園田駅 徒歩13分 |
| その他費用 | - |
| 間取り | 4LDK |
| 建物面積 | 116.63㎡(約35.28坪) |
| 土地面積 | 76.66㎡(約23.18坪) |
| 築年月 | 2006年10月築 |
| 建物構造 | 木造3階建 |
| 現況 | 空家 |
| 駐車場 | 有 |
| 土地権利 | 所有権 |
| 地目 | 宅地 |
| 接道状況 | 北東側: 約 5.9m (公道) |
| 建ぺい率 | 60% |
| 容積率 | 200% |
| 用途地域 | 第一種中高層住居専用地域 |
| 都市計画 | 市街化区域 |
| 備考 | - |
| 引渡時期 | 即時 |
| 取引態様 | 仲介 |
| 更新日 | 2026年04月30日 |
| 次回更新予定 | 2026年05月14日 |
| 物件番号 | FX7BGA0F |
最新のAI技術を活用した相談サービスです。
お客様一人ひとりのニーズに合わせて最適な情報をご提供します。
リハウスAIチャットの詳しい説明はこちら
GoogleMaps
| スーパー | サンディ園田店 約810m(徒歩11分) |
| 公園 | 船詰公園 約100m(徒歩2分) |
| 病院 | 中川医院 約250m(徒歩4分) |
| 小学校 | 尼崎市立園和小学校 約790m(徒歩10分) |
| 中学校 | 尼崎市立園田東中学校 約730m(徒歩10分) |
| その他利便施設1 | ローソンストア100尼崎東園田町店 約400m(徒歩5分) |
| その他利便施設2 | セブンイレブン尼崎椎堂1丁目店 約430m(徒歩6分) |
| その他利便施設3 | スギ薬局東園田店 約280m(徒歩4分) |
| その他利便施設4 | 尼崎東園田郵便局 約270m(徒歩4分) |
三井不動産リアルティ株式会社
国土交通大臣(15)第777号
0120-678-321
0120-678-321
物件の売却をご検討の方は、 はやめの査定依頼がおすすめです!
買い替えをご検討の方はこちら0120-678-321

