高槻市富田町5丁目
阪急京都線 富田駅 徒歩9分
4LDK
建物面積:105.57㎡
土地面積:115.75㎡
2026年07月築(予定)
4,680万円



| 物件種別 | 中古戸建 |
| 所在地 | GoogleMaps |
| 交通 | 東海道本線(米原~神戸) 高槻駅 バス8分 芝谷東 停歩5分 |
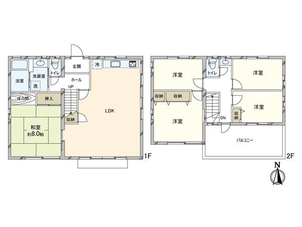
| 間取り | 5LDK |
| 建物面積 | 119.17㎡(約36.04坪) |
| 土地面積 | 177.44㎡(約53.67坪) |
| 築年月 | 1983年09月築 |
■ アクセスインフォメーション ■ ○JR東海道本線『高槻』駅 バス8分 高槻市営バス『芝谷東』停 徒歩5分 ■ おすすめポイント ■ ○セキスイハイム施工 ○令和7年11月リフォーム完成 ○セキスイハイム旧分譲地内 ○北東・北西角地につき陽当たり良好 ○土地面積 177.44平米(約53.6坪) ○建物面積 1階68.65平米 2階50.52平米 ○5LDKの間取り ■ リフォーム内容(令和7年11月完成) ■ ○全室フロアタイル新調 ○全室クロス貼替 ○トイレ新調 ○洗面台新調 ■ リフォーム内容(令和3年6月完成) ■ ○外壁タイル張り施行(エコシャンテ) ○2重屋根工事施行 ○システムキッチン新調 ○ユニットバス新調
| 所在地 | GoogleMaps |
| 価格 | 4,680万円 |
| 交通 | 東海道本線(米原~神戸) 高槻駅 バス8分 芝谷東 停歩5分 |
| その他費用 | - |
| 間取り | 5LDK |
| 建物面積 | 119.17㎡(約36.04坪) |
| 土地面積 | 177.44㎡(約53.67坪) |
| 築年月 | 1983年09月築 |
| 建物構造 | 軽量鉄骨造2階建 |
| 現況 | 空家 |
| 駐車場 | 有 |
| 土地権利 | 所有権 |
| 地目 | 宅地 |
| 接道状況 | 北東側: 約 6.7m (公道)、北西側: 約 6.6m (公道) |
| 建ぺい率 | 50% |
| 容積率 | 100% |
| 用途地域 | 第一種低層住居専用地域 |
| 都市計画 | 市街化区域 |
| 備考 | ※『寺谷町A地区』建築協定内のため、再建築の際、一定の制限がかかります。 ※宅地造成等工事規制区域内(所轄官庁へ「許可」等の申請が必要となる場合があります。 |
| 引渡時期 | 即時 |
| 取引態様 | 仲介 |
| 更新日 | 2026年04月17日 |
| 次回更新予定 | 2026年05月01日 |
| 物件番号 | FXEAWA08 |
最新のAI技術を活用した相談サービスです。
お客様一人ひとりのニーズに合わせて最適な情報をご提供します。
リハウスAIチャットの詳しい説明はこちら
GoogleMaps
| スーパー | いかりスーパーマーケット高槻店 約360m(徒歩5分) |
| スーパー | MORITAYA聖ヶ丘店 約530m(徒歩7分) |
| 小学校 | 高槻市立日吉台小学校 約350m(徒歩5分) |
| 中学校 | 高槻市立芝谷中学校 約360m(徒歩5分) |
| その他利便施設1 | ローソン高槻芝谷町店 約530m(徒歩7分) |
| その他利便施設2 | キリン堂高槻日吉台店 約560m(徒歩7分) |
| その他利便施設3 | 高槻芝谷郵便局 約460m(徒歩6分) |
0120-3131-89
0120-3131-89
物件の売却をご検討の方は、 はやめの査定依頼がおすすめです!
買い替えをご検討の方はこちら0120-3131-89

