左京区岩倉花園町
3,080万円



| 物件種別 | 中古戸建 |
| 所在地 | GoogleMaps |
| 交通 | 叡山電鉄 岩倉駅 徒歩10分 |
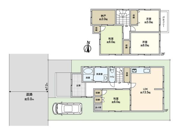
| 間取り | 4SLDK ※S・サービススペースは納戸です |
| 建物面積 | 96.25㎡(約29.11坪) |
| 土地面積 | 109.28㎡(約33.05坪) ※別途私道約222㎡有 (共有持分 1/8) |
| 築年月 | 1989年02月築 |
この物件情報を共有する
おすすめポイント
■ おすすめポイント ━━━━━━━━━━━━━━━・・・・・ ○叡山電鉄「岩倉」駅 徒歩10分 ○全居室に収納スペース有 ○駐車スペース1台分有(車種による制限有) ■ 2026年3月下旬リフォーム完成━━━━━━━━━━━━━━━・・・・・ 〇外壁塗装 〇キッチン・キッチンパネル新調 〇ユニットバス・洗面台新調 〇トイレ新調 〇モニターホン新調 〇ダウンライト新調 〇ポスト新調 〇クロス・フロアタイル・CF貼替 〇建具一部新調 〇室内一部塗装 〇網戸一部貼替 〇畳表替え 〇襖・障子貼替
リノベーション&リフォーム情報
全室クロス/壁紙貼り替え | 台所(キッチン)交換 |
バスルーム交換 | トイレ交換 |
洗面化粧台交換 | 床貼り替え |
扉交換 |
水回り(キッチン、浴室、トイレ、洗面所)(2026年3月)
内装(全室クロス、床、壁、建具)(2026年3月)
外装(外壁)(2026年3月)
〇ポスト新調(2026年3月)
物件情報
| 所在地 | GoogleMaps |
| 価格 | 3,080万円 |
| 交通 | 叡山電鉄 岩倉駅 徒歩10分 |
| その他費用 | - |
| 間取り | 4SLDK ※S・サービススペースは納戸です |
| 建物面積 | 96.25㎡(約29.11坪) |
| 土地面積 | 109.28㎡(約33.05坪) ※別途私道約222㎡有 (共有持分 1/8) |
| 築年月 | 1989年02月築 |
| 建物構造 | 木造2階建 |
| 現況 | 空家 |
| 駐車場 | 有 |
| 土地権利 | 所有権 |
| 地目 | 宅地 |
| 接道状況 | 西側: 約 5m (私道) |
| 建ぺい率 | 40% |
| 容積率 | 60% |
| 用途地域 | 第一種低層住居専用地域 |
| 都市計画 | 市街化区域 |
| 備考 | ※本物件は規定の建蔽率・容積率をオーバーしており、再建築にあたり同規模の建築物は建築できません。 |
| 引渡時期 | 相談 |
| 取引態様 | 仲介 |
| 更新日 | 2026年04月30日 |
| 次回更新予定 | 2026年05月14日 |
| 物件番号 | FYHBGA20 |
この物件のことを
AIに聞いてみませんか?
最新のAI技術を活用した相談サービスです。
お客様一人ひとりのニーズに合わせて最適な情報をご提供します。
リハウスAIチャットの詳しい説明はこちら

周辺情報
GoogleMaps
| スーパー | コープいわくら 約650m(徒歩9分) |
| スーパー | Aコープ 岩倉店 約400m(徒歩5分) |
| 病院 | 洛陽病院 約1300m(徒歩17分) |
| 小学校 | 京都市立明徳小学校 約550m(徒歩7分) |
| 中学校 | 洛北中学校 約800m(徒歩10分) |
| その他利便施設1 | セブンイレブン京都岩倉忠在地町店 約550m(徒歩7分) |
| その他利便施設2 | 京都岩倉郵便局 約500m(徒歩7分) |
取扱店舗
- 営業時間
- 10:00~18:00
- 定休日
- 毎週火曜日・水曜日
- 住所
- 京都府京都市左京区下鴨本町11-5 LANDSCAPE下鴨1F・2F
三井不動産リアルティ株式会社
国土交通大臣(15)第777号
三井のリハウス 京都北センター
- 営業時間10:00~18:00
- 定休日毎週火曜日・水曜日
0120-93-3431
あなたへのおすすめ
京都市左京区の物件情報
この物件のリノベーションに関する問い合わせはこちらから。
リノベーション工事の可能範囲については、本物件の管理組合規約等により一定の制限が加わる場合がございます。詳細については、工事内容の確定後に判明する部分もありますので、この点については事前にお含みおきください。
リノベーションに関するお問い合わせこの物件を見学してみませんか?
この物件についてお問い合わせ
物件・住環境の詳しい情報、購入・ローン相談など、ささいなことでもお気軽にお問い合わせください。三井のリハウス 京都北センター
- 営業時間10:00~18:00
- 定休日毎週火曜日・水曜日
0120-93-3431

物件の売却をご検討の方は、 はやめの査定依頼がおすすめです!
買い替えをご検討の方はこちら見学予約
お問い合わせ
0120-93-3431
- 営業時間 10:00~18:00
- 定休日 毎週火曜日・水曜日









