品川区上大崎1丁目
都営浅草線 高輪台駅 徒歩7分
3LDK / 62.11㎡
2022年08月築
23,980万円



| 物件種別 | 中古マンション |
| 所在地 | GoogleMaps |
| 交通 | |
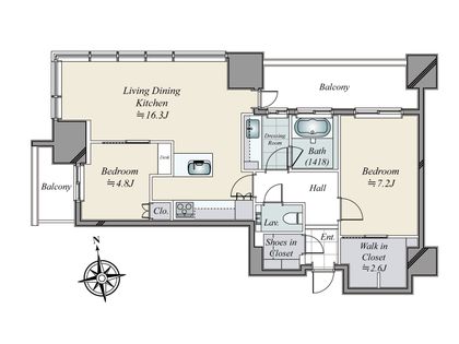
| 間取り | 1LDK |
| 専有面積 | 65.36㎡(約19.77坪) |
| 築年月 | 2007年10月築 |
| 階数 / 階建 | 6階 / 地上28階 地下3階建 |
| 向き | 北 |
■ アクセス ━━━━━━━━━━・・・・・ ○ JR山手線・東急目黒線・東京メトロ南北線・都営三田線「目黒」駅 徒歩2分 ■ おすすめポイント ━━━━━━━━━━━━━━━・・・・・ ○ 三井不動産(株)旧分譲 ○ 4路線利用可能とアクセス良好 ○ 6階部分北西角部屋 ○ 駅徒歩2分の立地で通勤通学に便利 ○ スーパー・コンビニ徒歩5分以内と普段のお買い物に便利 ○ 足元から温めるTES温水式床暖房有(LD部分) ○ 食洗機付システムキッチン有 ○ 1418サイズの広々とした浴室乾燥機付ユニットバス ○ 約1.7畳のウォークインクローゼットや約1.2畳のストレージなど豊富な収納力有 ○ 安心のオートロック・TVモニター付インターホン ○ 忙しい時に便利な各階ダストステーションあり ○ 不在時の荷物受け取りに便利な宅配ボックス ○ ペット飼育可(細則あり) ○ コンシェルジュサービス(一部有料)
| 所在地 | GoogleMaps |
| 価格 | 23,980万円 |
| 交通 | |
| 管理費等 | 23,590円 |
| 修繕積立金 | 33,140円 |
| その他費用 | - |
| 間取り | 1LDK |
| 専有面積 | 65.36㎡(約19.77坪) |
| 築年月 | 2007年10月築 |
| 階数 / 階建 | 6階 / 地上28階 地下3階建 |
| 向き | 北 |
| バルコニー | 13.56㎡ |
| 現況 | 空家 |
| 駐車場 | 空き無 |
| 建物構造 | 鉄筋コンクリート造 |
| 総戸数 | 202戸 |
| 管理会社 | 三井不動産レジデンシャルサービス(株) |
| 管理形態 | 管理会社に全部委託 |
| 管理員の 勤務形態 | 日勤 |
| 土地権利 | 所有権 |
| 分譲会社 | 三井不動産(株)、(株)宝町クリエイト (新築分譲時における売主) |
| 施工会社 | 三井住友建設(株)、(株)フジタ、若築建設(株) |
| 設計会社 | (株)松田平田設計 |
| 備考 | - |
| 引渡時期 | 相談 |
| 取引態様 | 仲介 |
| 更新日 | 2026年04月13日 |
| 次回更新予定 | 2026年04月27日 |
| 物件番号 | F07ATA4A |
最新のAI技術を活用した相談サービスです。
お客様一人ひとりのニーズに合わせて最適な情報をご提供します。
リハウスAIチャットの詳しい説明はこちら
GoogleMaps
| スーパー | プレッセ目黒店 約140m(徒歩2分) |
| 公園 | 目黒区民センター公園 約660m(徒歩9分) |
| 病院 | 総合病院厚生中央病院 約970m(徒歩13分) |
| 小学校 | 品川区立第四日野小学校 約1180m(徒歩15分) |
| 中学校 | 品川区立荏原第一中学校 約1950m(徒歩25分) |
| その他利便施設1 | ファミリーマートアトレ目黒店 約140m(徒歩2分) |
| その他利便施設2 | マツモトキヨシ目黒店 約130m(徒歩2分) |
| その他利便施設3 | 目黒駅前郵便局 約410m(徒歩6分) |
三井不動産リアルティ株式会社
国土交通大臣(15)第777号
0120-994-231
0120-994-231
物件の売却をご検討の方は、 はやめの査定依頼がおすすめです!
買い替えをご検討の方はこちら0120-994-231

