渋谷区広尾1丁目
山手線 恵比寿駅 徒歩8分
2LDK / 61.23㎡
1987年01月築
13,000万円



| 物件種別 | 中古マンション |
| 所在地 | GoogleMaps |
| 交通 | 東京メトロ日比谷線 広尾駅 徒歩10分 |
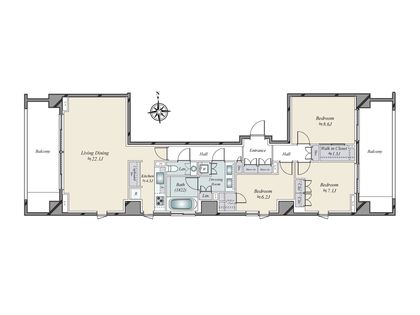
| 間取り | 1LDK |
| 専有面積 | 53.72㎡(約16.25坪) |
| 築年月 | 2009年03月築 |
| 階数 / 階建 | 4階 / 地上6階 地下2階建 |
| 向き | 北 |
◇お部屋の概要 ■ 白樺レジデンス(E棟)4階部分 ■ 専有面積53.72平米・1LDK ■ 主寝室から洗面室とバスルームへ繋がるプライベートに配慮された導線 ■ 約1.5帖のウォークインクローゼット ■ 敷地内の木々を望むお部屋位置です ◇マンション全体概要 ■ 三井不動産レジデンシャル&三菱地所による 総敷地面積約29000平米の大規模プロジェクト ■ 鹿島建設株式会社+株式会社三菱地所設計 ■ 四季を彩る木々に包まれたセンターフォレスト ■ 安心とともに住まう人を迎えるグランドゲート ■ 24時間有人管理(夜間警備員)ゲートにガードマン ■ 生活の安全性を守る5times Security ■ フォレストスイート(ゲストルーム)有償 ■ 心安らぐレジデンシャルサービス コンシェルジュ・ホームアテンダントサービス
| 所在地 | GoogleMaps |
| 価格 | 13,000万円 |
| 交通 | 東京メトロ日比谷線 広尾駅 徒歩10分 |
| 管理費等 | 28,040円 |
| 修繕積立金 | 18,270円 |
| その他費用 | 解体準備金 1,000円 / 月 |
| 間取り | 1LDK |
| 専有面積 | 53.72㎡(約16.25坪) |
| 築年月 | 2009年03月築 |
| 階数 / 階建 | 4階 / 地上6階 地下2階建 |
| 向き | 北 |
| バルコニー | 16.22㎡ |
| 現況 | 空家 |
| 駐車場 | 敷地内有 (賃貸) 空き:3台有り 月額 36,000円〜50,000円 (確認日:西暦2025年10月02日現在) |
| 建物構造 | 鉄筋コンクリート造 |
| 総戸数 | 39戸 |
| 管理会社 | 三井不動産レジデンシャルサービス株式会社 |
| 管理形態 | 管理会社に全部委託 |
| 管理員の 勤務形態 | 常勤 |
| 土地権利 | 定期借地権(地上権) 借地期間・借地料(月額) 2063年08月まで 8,310円 |
| 分譲会社 | 三井不動産レジデンシャル(株)、三菱地所(株) (新築分譲時における売主) |
| 施工会社 | 鹿島建設(株) |
| 設計会社 | (株)三菱地所設計 |
| 備考 | 一般定期借地権(地上権)、借地期間2063年08月迄、借地料(月額) 7,930円(毎年9月改定)借地期間満了時に更地返還要。建物の買取り請求・契約更新及び改築等による期間延長不可。借地権の譲渡・転貸/可。 |
| 引渡時期 | 相談 |
| 取引態様 | 仲介 |
| 更新日 | 2026年05月02日 |
| 次回更新予定 | 2026年05月16日 |
| 物件番号 | F15AEA07 |
最新のAI技術を活用した相談サービスです。
お客様一人ひとりのニーズに合わせて最適な情報をご提供します。
リハウスAIチャットの詳しい説明はこちら
0120-600-332
0120-600-332
物件の売却をご検討の方は、 はやめの査定依頼がおすすめです!
買い替えをご検討の方はこちら0120-600-332

