渋谷区広尾3丁目
山手線 恵比寿駅 徒歩13分
1SLDK / 71.11㎡
1999年02月築
20,500万円



| 物件種別 | 中古マンション |
| 所在地 | GoogleMaps |
| 交通 | 東京メトロ日比谷線 広尾駅 徒歩11分 |
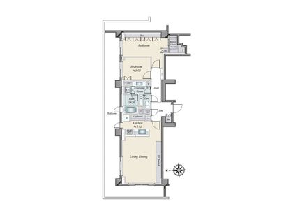
| 間取り | 1LDK |
| 専有面積 | 74.58㎡(約22.56坪) |
| 築年月 | 2008年11月築 |
| 階数 / 階建 | 5階 / 地上18階 地下2階建 |
| 向き | 北 |
予約制内覧会を開催します!
| 開催日 | 5月9日(土)11:00 ~ 17:00 5月10日(日)11:00 ~ 17:00 5月16日(土)11:00 ~ 17:00 5月17日(日)11:00 ~ 17:00 5月23日(土)11:00 ~ 17:00 |
|---|
◆リフォーム実施済(2025年8月) ・システムキッチン交換、トイレ交換、浴室水栓交換 ・全室エアコン交換 ・ガス給湯器交換、温水式バス換気暖房乾燥機交換 ・全室クロス張替え(壁・天井) ・全室クリーニング 他 ◆広尾ガーデンフォレスト 桜レジデンス ◇ 三井不動産レジデンシャル&三菱地所による 総敷地面積約29000平米の大規模プロジェクト ◇ 四季を彩る木々に包まれたセンターフォレスト ◇ 安心とともに住まう人を迎えるグランドゲート ◇ 24時間有人管理(夜間警備員)ゲートにガードマン ◇ 生活の安全性を守る5times Security ◇ フォレストスイート(ゲストルーム)有償 ◇ コンシェルジュ・ホームアテンダントサービス ◆お部屋概要 ◇ 桜レジデンス(A棟)5階部分、北向き センターフォレストの緑を望む眺望 ◇ 1LDK+WIC+SIC、ゆとりのある間取り ◇ LDK約23.8帖、広々としたリビングダイニング ◇ オープンキッチン ◇ 1620サイズの浴室 ◇ 収納豊富な間取りです
| 所在地 | GoogleMaps |
| 価格 | 20,500万円 |
| 交通 | 東京メトロ日比谷線 広尾駅 徒歩11分 |
| 管理費等 | 38,930円 |
| 修繕積立金 | 25,350円 |
| その他費用 | 解体積立金 1,400円 / 月 |
| 間取り | 1LDK |
| 専有面積 | 74.58㎡(約22.56坪) |
| 築年月 | 2008年11月築 |
| 階数 / 階建 | 5階 / 地上18階 地下2階建 |
| 向き | 北 |
| バルコニー | 10.98㎡ |
| 現況 | 空家 |
| 駐車場 | 敷地内有 (賃貸) 空き:10台有り 月額 36,000円〜50,000円 (確認日:西暦2024年12月05日現在) |
| 建物構造 | 鉄筋コンクリート造 |
| 総戸数 | 123戸 |
| 管理会社 | 三井不動産レジデンシャルサービス(株) |
| 管理形態 | 管理会社に全部委託 |
| 管理員の 勤務形態 | 常勤 |
| 土地権利 | 定期借地権(地上権) 借地期間・借地料(月額) 2063年08月まで 11,530円 |
| 分譲会社 | 三井不動産レジデンシャル(株)、三菱地所(株) (新築分譲時における売主) |
| 施工会社 | 鹿島建設(株) |
| 設計会社 | (株)三菱地所設計 |
| 備考 | 一般定期借地権(地上権)存続期間/令和45年8月まで、借地期間満了時に更地返還要。建物の買取り請求・契約更新及び改築等による期間延長不可。 地代/月額11,530円(毎年9月に改訂)。借地権の譲渡・転貸/可。ただし地主への通知要(承諾料不要)。借地権設定登記/可。 |
| 引渡時期 | 相談 |
| 取引態様 | 仲介 |
| 更新日 | 2026年04月30日 |
| 次回更新予定 | 2026年05月14日 |
| 物件番号 | FSAATA18 |
最新のAI技術を活用した相談サービスです。
お客様一人ひとりのニーズに合わせて最適な情報をご提供します。
リハウスAIチャットの詳しい説明はこちら
三井不動産リアルティ株式会社
国土交通大臣(15)第777号
0120-907-413
0120-907-413
物件の売却をご検討の方は、 はやめの査定依頼がおすすめです!
買い替えをご検討の方はこちら0120-907-413

