港区南青山2丁目
東京メトロ銀座線 青山一丁目駅 徒歩3分
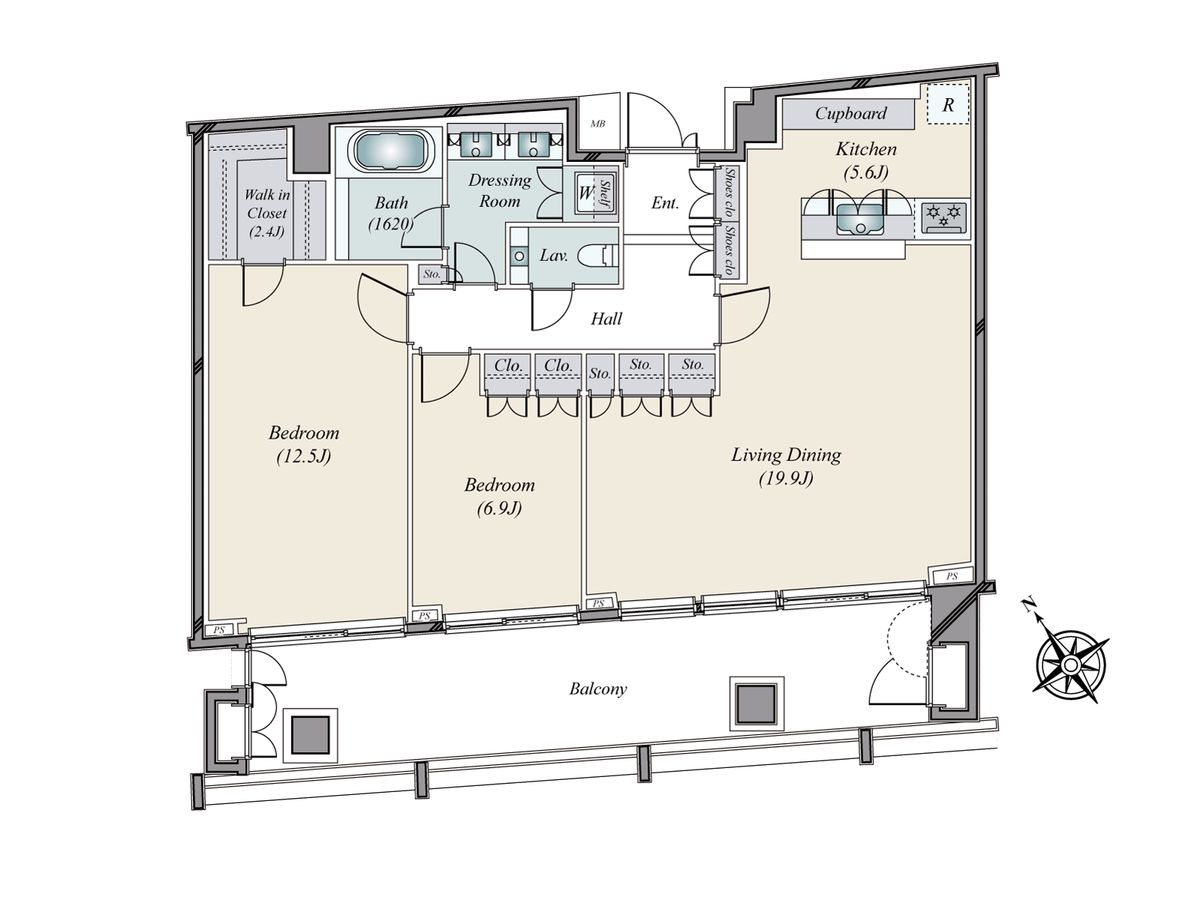
2LDK / 140.94㎡
2017年12月築
125,000万円



| 物件種別 | 中古マンション |
| 所在地 | GoogleMaps |
| 交通 | |
| 間取り | 2LDK |
| 専有面積 | 101.09㎡(約30.57坪) |
| 築年月 | 2014年05月築 |
| 階数 / 階建 | 41階 / 地上52階 地下5階建 |
| 向き | 南西 |
予約制内覧会を開催します!
| 開催日 | 1月31日(土)11:00 ~ 16:00 2月1日(日)11:00 ~ 16:00 |
|---|
返済計画を入力すると毎月のお支払い目安を表示できます
○2014年05月竣工、森ビル株式会社旧分譲の虎ノ門ヒルズレジデンス。港区虎ノ門「グローバルビジネスセンター」にふさわしい立地、都市に生きることの豊かさすべてを享受できる世界水準の住環境 ○4駅・4沿線が利用可能 *東京メトロ日比谷線「虎ノ門ヒルズ」徒歩1分 東京メトロ銀座線「虎ノ門」徒歩4分それぞれの駅に地下通路で直結 東京メトロ丸の内線千代田線日比谷線「霞が関」駅徒歩9分 東京メトロ日比谷線「神谷町」駅徒歩8分 官公庁が集まる霞が関にも近く、大使館や文化施設も多い虎ノ門エリア。国際色豊かでビジネスに必要なあらゆる環境が揃った虎ノ門ヒルズ。環状二号線やバスターミナルを一体的に整備したことで交通結節点の機能も強化 ○ホテル(アンダーズ東京:37階・47~52階)レジデンス(37~46階)スパ&フィットネス(AO 37階)オフィス(6~35階)カンファレンス(4~6階)、複数の店舗等、豊かな緑と約6,000平米のオープンスペースが毎日の生活に潤いを ○管理は24時間有人体制、居住者の安心と利便性をサポート ○1階ロビーの他、37階に貸切使用可能なラウンジ
室内を内覧しているように物件を見学することができます。
| 所在地 | GoogleMaps |
| 価格 | 125,000万円 |
| 交通 | |
| 管理費等 | 64,950円 |
| 修繕積立金 | 21,240円 |
| その他費用 | トランクルーム 5,000円 / 月 |
| 間取り | 2LDK |
| 専有面積 | 101.09㎡(約30.57坪) |
| 築年月 | 2014年05月築 |
| 階数 / 階建 | 41階 / 地上52階 地下5階建 |
| 向き | 南西 |
| バルコニー | - |
| 現況 | 空家 |
| 駐車場 | 無 |
| 建物構造 | 鉄骨造 |
| 総戸数 | 172戸 |
| 管理会社 | 森ビル株式会社 |
| 管理形態 | 管理会社に全部委託 |
| 管理員の 勤務形態 | 常勤 |
| 土地権利 | 所有権 |
| 分譲会社 | 森ビル(株) (新築分譲時における売主) |
| 施工会社 | (株)大林組 |
| 設計会社 | (株)日本設計 |
| 備考 | 非居住者源泉徴収要 平成26年5月30日付で隧道設置のため地上権が設定されています。範囲:敷地116筆のうち113筆(詳細別紙参照)存続期間:地上権設定の日から隧道が存続する期間、地代:無償、特約:道路構造物に荷重を掛けないものとする、地上権者:東京都 |
| 引渡時期 | 相談 |
| 取引態様 | 仲介 |
| 更新日 | 2026年01月23日 |
| 次回更新予定 | 2026年02月06日 |
| 物件番号 | F15ASA05 |
最新のAI技術を活用した相談サービスです。
お客様一人ひとりのニーズに合わせて最適な情報をご提供します。
リハウスAIチャットの詳しい説明はこちら
0120-600-332
0120-600-332
物件の売却をご検討の方は、 はやめの査定依頼がおすすめです!
買い替えをご検討の方はこちら0120-600-332

