渋谷区渋谷1丁目
山手線 渋谷駅 徒歩8分
2SLDK / 107.46㎡
2003年03月築
62,300万円



| 物件種別 | 中古マンション |
| 所在地 | GoogleMaps |
| 交通 | |
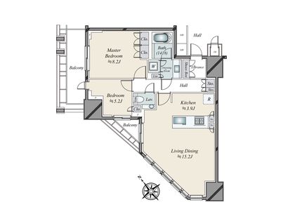
| 間取り | 3LDK |
| 専有面積 | 111.27㎡(約33.65坪) |
| 築年月 | 2025年03月築 |
| 階数 / 階建 | 18階 / 地上26階 地下2階建 |
| 向き | 南西 |
■マンション概要 ○東京メトロ銀座線・半蔵門線「渋谷」駅 徒歩5分 ○JR山手線「渋谷」駅 徒歩7分 ○表参道、代官山、恵比寿が生活圏となるロケーション ○地上26階地下2階建 免震構造タワーマンション ○居住者のプライベートを支えるコンシェルジュサービス(一部有償) ○メンテナンスにも配慮した二重床・二重天井設計 ○24時間対応可能な各階ゴミ置き場 ■専有部分 ○専有面積111.27平米 3LDK+WIC+TR ○18階南西・南東・北東向きの三方角住戸 ○WIC2ヵ所、トランクルーム等豊富な収納 ○ビルトイン冷蔵庫、食器洗い乾燥機、ディスポーザー、カップボード ○1620サイズのユニットバス ■ライフインフォメーション ○ライフ渋谷東店 約300m ○セブンイレブン渋谷3丁目明治通り駅 約130m ○ファミリーマート渋谷明治通り店 約160m ○宮下公園 約340
| 所在地 | GoogleMaps |
| 価格 | 62,300万円 |
| 交通 | |
| 管理費等 | 52,740円 |
| 修繕積立金 | 26,480円 |
| その他費用 | - |
| 間取り | 3LDK |
| 専有面積 | 111.27㎡(約33.65坪) |
| 築年月 | 2025年03月築 |
| 階数 / 階建 | 18階 / 地上26階 地下2階建 |
| 向き | 南西 |
| バルコニー | 14.79㎡ |
| 現況 | 空家 |
| 駐車場 | 空き無 |
| 建物構造 | 鉄筋コンクリート造 |
| 総戸数 | 132戸 |
| 管理会社 | 野村不動産パートナーズ株式会社 |
| 管理形態 | 管理会社に全部委託 |
| 管理員の 勤務形態 | 日勤 |
| 土地権利 | 所有権 |
| 分譲会社 | 野村不動産(株)、旭化成不動産レジデンス(株) (新築分譲時における売主) |
| 施工会社 | (株)鴻池組 |
| 設計会社 | (株)IAO竹田設計 |
| 備考 | - |
| 引渡時期 | 相談 |
| 取引態様 | 仲介 |
| 更新日 | 2026年05月08日 |
| 次回更新予定 | 2026年05月22日 |
| 物件番号 | F15BCA1B |
最新のAI技術を活用した相談サービスです。
お客様一人ひとりのニーズに合わせて最適な情報をご提供します。
リハウスAIチャットの詳しい説明はこちら
0120-600-332
0120-600-332
物件の売却をご検討の方は、 はやめの査定依頼がおすすめです!
買い替えをご検討の方はこちら0120-600-332

