三鷹市下連雀7丁目
中央本線 三鷹駅 徒歩15分
3LDK / 71.03㎡
2001年02月築
8,780万円



| 物件種別 | 中古マンション |
| 所在地 | GoogleMaps |
| 交通 | |
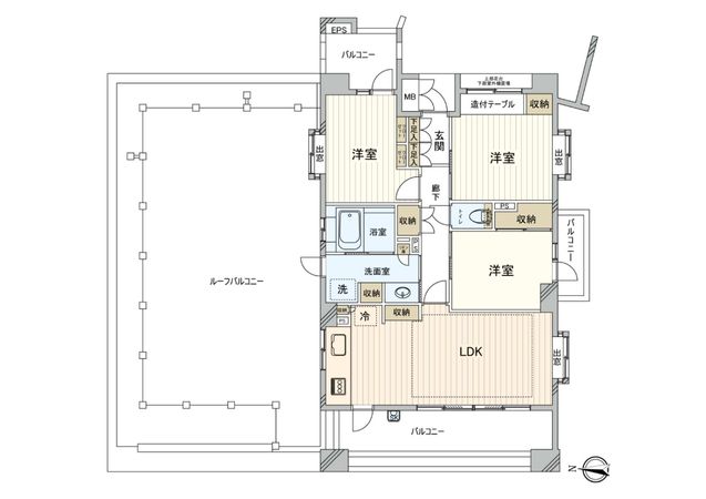
| 間取り | 3LDK |
| 専有面積 | 73.54㎡(約22.24坪) |
| 築年月 | 2006年06月築 |
| 階数 / 階建 | 8階 / 地上8階 地下1階建 |
| 向き | 西 |
■ アクセス ■ ○ JR中央線・京王井の頭線「吉祥寺」駅 バス13分「下連雀五丁目」停歩1分 ○ JR中央線「三鷹」駅 バス9分「下連雀五丁目」停歩1分 〇 JR中央線駅までは自転車でも便利な平坦な道です ■ おすすめポイント ■ ○ 三菱地所(株)旧分譲の「パークハウス」シリーズ ○ WEST COURT最上階角部屋 ○ 左右、上階に隣接がない独立住戸で、プライベートなお部屋 ○ 東・西・南・北に4つのバルコニー ○ 北側ルーフバルコニーは57.24平米で「井の頭」を一望する圧倒的な眺望 ○ 令和3年に水回りの刷新や収納力を高めたリフォーム実施済み ○ 主寝室は7帖超のゆとりある間取り ○ 居室に奥行を感じさせる出窓があり、注文住宅のような設計 ○ 床暖房や食洗機、バブル入浴機能付き浴槽など充実の室内設備 ○ アウトドア用品の収納や備蓄倉庫として利用可能な使用料無償のトランクルームが付設 ○ ペット飼育可能(細則あり) ○ 三菱地所コミュニティ(株)による全部委託管理
| 所在地 | GoogleMaps |
| 価格 | 8,780万円 |
| 交通 | |
| 管理費等 | 14,893円 |
| 修繕積立金 | 18,800円 |
| その他費用 | ルーフバルコニー使用料 2,860円 / 月 |
| 間取り | 3LDK |
| 専有面積 | 73.54㎡(約22.24坪) |
| 築年月 | 2006年06月築 |
| 階数 / 階建 | 8階 / 地上8階 地下1階建 |
| 向き | 西 |
| バルコニー | 22.02㎡ |
| ルーフバルコニー | 57.24㎡ |
| 現況 | 空家 |
| 駐車場 | 敷地内有 (賃貸) 空き:18台有り 月額 11,500円〜15,000円 (確認日:西暦2026年03月13日現在) |
| 建物構造 | 鉄筋コンクリート造 |
| 総戸数 | 89戸 |
| 管理会社 | 三菱地所コミュニティ株式会社 |
| 管理形態 | 管理会社に全部委託 |
| 管理員の 勤務形態 | 日勤 |
| 土地権利 | 所有権 |
| 分譲会社 | 三菱地所(株) (新築分譲時における売主) |
| 施工会社 | 木内建設(株) |
| 設計会社 | 木内建設(株)一級建築士東京事務所 |
| 備考 | - |
| 引渡時期 | 相談 |
| 取引態様 | 仲介 |
| 更新日 | 2026年04月28日 |
| 次回更新予定 | 2026年05月12日 |
| 物件番号 | F24BCA04 |
最新のAI技術を活用した相談サービスです。
お客様一人ひとりのニーズに合わせて最適な情報をご提供します。
リハウスAIチャットの詳しい説明はこちら
GoogleMaps
| スーパー | マルエツプラウドシティ吉祥寺店 約230m(徒歩3分) |
| 公園 | 下連雀こでまり児童遊園 約370m(徒歩5分) |
| 病院 | むれ病院 約400m(徒歩5分) |
| 病院 | 野村病院 約1000m(徒歩13分) |
| 小学校 | 三鷹市立高山小学校 約560m(徒歩7分) |
| 中学校 | 三鷹市立第三中学校 約360m(徒歩5分) |
| その他利便施設1 | ローソン三鷹牟礼四丁目店 約140m(徒歩2分) |
| その他利便施設2 | セブンイレブン三鷹牟礼4丁目店 約270m(徒歩4分) |
| その他利便施設3 | ウエルシア三鷹店 約120m(徒歩2分) |
| その他利便施設4 | 三鷹下連雀郵便局 約640m(徒歩8分) |
0120-312-514
0120-312-514
物件の売却をご検討の方は、 はやめの査定依頼がおすすめです!
買い替えをご検討の方はこちら0120-312-514

