府中市宮町1丁目
京王電鉄京王線 府中駅 徒歩2分
2SLDK / 62.2㎡
2013年12月築
5,890万円

リハウスおすすめ物件


| 物件種別 | 中古マンション |
| 所在地 | GoogleMaps |
| 交通 | |
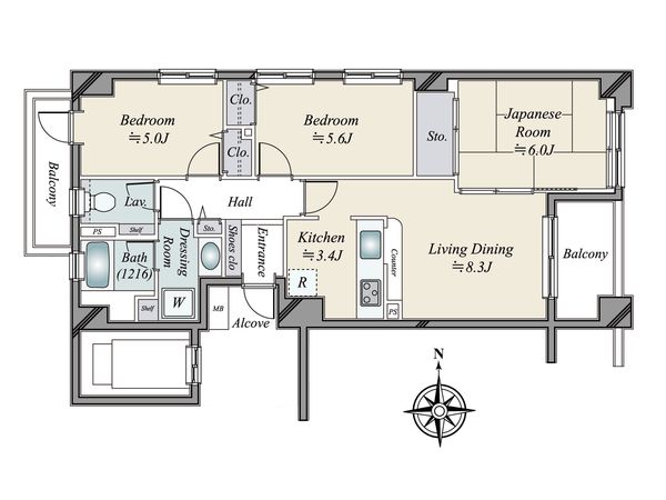
| 間取り | 3LDK |
| 専有面積 | 64.76㎡(約19.58坪) |
| 築年月 | 1999年12月築 |
| 階数 / 階建 | 11階 / 地上12階 地下1階建 |
| 向き | 東 |
返済計画を入力すると毎月のお支払い目安を表示できます
■ おすすめポイント ━━━━・・・・ ○ 東・西・北の三方角部屋につき陽当り・通風良好 ○ 専有面積64.76平米の3LDK ○ 12階建て11階部分につき眺望良好 ○ ミッテン、くるる、フォーリスがあり買い物に便利な立地 ○ ペット飼育可能(飼育細則有) ■ アクセス(2駅3路線利用可能) ━━━━━・・・・ ○ 京王線『府中』駅 徒歩3分 ○ JR南武線・武蔵野線『府中本町』駅 徒歩9分 ■ 設備・仕様 ━━━━━━・・・ ○ 対面式システムキッチン ○ ビルトイン浄水器 ○ 浴室換気乾燥暖房機 ○ フルオートバス ○ 温水洗浄便座 ○ TVモニター付きオートロック ○ 24時間セキュリティシステム ○ 宅配ボックス 【府中市・稲城市エリアへお住みかえをご検討中のお客様】 ※府中市・稲城市エリア以外の不動産に関する売却のご相談も承ります。 ■ご自宅の『売却』も三井のリハウスにお任せください 。 ・「売却が先か購入が先か」買替えたいけど、何から始めたら良いのか分からない。 ・所有不動産の相場を把握しておきたい。 ・自宅の住宅ローンが残っているので、無理のない資金計画を相談したい。 お住まいの購入から売却まで、お客様のご事情に合わせてトータルサポートいたします。 まずはフリーコールにて、ご所有不動産の概要をお申し付けください。 『無料査定のお申込みは』 フリーコール 0120-554-979 詳しくは担当までお気軽にお問い合わせください。
| 所在地 | GoogleMaps |
| 価格 | 5,890万円 |
| 交通 | |
| 管理費等 | 8,500円 |
| 修繕積立金 | 21,180円 |
| その他費用 | - |
| 間取り | 3LDK |
| 専有面積 | 64.76㎡(約19.58坪) |
| 築年月 | 1999年12月築 |
| 階数 / 階建 | 11階 / 地上12階 地下1階建 |
| 向き | 東 |
| バルコニー | 7.35㎡ |
| 現況 | 居住中 |
| 駐車場 | 空き無 |
| 建物構造 | 鉄骨鉄筋コンクリート造 |
| 総戸数 | 42戸 |
| 管理会社 | 三菱地所コミュニティ(株) |
| 管理形態 | 管理会社に全部委託 |
| 管理員の 勤務形態 | 日勤 |
| 土地権利 | 所有権 |
| 分譲会社 | 丸紅(株) (新築分譲時における売主) |
| 施工会社 | (株)淺沼組 |
| 設計会社 | (株)アトリエシープ設計事務所 |
| 備考 | - |
| 引渡時期 | 相談 |
| 取引態様 | 仲介 |
| 更新日 | 2025年12月14日 |
| 次回更新予定 | 2025年12月28日 |
| 物件番号 | F28ASA22 |
最新のAI技術を活用した相談サービスです。
お客様一人ひとりのニーズに合わせて最適な情報をご提供します。
リハウスAIチャットの詳しい説明はこちら
GoogleMaps
| スーパー | ヤオコー府中フォーリス店 約120m(徒歩2分) |
| 小学校 | 府中市立府中第一小学校 約630m(徒歩8分) |
| 中学校 | 府中市立府中第一中学校 約1280m(徒歩16分) |
| その他利便施設1 | セブンイレブン府中くるる店 約180m(徒歩3分) |
| その他利便施設2 | ミニストップ府中宮町店 約240m(徒歩3分) |
| その他利便施設3 | ミッテン府中 約170m(徒歩3分) |
| その他利便施設4 | くるる 約190m(徒歩3分) |
| その他利便施設5 | 府中八幡宿郵便局 約400m(徒歩5分) |
| その他利便施設6 | 府中駅(京王線) 約240m(徒歩3分) |
0120-554-979
リノベーション工事の可能範囲については、本物件の管理組合規約等により一定の制限が加わる場合がございます。詳細については、工事内容の確定後に判明する部分もありますので、この点については事前にお含みおきください。
リノベーションに関するお問い合わせ0120-554-979
物件の売却をご検討の方は、 はやめの査定依頼がおすすめです!
買い替えをご検討の方はこちら0120-554-979

