中央区晴海5丁目
都営大江戸線 勝どき駅 徒歩14分
3LDK / 86.15㎡
築1年未満
42,800万円



| 物件種別 | 中古マンション |
| 所在地 | GoogleMaps |
| 交通 | |
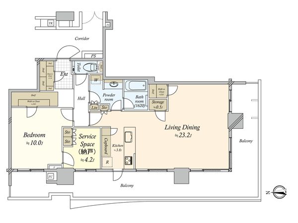
| 間取り | 1LDK |
| 専有面積 | 95.56㎡(約28.9坪) |
| 築年月 | 2025年08月築 |
| 階数 / 階建 | 47階 / 地上50階 地下1階建 |
| 向き | 西 |
■お部屋の特徴 ○47階部分 南西角部屋のため日照・眺望良好 ○専有面積95.56平米の1LDK+2WIC+SIC+DEN ○廊下部分が少なく居室に広さを配した間取 ○約23.2帖の広々としたリビングダイニング 〇リビングダイニング部分には足元からぽかぽか温まる床暖房有 ○約3.8帖の対面型システムキッチン(浄水器・ディスポーザー・食器洗い乾燥機・カップボード有) ○1620サイズのオートバス(ミストサウナ・浴室暖房乾燥機付) ○トイレはローシルエットトイレ採用・手洗いシンク有 ○全室最大天井高2600mm 〇約44.61平米のL字バルコニーは最大奥行2000mm 〇豊富な収納 ・全室収納有 ・約10.0帖の洋室には約2.0帖のウォークインクローゼット有 ・洗面部分にはリネン庫有 ・玄関部分には約1.4帖のシューズインクローゼット有 ■ マンションの特徴 ○ 免制震ハイブリット工法 ○ 三井不動産レジデンシャル株式会社 他分譲 ○ 三井住友建設株式会社 施工 ○ ホテルライクな内廊下設計 ○ 二重床・二重天井構造 ○各階ゴミステーション有(24時間ゴミ出し可能) ○ペット飼育可(飼育細則有) ○ レンタルサイクル有(有償) ■HARUMI FLAG全体で51カ所の共用施設(※一部有償) ▪パーティールーム (A棟1階、F棟1階、T棟2階) ▪リラックスラボ(B棟1階) ▪ゲストルーム (B棟1階、C棟2階、F棟1階、T棟48階) ▪ライブラリーラウンジ(B棟1・2階) ▪フラッグコア(C棟1階) ▪キッズスペース(C棟1階、T棟2階) ▪足湯ラウンジ(D棟1階) ▪ワークスペース(E棟1階) ▪シアタールーム(F棟B1階) ▪ソラテラス(F棟14階) ▪ビューラウンジ(F棟14階) ▪バーラウンジ(T棟48階) 他 SUN VILLAGE・SEA VILLAGE共用施設の一部相互利用可
| 所在地 | GoogleMaps |
| 価格 | 42,800万円 |
| 交通 | |
| 管理費等 | 37,550円 |
| 修繕積立金 | 18,250円 |
| その他費用 | インターネット等使用料 2,750円 / 月、HARUMI FLAG CLUB会費 500円 / 月、自治会費 100円 / 月 |
| 間取り | 1LDK |
| 専有面積 | 95.56㎡(約28.9坪) |
| 築年月 | 2025年08月築 |
| 階数 / 階建 | 47階 / 地上50階 地下1階建 |
| 向き | 西 |
| バルコニー | 44.61㎡ |
| 現況 | 空家 |
| 駐車場 | 空き無 |
| 建物構造 | 鉄筋コンクリート造 |
| 総戸数 | 722戸 |
| 管理会社 | 三井不動産レジデンシャルサービス株式会社 |
| 管理形態 | 管理会社に全部委託 |
| 管理員の 勤務形態 | 日勤 |
| 土地権利 | 所有権 |
| 分譲会社 | 三井不動産レジデンシャル(株) 他 (新築分譲時における売主) |
| 施工会社 | 三井住友建設(株) |
| 設計会社 | (株)日建ハウジングシステム、三井住友建設(株) |
| 備考 | - |
| 引渡時期 | 相談 |
| 取引態様 | 仲介 |
| 更新日 | 2026年04月30日 |
| 次回更新予定 | 2026年05月14日 |
| 物件番号 | F2FBTA23 |
最新のAI技術を活用した相談サービスです。
お客様一人ひとりのニーズに合わせて最適な情報をご提供します。
リハウスAIチャットの詳しい説明はこちら
GoogleMaps
| 公園 | 晴海ふ頭公園 約250m(徒歩4分) |
| 小学校 | 晴海西小中学校 約80m(徒歩1分) |
| その他利便施設1 | ららテラスHARUMI FLAG 約160m(徒歩2分) |
三井不動産リアルティ株式会社
国土交通大臣(15)第777号
0120-907-231
0120-907-231
物件の売却をご検討の方は、 はやめの査定依頼がおすすめです!
買い替えをご検討の方はこちら0120-907-231

