港区三田1丁目
東京メトロ南北線 麻布十番駅 徒歩7分
1LDK / 68.9㎡
2024年12月築
33,480万円



| 物件種別 | 中古マンション |
| 所在地 | GoogleMaps |
| 交通 | |
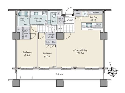
| 間取り | 3LDK |
| 専有面積 | 82.07㎡(約24.82坪) |
| 築年月 | 2010年05月築 |
| 階数 / 階建 | 3階 / 地上9階 地下1階建 |
| 向き | 南西 |
| 想定賃料 (年間) | 5,280,000円(満室時想定) |
| 想定利回り | 1.5% |
| 賃貸状況 | - |
| 備考 | ※利回りは、販売価格に対する年間の賃料収入(共益費等を含む)の割合で、公租公課その他当該物件を維持するために必要な費用の控除前のものです。なお、想定賃料・想定利回りは、賃料相場をもとに空室部分の賃料を加え満室時を想定して算出したものです。 ※賃料収入は、将来にわたって確実に得られることを保証するものではありません。 (調査日: 2025年06月02日現在) |
◆定期賃貸借契約中物件 ○ 定期賃貸借契約(~2027年5月30日迄) ○ 月額賃料:440,000円/年間収入:5,280,000円 ○ 表面利回り:約1.55% 投資用不動産としても、将来的な自己居住用としてもご検討ください。 ■アクセス(2駅2路線利用可能な立地)―――・・・ ○東京メトロ南北線・都営大江戸線『麻布十番』駅徒歩5分 ○都営大江戸線『赤羽橋』駅徒歩7分 ■マンションについて―――・・・ ○平成22年5月築 ○三井不動産レジデンシャル株式会社他2社旧分譲 ○大成建設株式会社施行 ■お部屋について―――・・・ ○専有面積:82.07平米/3LDK+WIC ○南向き住戸につき、陽当り良好 ○コンシェルジュフロント(7時~22時) ・クリーニング取次サービス ・レストラン/ホテル予約代行 ・リムジン手配サービス ・消耗品販売等 ※一部有償 ■共有施設―――・・・ ○ティアラデッキ ○コモンラウンジ・コモンホール
| 所在地 | GoogleMaps |
| 価格 | 33,480万円 |
| 交通 | |
| 修繕積立金 | 14,180円 |
| その他費用 | - |
| 間取り | 3LDK |
| 専有面積 | 82.07㎡(約24.82坪) |
| 築年月 | 2010年05月築 |
| 階数 / 階建 | 3階 / 地上9階 地下1階建 |
| 向き | 南西 |
| バルコニー | - |
| 現況 | 賃貸中 |
| 駐車場 | - |
| 建物構造 | 鉄筋コンクリート造 |
| 総戸数 | 58戸 |
| 管理会社 | 三井不動産レジデンシャルサービス株式会社 |
| 管理形態 | 管理会社に全部委託 |
| 管理員の 勤務形態 | 日勤 |
| 土地権利 | 所有権 |
| 分譲会社 | 三井不動産レジデンシャル(株)、(株)新日鉄都市開発、藤和不動 (新築分譲時における売主) |
| 施工会社 | 大成建設(株) |
| 設計会社 | (株)アール・アイ・エー、(株)久米設計 |
| 備考 | - |
| 引渡時期 | 相談 |
| 取引態様 | 仲介 |
| 更新日 | 2026年04月25日 |
| 次回更新予定 | 2026年05月09日 |
| 物件番号 | F40AEA0C |
最新のAI技術を活用した相談サービスです。
お客様一人ひとりのニーズに合わせて最適な情報をご提供します。
リハウスAIチャットの詳しい説明はこちら
GoogleMaps
| スーパー | 日進ワールドデリカテッセン 約300m(徒歩4分) |
| 公園 | 一の橋公園 約350m(徒歩5分) |
| 病院 | 国際医療福祉大学三田病院 約400m(徒歩5分) |
| その他利便施設1 | セブンイレブン港区三田1丁目店 約160m(徒歩2分) |
三井不動産リアルティ株式会社
国土交通大臣(15)第777号
0120-92-1231
0120-92-1231
物件の売却をご検討の方は、 はやめの査定依頼がおすすめです!
買い替えをご検討の方はこちら0120-92-1231

