横浜市青葉区新石川3丁目
東急田園都市線 たまプラーザ駅 徒歩3分
2LDK / 71.67㎡
2008年06月築
9,980万円



| 物件種別 | 中古マンション |
| 所在地 | GoogleMaps |
| 交通 | 東急田園都市線 たまプラーザ駅 徒歩2分 |
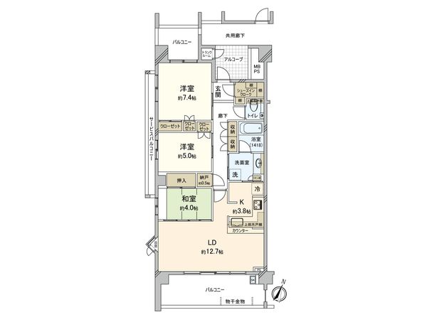
| 間取り | 3LDK |
| 専有面積 | 79.47㎡(約24.03坪) |
| 築年月 | 2013年02月築 |
| 階数 / 階建 | 4階 / 地上7階建 |
| 向き | 南東 |
■アクセス ━━━━━━━━━━━━━━━・・・・・ ○ 東急田園都市線「たまプラーザ」駅 徒歩2分 ■ おすすめポイント ━━━━━━━━━━━━━━━・・・・・ 〇 東京急行電鉄(株)旧分譲「ドレッセ」シリーズ 〇 東急建設(株)他旧施工マンション 〇 平成25年2月築 〇 ダブルオートロックシステム 〇 ペット飼育可2匹まで(細則あり) 〇 専有面積:79.47平米 〇 ゆとりある16.5帖のLDK 〇 7階建て4階部分 角部屋 〇 南東向きにつき、陽当たり良好 〇 2面バルコニー 〇 アルコーブ横にはトランクルーム設置 〇 二重床・二重天井を採用 〇 玄関にはシューズインクローゼット 〇 リビングサッシは高さ約2.2メートルのハイサッシ 〇 サッシは複層ガラス 〇 リビング・ダイニングに床暖房 〇 一箇所に水まわりを集中、生活に配慮した間取り 〇 豊富な収納スペース・廊下に納戸あり 〇 スロップシンクつきのバルコニー 〇 新築時に間取り変更 和室を新設 〇 1418サイズの浴室にミストサウナを設置・魔法びん浴槽 〇 キッチンにティスポーザー・ビルトイン浄水器 〇 ガスコンロをIHコンロに変更 〇 タンクレストイレ・別途手洗いがございます 〇 段差のないフラットフロア 〇 東急セキュリティによる防犯システム 〇 2024年 給湯器交換済み 〇 たまプラーザテラス直結のため利便性に優れています
室内を内覧しているように物件を見学することができます。
| 所在地 | GoogleMaps |
| 価格 | 9,980万円 |
| 交通 | 東急田園都市線 たまプラーザ駅 徒歩2分 |
| 管理費等 | 17,800円 |
| 修繕積立金 | 14,900円 |
| その他費用 | MIL-C運用費 1,680円 / 月、解体準備金 6,800円 / 月、自治会費 225円 / 月 |
| 間取り | 3LDK |
| 専有面積 | 79.47㎡(約24.03坪) |
| 築年月 | 2013年02月築 |
| 階数 / 階建 | 4階 / 地上7階建 |
| 向き | 南東 |
| バルコニー | 18.2㎡ |
| 現況 | 空家 |
| 駐車場 | 空き無 |
| 建物構造 | 鉄筋コンクリート造 |
| 総戸数 | 92戸 |
| 管理会社 | (株)東急コミュニティー |
| 管理形態 | 管理会社に全部委託 |
| 管理員の 勤務形態 | 日勤 |
| 土地権利 | 定期借地権(賃借権) 借地期間・借地料(月額) 2065年03月まで 18,300円 |
| 分譲会社 | 東京急行電鉄(株) (新築分譲時における売主) |
| 施工会社 | 東急建設(株) |
| 設計会社 | (株)東急設計コンサルタント |
| 備考 | 一般定期借地権(賃借権)(価格には保証金364,800円含む)存続期間/2011年12月1日から2065年3月31日、借地期間満了時に更地返還要。建物の買取り請求・契約更新及び改築等による期間延長不可。 地代/月額18,300円(3年毎に改訂)。解体準備金/月額6,800円。保証金は、期間満了時に全額返還(無利息)。借地権の譲渡・転貸/可。ただし地主の承諾要(承諾料不要)。借地権設定登記/不可。 |
| 引渡時期 | 即時 |
| 取引態様 | 仲介 |
| 更新日 | 2026年04月16日 |
| 次回更新予定 | 2026年04月30日 |
| 物件番号 | F87BCA06 |
最新のAI技術を活用した相談サービスです。
お客様一人ひとりのニーズに合わせて最適な情報をご提供します。
リハウスAIチャットの詳しい説明はこちら
GoogleMaps
| スーパー | イトーヨーカドーたまプラーザ店 約440m(徒歩6分) |
| 公園 | 新石川公園 約290m(徒歩4分) |
| 病院 | 宮澤内科・呼吸器クリニック 約150m(徒歩2分) |
| 小学校 | 横浜市立新石川小学校 約600m(徒歩8分) |
| 中学校 | 横浜市立山内中学校 約760m(徒歩10分) |
| その他利便施設1 | ファミリーマートスリーウェル新石川二丁目店 約100m(徒歩2分) |
| その他利便施設2 | セブンイレブン横浜たまプラーザ駅北店 約430m(徒歩6分) |
| その他利便施設3 | 東急百貨店たまプラーザ店 約360m(徒歩5分) |
三井不動産リアルティ株式会社
国土交通大臣(15)第777号
0120-313-730
0120-313-730
物件の売却をご検討の方は、 はやめの査定依頼がおすすめです!
買い替えをご検討の方はこちら0120-313-730

